210 000 $
1 707  $/м²
123 / 76 / 30 м²
поверх 25 з 26
Монолітно-каркасна
2022 рік побудови
сьогодні
4 міс. тому
83 (сьогодні 0, вчора 0)
Опис
Актуальна!

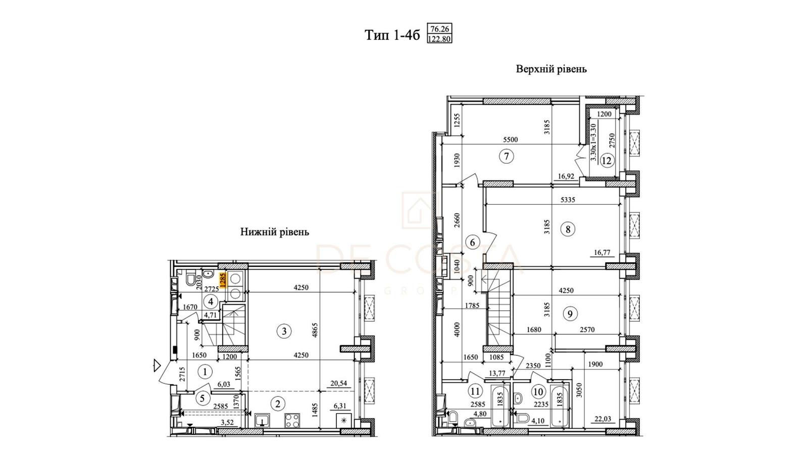
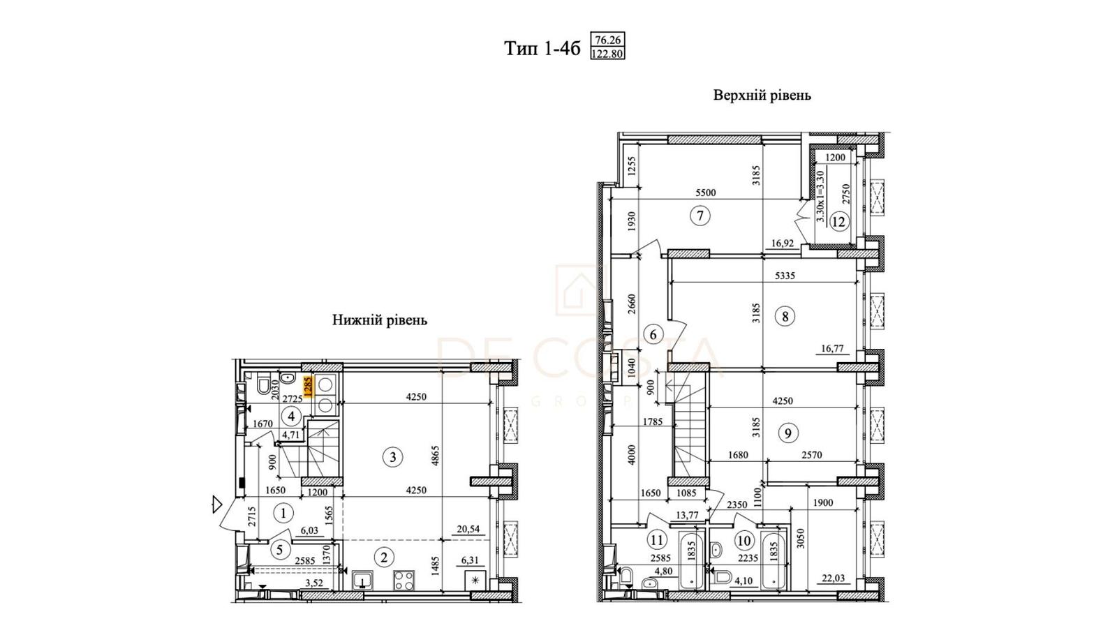
Дворівнева квартира з панорамним видом на Дніпро в ЖК DOCK32

Секція 1 | Поверхи: 25–26
Поруч метро Петрівка (Почайна)

Загальна площа: 123,3 м²

Житлова площа: 76,26 м²
Кімнат: 4 окремі
Санвузлів: 3 (роздільні)
Балкон: лоджія
Дворівневе планування — відчуття простору та сучасної геометрії

Планування:
Простора кухня-студія — ідеальна для об'єднання зоною їдальні та відпочинку
4 ізольовані кімнати — спальня, кабінет, дитяча, гостьова
Гардеробна + передпокій
3 повноцінних санвузли

Стан квартири:
Від забудовника (лазерна стяжка підлоги, чистове оздоблення)
Простір для реалізації власного дизайн-проєкту

Переваги ЖК DOCK32:
Стиль LOFT-концепт — унікальна архітектура в індустріальному стилі
Панорамні вікна на Дніпро — світло, простір, краса
Підземний дворівневий паркінг із ліфтами до поверхів
Закрита територія, відеоспостереження, контроль доступу
Розвинена локація: 5 хв до Подолу, Оболоні, Петрівки

Інфраструктура поруч:
ТРЦ Blockbuster Mall
Парк Наталка
Sky Family Park з басейнами, лаунж-зонами, фудкортом і розвагами на воді

📲 Звертайтесь для перегляду або додаткової інформації. Продаж БЕЗ КОМІСІЇ!
Це — квартира, в яку хочеться повернутись.
Деталі
В квартирі 5 кімнат, Технологія будівництва - Монолітно-каркасна. Планування кімнат Роздільне. Будинок побудований в 2022 році. Загальний стан квартири - Без ремонту. Без комісії
De Costa Group
Верифікований профіль
7
Років досвіду
4
Роки на сайті
Активних оголошень 29
Ексклюзивних об'єктів 10
Рекламна активність 21732
Останній візит на сайт сьогодні
Рекомендувати
Планування

Адреса
Вашу скаргу прийнято!
Оберіть спосіб підтвердження
Щоб вашу рекомендацію було зараховано, підтвердіть свою особистість
* Особисті дані не відображатимуться на сайті та слугуватимуть лише для підтвердження особистості.
Як верифікуватись через Дію?
Зчитайте QR-код сканером у застосунку Дія й підтвердьте авторизацію Дія.Підписом
QR-код буде дійсний ще 02:00
Як верифікуватись через Bankid?
Верифікація BankID відкриється у новому вікні. Якщо сторінка верифікації не відкрилася, вікно було заблоковане вашим браузером.
Щоб дозволити відкриття вікна, виконайте такі кроки:

1. Перевірте адресний рядок браузера на повідомлення про помилку або піктограму блокування. Натисніть на нього.
2. Якщо у вас встановлено блокувальник спливаючих вікон, тимчасово відключіть його для цього сайту.
3. Перевірте налаштування вашого браузера і переконайтеся, що блокування спливаючих вікон вимкнено або налаштовано на дозвіл відкриття цього вікна.

Якщо проблема залишається невирішеною, зверніться до нашої служби підтримки.
Як верифікуватись через Дію?
Верифікація Дія відкриється у новому вікні. Якщо сторінка верифікації не відкрилася, вікно було заблоковане вашим браузером.
Щоб дозволити відкриття вікна, виконайте такі кроки:

1. Перевірте адресний рядок браузера на повідомлення про помилку або піктограму блокування. Натисніть на нього.
2. Якщо у вас встановлено блокувальник спливаючих вікон, тимчасово відключіть його для цього сайту.
3. Перевірте налаштування вашого браузера і переконайтеся, що блокування спливаючих вікон вимкнено або налаштовано на дозвіл відкриття цього вікна.

Якщо проблема залишається невирішеною, зверніться до нашої служби підтримки.
Вітаємо!
Рекомендацію зараховано!
Незабаром рекомендація зʼявиться на сторінці рієлтора.
Рекомендацію не зараховано.
Ви вже залишали рекомендацію даному рієлтору.
В пропозиції є незбережені дані.