1
88 000 $
1 488  $/м²
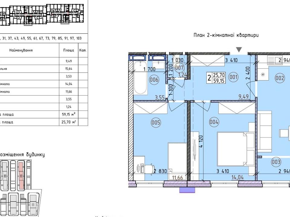
59.15 / 25.7 / 15.64 м²
поверх 17 з 19
Спец. проект
2022 рік побудови
сьогодні
2 міс. тому
139 (сьогодні 8, вчора 1)
Опис
Пропонується двокімнатна квартира площею 59,15 м² у будинку "Брайтон", який введено в експлуатацію 2022 році. Розташована на 17-му поверсі, вікна виходять на схід.

Зручне та функціональне планування

Житловий комплекс "Нова Англія"
Адреса: вул. Максимовича, 26-В
Будинок "Брайтон" (введений в експлуатацію).
Під будинком розташований підземний паркінг, до якого можна спуститися ліфтом.

Оздоблення під ремонт:
- Проведено гаряче та холодне водопостачання;
- Стяжка під ламінат;
- Встановлені радіатори з регуляторами температури;
- Електроінженерія з лічильниками для опалення, електрики, холодної та гарячої води;
- Металопластикові панорамні вікна.

Комплекс розроблений за принципом "місто в місті":
- Підземний паркінг, який виконує функцію укриття;
- Закрита територія з відеоспостереженням;
- Дошкільний заклад і школа на території;
- Місця для прогулянок із собаками;
- Зони для барбекю;
- Дитячі та спортивні майданчики;
- Кафе, магазини, салони краси, поштові відділення;
- Власна котельня.

Пропонується різноманітний вибір квартир в ЖК "Нова Англія". Ціну вказано без додаткових витрат та комісії.

Оглянути квартиру можна за попередньою домовленістю. Ключі знаходяться в нашому офісі.

Дзвоніть!
Деталі
В квартирі 2 кімнати, Тип будинку - Спец. проект. Планування кімнат Роздільне. Будинок побудований в 2022 році. Загальний стан квартири - Без ремонту. Без комісії
Нова Британія
Верифікований профіль
Platinum partner
17
Років досвіду
6
Років на сайті
Активних оголошень 27
Ексклюзивних об'єктів 0
Рекламна активність 45462
Останній візит на сайт 2 дні тому
Рекомендувати
Адреса
Вашу скаргу прийнято!
Оберіть спосіб підтвердження
Щоб вашу рекомендацію було зараховано, підтвердіть свою особистість
* Особисті дані не відображатимуться на сайті та слугуватимуть лише для підтвердження особистості.
Як верифікуватись через Дію?
Зчитайте QR-код сканером у застосунку Дія й підтвердьте авторизацію Дія.Підписом
QR-код буде дійсний ще 02:00
Як верифікуватись через Bankid?
Верифікація BankID відкриється у новому вікні. Якщо сторінка верифікації не відкрилася, вікно було заблоковане вашим браузером.
Щоб дозволити відкриття вікна, виконайте такі кроки:

1. Перевірте адресний рядок браузера на повідомлення про помилку або піктограму блокування. Натисніть на нього.
2. Якщо у вас встановлено блокувальник спливаючих вікон, тимчасово відключіть його для цього сайту.
3. Перевірте налаштування вашого браузера і переконайтеся, що блокування спливаючих вікон вимкнено або налаштовано на дозвіл відкриття цього вікна.

Якщо проблема залишається невирішеною, зверніться до нашої служби підтримки.
Як верифікуватись через Дію?
Верифікація Дія відкриється у новому вікні. Якщо сторінка верифікації не відкрилася, вікно було заблоковане вашим браузером.
Щоб дозволити відкриття вікна, виконайте такі кроки:

1. Перевірте адресний рядок браузера на повідомлення про помилку або піктограму блокування. Натисніть на нього.
2. Якщо у вас встановлено блокувальник спливаючих вікон, тимчасово відключіть його для цього сайту.
3. Перевірте налаштування вашого браузера і переконайтеся, що блокування спливаючих вікон вимкнено або налаштовано на дозвіл відкриття цього вікна.

Якщо проблема залишається невирішеною, зверніться до нашої служби підтримки.
Вітаємо!
Рекомендацію зараховано!
Незабаром рекомендація зʼявиться на сторінці рієлтора.
Рекомендацію не зараховано.
Ви вже залишали рекомендацію даному рієлтору.
В пропозиції є незбережені дані.