68 / 28.2 / 19 м²
поверх 24 з 25
Монолітно-каркасна
Спец. проект
2021 рік побудови
6 днів тому
1 міс. тому
495 (сьогодні 13, вчора 13)
Опис
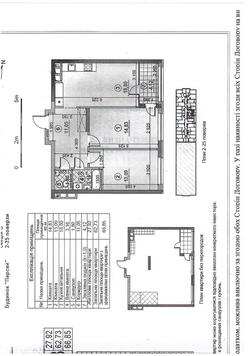
Продаж 2-х кімнатноі квартири на вул. Євгена Сверстюка (Марини Раскової), 6-Д, Дніпровський р-н, 68/28,2/19 на 24/25 поверхового будинку монолітно-каркасного будинку. Зручне планування: 2 окремих кімнати, велика кухня-студія, Санвузол окремий, балкон. в квартирі встановлено вікна Rehau, пожежна сигналізація, на світло, воду, опалення стоять лічильники, в будинку встановлено відеонагляд, охорона, паркінг. Будинок введений в експлуатацію в 2021 році. Загальний стан квартири - Без ремонту. В будинку є генратор. При вимкнутій мережі завжди працює ліфт, водопостачання , опалення, освітлення загальних місць користування . Доглянута територія, охорона. Безбар'єрність: вхід у будинок на рівні землі, дверні отвори в будинку шириною понад 0.9 м, паркувальні місця для осіб з інвалідністю, ліфт, пристосований до крісла колісного.
до ст.м. "Лівобережна" 10 хвилин пішки

У комплексі розвинена інфраструктура: гімназія Galaxy-School, садочок Мандрик ,клініки, аптеки, салони краси, кафе та ресторани, магазини, різні майстерні та гуртки , відділення Нової пошти, декілька спортзалів , тенісний корт, футбольний та баскетбольний майданчик , великі сучасні дитячі майданчики , спортивні зони, майданчик для дресерування собак та багато іншого для комфортного проживання.

Поруч Дніпро, Русанівська набережна знаходиться в пішому доступі.
супермаркет Novus, ТЦ Комод , ТЦ Лівобережний, театр, поруч багато шкільних та дошкільних закладів.
Концепція ЖК - двір без машин.


.
Деталі
В квартирі 2 кімнати, висота стелі 2.7 метра, Технологія будівництва - Монолітно-каркасна, Тип будинку - Спец. проект. Є балкон. Будинок побудований в 2021 році. Загальний стан квартири - Без ремонту. Кількість санвузлів: 2. Тип кухні - окрема кухня. Кількість спален: 2. Без комісії
Верифікований профіль
Platinum partner
Сертифікат
АФНУ
22
Роки досвіду
3
Роки на сайті
Активних оголошень 6
Ексклюзивних об'єктів 0
Рекламна активність 39760
Останній візит на сайт вчора
Рекомендувати
Планування

Історія зміни ціни
23.03.2026 - 4 000 $ 95 000 $
03.03.2026 99 000 $
Адреса
будинків здано 163
рік заснування 2003
будинків в процесі 23
Вашу скаргу прийнято!
Оберіть спосіб підтвердження
Щоб вашу рекомендацію було зараховано, підтвердіть свою особистість
* Особисті дані не відображатимуться на сайті та слугуватимуть лише для підтвердження особистості.
Як верифікуватись через Дію?
Зчитайте QR-код сканером у застосунку Дія й підтвердьте авторизацію Дія.Підписом
QR-код буде дійсний ще 02:00
Як верифікуватись через Bankid?
Верифікація BankID відкриється у новому вікні. Якщо сторінка верифікації не відкрилася, вікно було заблоковане вашим браузером.
Щоб дозволити відкриття вікна, виконайте такі кроки:

1. Перевірте адресний рядок браузера на повідомлення про помилку або піктограму блокування. Натисніть на нього.
2. Якщо у вас встановлено блокувальник спливаючих вікон, тимчасово відключіть його для цього сайту.
3. Перевірте налаштування вашого браузера і переконайтеся, що блокування спливаючих вікон вимкнено або налаштовано на дозвіл відкриття цього вікна.

Якщо проблема залишається невирішеною, зверніться до нашої служби підтримки.
Як верифікуватись через Дію?
Верифікація Дія відкриється у новому вікні. Якщо сторінка верифікації не відкрилася, вікно було заблоковане вашим браузером.
Щоб дозволити відкриття вікна, виконайте такі кроки:

1. Перевірте адресний рядок браузера на повідомлення про помилку або піктограму блокування. Натисніть на нього.
2. Якщо у вас встановлено блокувальник спливаючих вікон, тимчасово відключіть його для цього сайту.
3. Перевірте налаштування вашого браузера і переконайтеся, що блокування спливаючих вікон вимкнено або налаштовано на дозвіл відкриття цього вікна.

Якщо проблема залишається невирішеною, зверніться до нашої служби підтримки.
Вітаємо!
Рекомендацію зараховано!
Незабаром рекомендація зʼявиться на сторінці рієлтора.
Рекомендацію не зараховано.
Ви вже залишали рекомендацію даному рієлтору.
В пропозиції є незбережені дані.