ПРЕМІУМ БЕЗ КОМІСІЇ єВідновлення Виставковий центр Голосіїв ЖК Сонячна брама
155 / 90 / 20 м²
поверх 19 з 19
Монолітно-каркасна
Спец. проект
2010 рік побудови
1 міс. тому
1 міс. тому
65 (сьогодні 7, вчора 2)
Опис
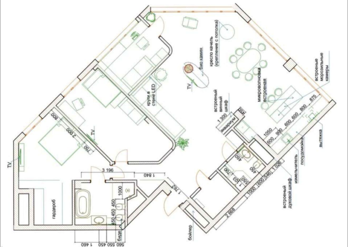
Продаж мега класного панорамного пентхауса у найчистішій, зеленій частині Києва, в Голосіївському р-н, житловий комплекс "Сонячна Брама". Стелі 3,5 м. Новий ремонт 2022 року. Весь будинок уже заселений, тож шуми ремонтів не страшні) Квартира з панорамним видом на місто і парк ВДНГ, а любителів футболу чекає величезний бонус, відмінний огляд на футбольне поле КНУ! Зелений район міста Києва, незаймані парки, велосипедні маршрути та інші переваги. Зроблено добротний і дорогий ремонт "Преміум" класу, який зробили з любов'ю для себе. Авторський дизайн-проєкт у сучасному стилі мінімалізм у світлих відтінках. Мінімалістичний і стриманий інтер'єр проявляє себе в деталях оздоблення, продуманому освітленні та аксесуарах. Квартира повністю мебльована, всі меблі та будівельні матеріали виконані по максимуму з натуральних матеріалів, з турботою про здоров'я. Сантехніка "Villeroy&boch" і змішувачі бренду "Axor"-преміум Німеччина. У квартирі два санвузли: гостьовий з душем і хазяйський, де обладнано ванну, душ, біде... на кухні побутова техніка від "Mielle" - духова шафа, мікрохвильова піч і Bosh - варильна поверхня і посудомийна машина, Libher - холодильник, морозильні шафи і винна шафа. А також у квартирі є чудові додаткові технічні характеристики для зручності та комфортного проживання, встановлено повну систему "Розумний дім", клімат і вентиляцію, обладнано теплу підлогу, автоматичне закривання штор, встановлено автоматичне освітлення на рух, під'єднано охоронну сигналізацію з відеоспостереженням, установлено збройовий, протипожежний сейф, великий бойлер, систему очищення й фільтрації води, припливно-витяжну вентиляцію з рекуперацією та фільтрацією, канальний кондиціонер від кращого виробника бренду "Daikin". 380 Вольт, 32 КВт вхідна потужність. Лічильник день/ніч. Оптоволоконний інтернет. Також мультирум від "Bose", додатково вбудовані колонки на кухні та в с/в. Багато RGB-освітлення, зоноване освітлення і підсвічування. Планування відмінно зоноване - зона вітальня і зона спалень чітко відокремлені. І про сам житловий комплекс "сонячна брама" - це престижний житловий комплекс, європейського рівня і закритого типу! У цих будинках все презентабельно і з комфортом для життя. Цілодобова охорона, відеоспостереження, пропускна система за картками, до послуг мешканців внутрішні території, що охороняються, в будинках безшумні ліфти. Красиві дитячі майданчики, закритий ландшафтний двір. Підземні паркінги. Поруч парки та озеро, до метро ВДНГ 7 хв пішки, продуктовий супер-маркет "Новус" і "Лоток" у дворі, нотаріус, стоматологічна клініка, ресторани, кафе, салон краси, хімчистки, дитячий садочок, фітнес клуб у дворі та поруч "Спорт лайф" із басейном для дорослих і дітей тощо. Написати можна ще багато всього про квартиру! Вона ідеальна, затишна, комфортна, нова, сучасна з якісним ремонтом.
Деталі
В квартирі 4 кімнати, висота стелі 2.7 метра, Технологія будівництва - Монолітно-каркасна, Тип будинку - Спец. проект. Немає газу, кухонна плита електрична. У квартирі є Телевізор, Кабельне ТБ, Супутникове ТБ, Підігрів підлоги, Камін, Кондиціонер, Пральна машина, Сушильна машина, Душова кабіна, Ванна, Холодильник, Мікрохвильовка, Посудомийна машина, Сигналізація, Сейф. Будинок побудований в 2010 році. Загальний стан квартири - З ремонтом. Гаряча вода - електричний бойлер. Інтернет оптоволоконний. Працює без світла - вода, газ, опалення. Власник погоджується продати по програмі єВідновлення. Є підземний паркінг, доступний як укриття. Інфраструктура території: дитячий майданчик, спортивний майданчик, виокремлена зона для вигулу тварин, двір без авто. Без комісії
У квартирі є
  • Ресурс 1
    Телевізор
  • Кабельне ТБ
  • Супутникове ТБ
  • Підігрів підлоги
  • Камін
  • Кондиціонер
  • Пральна машина
  • Сушильна машина
  • Душова кабіна
  • Ванна
  • Ресурс 1
    Холодильник
  • Ресурс 1
    Мікрохвильовка
  • Посудомийна машина
  • Сигналізація
  • Сейф
La Vida
Верифікований профіль
7
Років досвіду
2
Верифіковані рекомендації
7
Років на сайті
Активних оголошень 9
Ексклюзивних об'єктів 0
Рекламна активність 11116
Останній візит на сайт 2 тижні тому
Рекомендувати
Планування

Адреса
Вашу скаргу прийнято!
Оберіть спосіб підтвердження
Щоб вашу рекомендацію було зараховано, підтвердіть свою особистість
* Особисті дані не відображатимуться на сайті та слугуватимуть лише для підтвердження особистості.
Як верифікуватись через Дію?
Зчитайте QR-код сканером у застосунку Дія й підтвердьте авторизацію Дія.Підписом
QR-код буде дійсний ще 02:00
Як верифікуватись через Bankid?
Верифікація BankID відкриється у новому вікні. Якщо сторінка верифікації не відкрилася, вікно було заблоковане вашим браузером.
Щоб дозволити відкриття вікна, виконайте такі кроки:

1. Перевірте адресний рядок браузера на повідомлення про помилку або піктограму блокування. Натисніть на нього.
2. Якщо у вас встановлено блокувальник спливаючих вікон, тимчасово відключіть його для цього сайту.
3. Перевірте налаштування вашого браузера і переконайтеся, що блокування спливаючих вікон вимкнено або налаштовано на дозвіл відкриття цього вікна.

Якщо проблема залишається невирішеною, зверніться до нашої служби підтримки.
Як верифікуватись через Дію?
Верифікація Дія відкриється у новому вікні. Якщо сторінка верифікації не відкрилася, вікно було заблоковане вашим браузером.
Щоб дозволити відкриття вікна, виконайте такі кроки:

1. Перевірте адресний рядок браузера на повідомлення про помилку або піктограму блокування. Натисніть на нього.
2. Якщо у вас встановлено блокувальник спливаючих вікон, тимчасово відключіть його для цього сайту.
3. Перевірте налаштування вашого браузера і переконайтеся, що блокування спливаючих вікон вимкнено або налаштовано на дозвіл відкриття цього вікна.

Якщо проблема залишається невирішеною, зверніться до нашої служби підтримки.
Вітаємо!
Рекомендацію зараховано!
Незабаром рекомендація зʼявиться на сторінці рієлтора.
Рекомендацію не зараховано.
Ви вже залишали рекомендацію даному рієлтору.
В пропозиції є незбережені дані.