1
38 000 $
854  $/м²
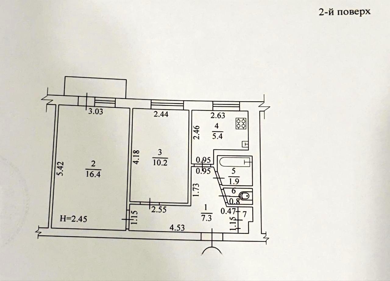
44.5 / 26.6 / 5.4 м²
поверх 2 з 10
Цегляна
Спец. проект
1 міс. тому
1 міс. тому
51 (сьогодні 1, вчора 2)
Опис
2-комнатная квартира с капитальным ремонтом
ул. Льва Ландау, 16
Район Новые Дома — Дворец спорта, Коммунальный рынок
Предлагается к продаже уютная 2-комнатная квартира на комфортном 2 этаже кирпичного дома.
Основные характеристики:

Дом — тёплый, кирпичный
Выполнен капитальный ремонт
Пол — качественный ламинат
Окна — металлопластиковые
Радиаторы — заменены
Квартира светлая и тёплая


Остаётся вся мебель
Отличное расположение:
В пешей доступности район Новые Дома
Рядом Дворец спорта
Коммунальный рынок
Транспортная развязка, магазины, школа и детский сад
Квартира полностью готова к проживанию — отличный вариант как для семьи, так и под аренду.
Деталі
В квартирі 2 кімнати, висота стелі 2.5 метра, Технологія будівництва - Цегляна, Тип будинку - Спец. проект. Є газ, кухонна плита газова. Є балкон. У квартирі є Телевізор, Кабельне ТБ, Кондиціонер, Пральна машина, Ванна, Холодильник, Мікрохвильовка. Загальний стан квартири - З ремонтом. Безбар'єрність: вхід у будинок на рівні землі. Гаряча вода - централізована. Кількість санвузлів: 1. Інтернет оптоволоконний. Працює без світла - вода, газ, опалення, інтернет. Власник погоджується продати по програмі єВідновлення. Тип кухні - окрема кухня. Кількість спален: 2. Комісія за послуги 5 %
У квартирі є
  • Телевізор
  • Кабельне ТБ
  • Кондиціонер
  • Пральна машина
  • Ванна
  • Холодильник
  • Мікрохвильовка
Метраж
Верифікований профіль
4
Роки досвіду
10
Місяців на сайті
Активних оголошень 10
Ексклюзивних об'єктів 0
Рекламна активність 894
Останній візит на сайт сьогодні
Рекомендувати
Адреса
Вашу скаргу прийнято!
Оберіть спосіб підтвердження
Щоб вашу рекомендацію було зараховано, підтвердіть свою особистість
* Особисті дані не відображатимуться на сайті та слугуватимуть лише для підтвердження особистості.
Як верифікуватись через Дію?
Зчитайте QR-код сканером у застосунку Дія й підтвердьте авторизацію Дія.Підписом
QR-код буде дійсний ще 02:00
Як верифікуватись через Bankid?
Верифікація BankID відкриється у новому вікні. Якщо сторінка верифікації не відкрилася, вікно було заблоковане вашим браузером.
Щоб дозволити відкриття вікна, виконайте такі кроки:

1. Перевірте адресний рядок браузера на повідомлення про помилку або піктограму блокування. Натисніть на нього.
2. Якщо у вас встановлено блокувальник спливаючих вікон, тимчасово відключіть його для цього сайту.
3. Перевірте налаштування вашого браузера і переконайтеся, що блокування спливаючих вікон вимкнено або налаштовано на дозвіл відкриття цього вікна.

Якщо проблема залишається невирішеною, зверніться до нашої служби підтримки.
Як верифікуватись через Дію?
Верифікація Дія відкриється у новому вікні. Якщо сторінка верифікації не відкрилася, вікно було заблоковане вашим браузером.
Щоб дозволити відкриття вікна, виконайте такі кроки:

1. Перевірте адресний рядок браузера на повідомлення про помилку або піктограму блокування. Натисніть на нього.
2. Якщо у вас встановлено блокувальник спливаючих вікон, тимчасово відключіть його для цього сайту.
3. Перевірте налаштування вашого браузера і переконайтеся, що блокування спливаючих вікон вимкнено або налаштовано на дозвіл відкриття цього вікна.

Якщо проблема залишається невирішеною, зверніться до нашої служби підтримки.
Вітаємо!
Рекомендацію зараховано!
Незабаром рекомендація зʼявиться на сторінці рієлтора.
Рекомендацію не зараховано.
Ви вже залишали рекомендацію даному рієлтору.
В пропозиції є незбережені дані.