ПРЕМІУМ Комісія 5% єВідновлення Наукова Соснова гірка
51 / 30 / 8 м²
поверх 10 з 16
Утеплена панель
сьогодні
1 тиж. тому
3 (сьогодні 1, вчора 1)
Опис
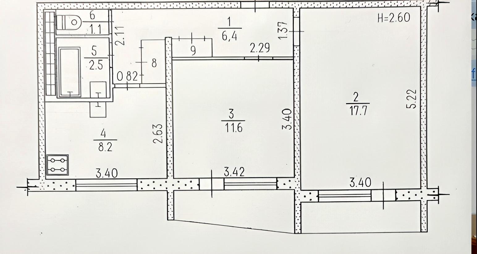
Продається 2к квартира на Павловому Полі за адресою вул. Клочківська 150А.

Поверх 10/16
Площа 51м2

Виконано капітальний ремонт із повною заміною всіх комунікацій, включно з радіаторами опалення. Стан — можна одразу заїжджати та жити.

- Встановлені лічильники на воду
- Газ, електрика, центральна каналізація
- кондиціонер
- Встановлена охоронна сигналізація.

Квартира повністю укомплектована меблями та технікою.
Кухня обладнана меблями з вбудован посудомийною машиною та технікой.

Інфраструктура:
- Поруч супермаркети Восторг, Le Silpo, АТБ
- Магазини, кафе, усе необхідне для комфортного життя
- До метро Наукова — 12 хвилин пішки
- До Восторга та АТБ (вул. Клочківська) — близько 10 хвилин.

Можливий продаж по сертифікату єВідновлення!

№91017
Деталі
В квартирі 2 кімнати, висота стелі 2.6 метра, Технологія будівництва - Утеплена панель. Є газ, кухонна плита газова. Є балкон. У квартирі є Телевізор, Пральна машина, Ванна, Холодильник, Мікрохвильовка. Загальний стан квартири - З ремонтом. Гаряча вода - електричний бойлер. Кількість санвузлів: 1. Власник погоджується продати по програмі єВідновлення. Тип кухні - окрема кухня. Кількість спален: 2. Немає підземного паркінгу, доступного як укриття. Інфраструктура території: дитячий майданчик. Комісія за послуги 5 %
У квартирі є
  • Ресурс 1
    Телевізор
  • Пральна машина
  • Ванна
  • Ресурс 1
    Холодильник
  • Ресурс 1
    Мікрохвильовка
Верифікований профіль
1
Рік досвіду
2
Місяці на сайті
Активних оголошень 13
Ексклюзивних об'єктів 0
Рекламна активність 1407
Останній візит на сайт 3 дні тому
Рекомендувати
Адреса
Вашу скаргу прийнято!
Оберіть спосіб підтвердження
Щоб вашу рекомендацію було зараховано, підтвердіть свою особистість
* Особисті дані не відображатимуться на сайті та слугуватимуть лише для підтвердження особистості.
Як верифікуватись через Дію?
Зчитайте QR-код сканером у застосунку Дія й підтвердьте авторизацію Дія.Підписом
QR-код буде дійсний ще 02:00
Як верифікуватись через Bankid?
Верифікація BankID відкриється у новому вікні. Якщо сторінка верифікації не відкрилася, вікно було заблоковане вашим браузером.
Щоб дозволити відкриття вікна, виконайте такі кроки:

1. Перевірте адресний рядок браузера на повідомлення про помилку або піктограму блокування. Натисніть на нього.
2. Якщо у вас встановлено блокувальник спливаючих вікон, тимчасово відключіть його для цього сайту.
3. Перевірте налаштування вашого браузера і переконайтеся, що блокування спливаючих вікон вимкнено або налаштовано на дозвіл відкриття цього вікна.

Якщо проблема залишається невирішеною, зверніться до нашої служби підтримки.
Як верифікуватись через Дію?
Верифікація Дія відкриється у новому вікні. Якщо сторінка верифікації не відкрилася, вікно було заблоковане вашим браузером.
Щоб дозволити відкриття вікна, виконайте такі кроки:

1. Перевірте адресний рядок браузера на повідомлення про помилку або піктограму блокування. Натисніть на нього.
2. Якщо у вас встановлено блокувальник спливаючих вікон, тимчасово відключіть його для цього сайту.
3. Перевірте налаштування вашого браузера і переконайтеся, що блокування спливаючих вікон вимкнено або налаштовано на дозвіл відкриття цього вікна.

Якщо проблема залишається невирішеною, зверніться до нашої служби підтримки.
Вітаємо!
Рекомендацію зараховано!
Незабаром рекомендація зʼявиться на сторінці рієлтора.
Рекомендацію не зараховано.
Ви вже залишали рекомендацію даному рієлтору.
В пропозиції є незбережені дані.