1
35 000 $
614  $/м²
БЕЗ КОМІСІЇ ПЕРЕУСТУПКА Індустріальна ХТЗ ЖК Миру-3
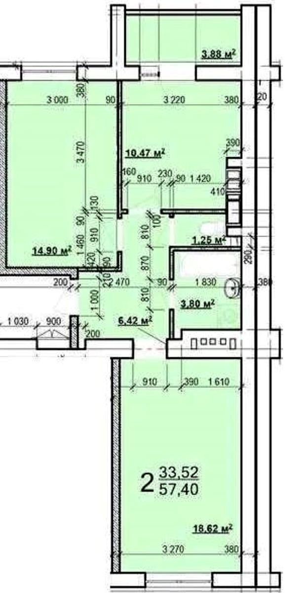
57 / 34 / 10.5 м²
поверх 7 з 9
Цегляна
Спец. проект
2021 рік побудови
3 дні тому
5 днів тому
17 (сьогодні 0, вчора 2)
Опис
Продам свою (без комиссии агентства), просторную квартиру в новострое с большой кухней и двухсторонней планировкой (смотрите планировку), адрес ул. Мира 47, дом полностью выстроен, внутренние работы выполнены (подъезд, лифт, все готово), в доме проживают жильцы. Квартира двусторонняя, не торцевая, лучшая планировка в доме (окна на восток и запад) на 7м этаже дом 9 этажей. Балкон выходит с кухни, раздельный санузел. Выдают документы на право собственности, жильцы делают ремонты и заселяются. Продажа по переуступке пая или с переоформлением. Отличная транспортная развязка, 2 мин пешком круг и остановка троллейбусов, 5-7 мин пешком остановка метро, автостанция. Развитая инфраструктура: супермаркеты; рынок; школы, детсады, парки - все рядом
Деталі
В квартирі 2 кімнати, висота стелі 2.8 метра, Технологія будівництва - Цегляна, Тип будинку - Спец. проект. Немає газу, кухонна плита електрична. Є балкон. Будинок побудований в 2021 році. Загальний стан квартири - Без ремонту. Безбар'єрність: вхід у будинок на рівні землі, дверні отвори в будинку шириною понад 0.9 м, ліфт, пристосований до крісла колісного. Гаряча вода - централізована. Кількість санвузлів: 1. Тип кухні - окрема кухня. Кількість спален: 2. Немає підземного паркінгу, доступного як укриття. Інфраструктура території: дитячий майданчик, спортивний майданчик. Без комісії
Верифікований профіль
10
Років на сайті
Активних оголошень 1
Ексклюзивних об'єктів 0
Рекламна активність 0
Останній візит на сайт 3 дні тому
Рекомендувати
Планування

Адреса
Вашу скаргу прийнято!
Оберіть спосіб підтвердження
Щоб вашу рекомендацію було зараховано, підтвердіть свою особистість
* Особисті дані не відображатимуться на сайті та слугуватимуть лише для підтвердження особистості.
Як верифікуватись через Дію?
Зчитайте QR-код сканером у застосунку Дія й підтвердьте авторизацію Дія.Підписом
QR-код буде дійсний ще 02:00
Як верифікуватись через Bankid?
Верифікація BankID відкриється у новому вікні. Якщо сторінка верифікації не відкрилася, вікно було заблоковане вашим браузером.
Щоб дозволити відкриття вікна, виконайте такі кроки:

1. Перевірте адресний рядок браузера на повідомлення про помилку або піктограму блокування. Натисніть на нього.
2. Якщо у вас встановлено блокувальник спливаючих вікон, тимчасово відключіть його для цього сайту.
3. Перевірте налаштування вашого браузера і переконайтеся, що блокування спливаючих вікон вимкнено або налаштовано на дозвіл відкриття цього вікна.

Якщо проблема залишається невирішеною, зверніться до нашої служби підтримки.
Як верифікуватись через Дію?
Верифікація Дія відкриється у новому вікні. Якщо сторінка верифікації не відкрилася, вікно було заблоковане вашим браузером.
Щоб дозволити відкриття вікна, виконайте такі кроки:

1. Перевірте адресний рядок браузера на повідомлення про помилку або піктограму блокування. Натисніть на нього.
2. Якщо у вас встановлено блокувальник спливаючих вікон, тимчасово відключіть його для цього сайту.
3. Перевірте налаштування вашого браузера і переконайтеся, що блокування спливаючих вікон вимкнено або налаштовано на дозвіл відкриття цього вікна.

Якщо проблема залишається невирішеною, зверніться до нашої служби підтримки.
Вітаємо!
Рекомендацію зараховано!
Незабаром рекомендація зʼявиться на сторінці рієлтора.
Рекомендацію не зараховано.
Ви вже залишали рекомендацію даному рієлтору.
В пропозиції є незбережені дані.