999 000 $
2 047  $/м²
Острівна вул.
БЕЗ КОМІСІЇ Острів Водників
488 / 130 / 50 м²
2 поверхи
10 сот
Будинок
5 кімнат
сьогодні
сьогодні
1 (сьогодні 1, вчора 0)
Опис
Пропонується до продажу сучасний двоповерховий будинок площею 488 м² у Києві, на Острові Водників.

Архітектура та дизайн створені за авторським проєктом відомого дизайнера Сергія Махно. Усередині будинку гармонійно поєднані хай-тек та мінімалізм, що формує атмосферу стилю та витонченості. Друге світло, високі стелі й панорамні вікна забезпечують простір та багато природного світла.

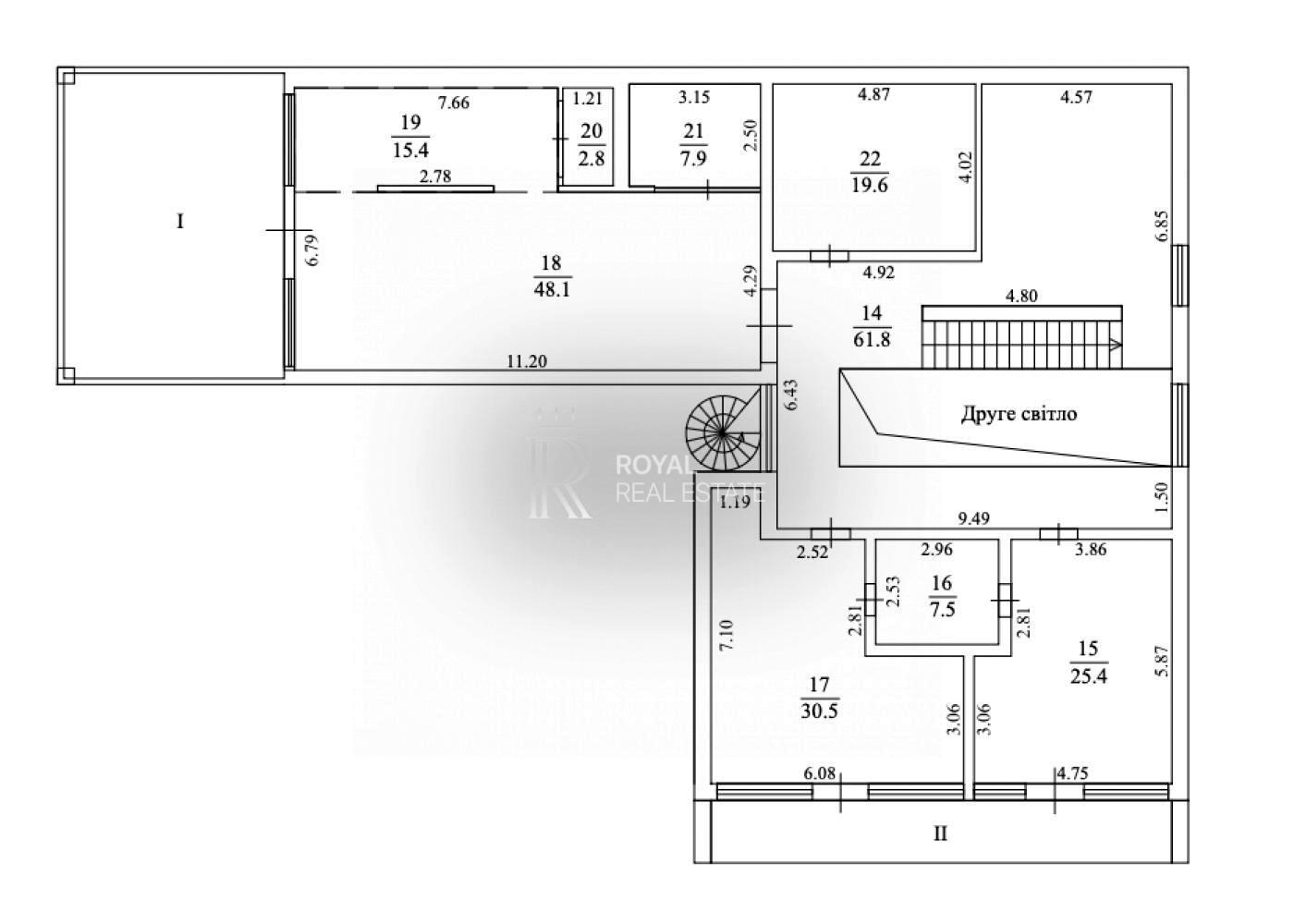
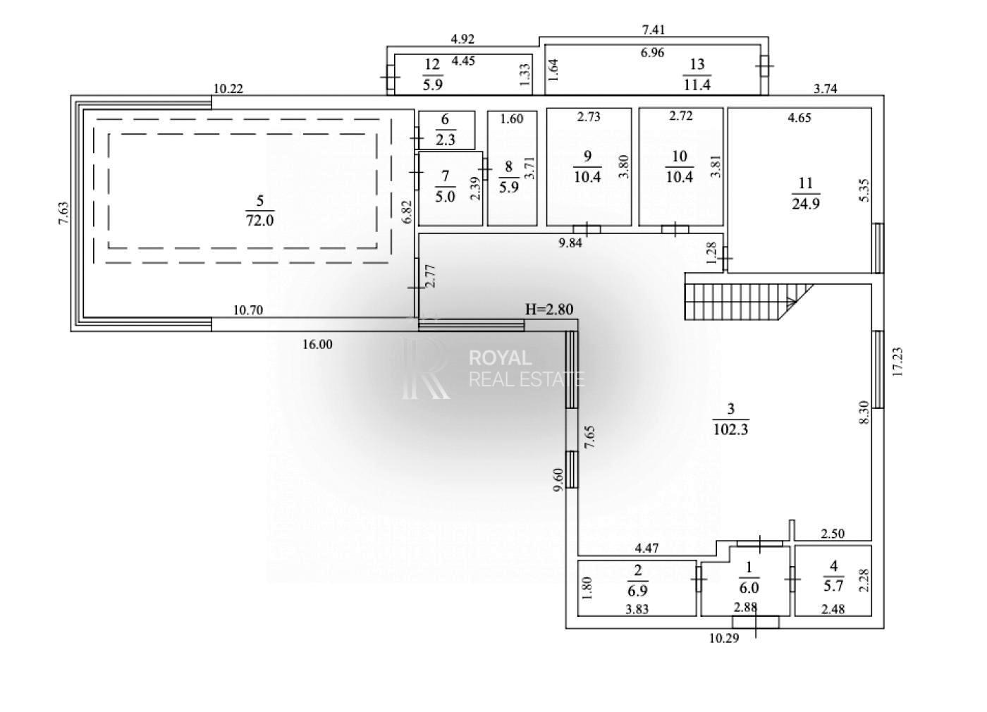
Планування

Перший поверх: простора вітальня з кухнею та виходом на терасу, гардеробна, передпокій, гостьовий санвузол, кімната вільного призначення (кабінет/дитяча), пральня, сауна з басейном і власним санвузлом.
Другий поверх: майстер-спальня з ванною кімнатою та гардеробною, дві дитячі кімнати з власними санвузлами, окремий кабінет/гардеробна та домашній кінотеатр.

Технічні характеристики

Фундамент: моноліт

Стіни: червона цегла + газоблок

Перекриття: монолітні плити

Утеплення: мінеральна вата

Електрика: дві лінії (6 кВт та 30 кВт)

Септик: переливний, об’ємом 10 кубів

Свердловина: глибиною 90 м, система очищення для технічних і харчових потреб

Опалення: твердопаливний котел + електрокотел (24 кВт), підведені комунікації для сонячних панелей чи теплового насоса

Тепла підлога: зонована по всьому будинку (перший поверх повністю, включаючи басейн; на другому — спальні та санвузли)

Будинок повністю укомплектований меблями та технікою від світових брендів. Передбачено кондиціювання, охоронну систему, підігрів підлоги та повний комплекс інженерних комунікацій.

Територія

Ділянка 10 соток з ландшафтним дизайном, барбекю-зоною, відкритим басейном із підігрівом від теплового насоса, затишною терасою та паркомісцем на 2 авто. Є генератор.

Будинок розташований у закритому охоронюваному містечку з повним підключенням до комунікацій.

Локація

Зручна транспортна розв’язка, поруч торговий центр, ресторани, школи та садочки.

RR123.76
Деталі
Будинок, 2 поверхи, 5 кімнат. Площа ділянки 10 соток. Загальний стан будинку - З ремонтом. Без комісії
Royal Real Estate
Верифікований профіль
Silver partner
3
Роки досвіду
1
Рік на сайті
Активних оголошень 50
Ексклюзивних об'єктів 0
Рекламна активність 4152
Останній візит на сайт сьогодні
Рекомендувати
Адреса
Київ, Острівна вул., Голосіївський р-н
Вашу скаргу прийнято!
Оберіть спосіб підтвердження
Щоб вашу рекомендацію було зараховано, підтвердіть свою особистість
* Особисті дані не відображатимуться на сайті та слугуватимуть лише для підтвердження особистості.
Як верифікуватись через Дію?
Зчитайте QR-код сканером у застосунку Дія й підтвердьте авторизацію Дія.Підписом
QR-код буде дійсний ще 02:00
Як верифікуватись через Bankid?
Верифікація BankID відкриється у новому вікні. Якщо сторінка верифікації не відкрилася, вікно було заблоковане вашим браузером.
Щоб дозволити відкриття вікна, виконайте такі кроки:

1. Перевірте адресний рядок браузера на повідомлення про помилку або піктограму блокування. Натисніть на нього.
2. Якщо у вас встановлено блокувальник спливаючих вікон, тимчасово відключіть його для цього сайту.
3. Перевірте налаштування вашого браузера і переконайтеся, що блокування спливаючих вікон вимкнено або налаштовано на дозвіл відкриття цього вікна.

Якщо проблема залишається невирішеною, зверніться до нашої служби підтримки.
Як верифікуватись через Дію?
Верифікація Дія відкриється у новому вікні. Якщо сторінка верифікації не відкрилася, вікно було заблоковане вашим браузером.
Щоб дозволити відкриття вікна, виконайте такі кроки:

1. Перевірте адресний рядок браузера на повідомлення про помилку або піктограму блокування. Натисніть на нього.
2. Якщо у вас встановлено блокувальник спливаючих вікон, тимчасово відключіть його для цього сайту.
3. Перевірте налаштування вашого браузера і переконайтеся, що блокування спливаючих вікон вимкнено або налаштовано на дозвіл відкриття цього вікна.

Якщо проблема залишається невирішеною, зверніться до нашої служби підтримки.
Вітаємо!
Рекомендацію зараховано!
Незабаром рекомендація зʼявиться на сторінці рієлтора.
Рекомендацію не зараховано.
Ви вже залишали рекомендацію даному рієлтору.
В пропозиції є незбережені дані.