68 000 $
901
$/м²
Балківська вул., 119а
Новобудова
2022 рік побудови
1 міс. тому
3 міс. тому
13 (сьогодні 0,
вчора 0)
Опис
Продам. Клубний 7. Красивий вид. Можливий продаж за Програмою
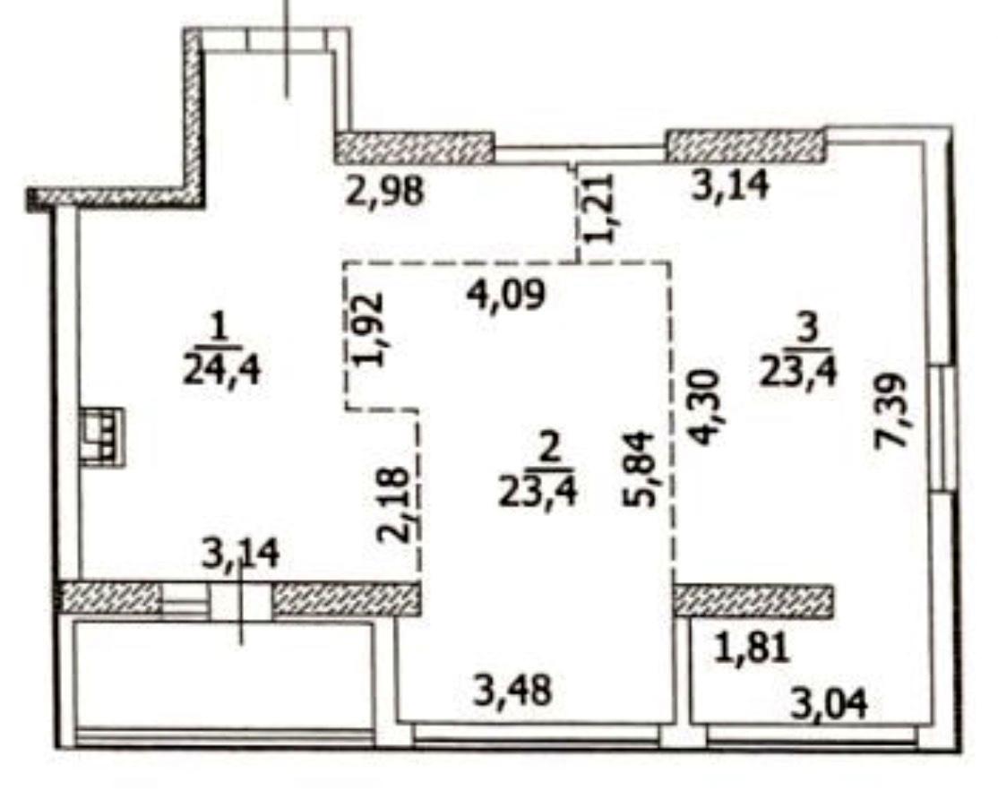
• площа 75,5 м²
• 7 поверх
• 2 кімнати та кухня-студія
• 2-контурний котел
• лоджія
• стан від будівельників
• хороша транспортна розв’язка
ціна 68 000, право власності
Телефонуйте! Організую показ у зручний для Вас час
Сергій 0676070007
• площа 75,5 м²
• 7 поверх
• 2 кімнати та кухня-студія
• 2-контурний котел
• лоджія
• стан від будівельників
• хороша транспортна розв’язка
ціна 68 000, право власності
Телефонуйте! Організую показ у зручний для Вас час
Сергій 0676070007
Деталі
В квартирі 2 кімнати, Тип будинку - Новобудова. Планування кімнат Роздільне. Будинок побудований в 2022 році. Загальний стан квартири - Без ремонту. Комісія за послуги 5 %

Оголюк Сергій
Рієлтор
| Активних оголошень | 6 |
| Ексклюзивних об'єктів | 0 |
| Рекламна активність | 0 |
| Останній візит на сайт | сьогодні |
Рекомендувати
Історія зміни ціни
| 01.04.2026 | - 2 000 $ | 68 000 $ |
| 15.02.2026 | 70 000 $ |









