1
2 500 000 $
2 222  $/м²
приміщення вільного призначення
1125 м²
сьогодні
10 міс. тому
35 (сьогодні 0, вчора 0)
Опис
ПРОДАЖ окремо стоячої будівлі
вул. Зоологічна
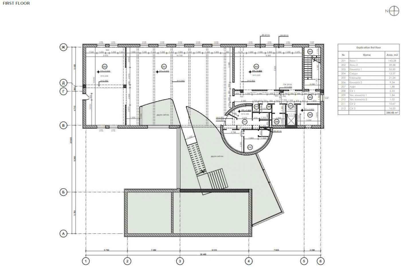
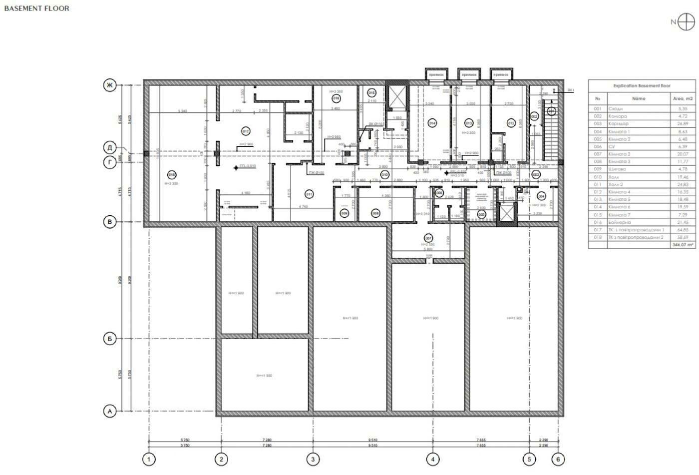
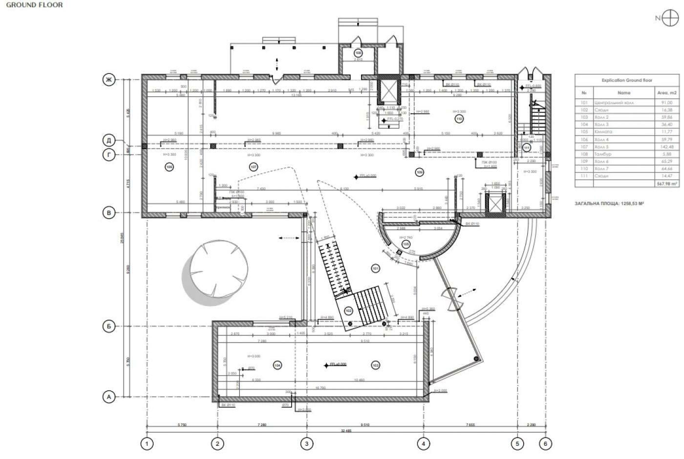
2 поверхова будівля з облаштованим підвалом та горищем

ПЛОЩА - 1125 м.кв.

Відмінна пропозиція на купівлю будівлі , яка підійде для ведення багатьох напрямків бізнесу. Тут може бути Ваша майбутня клініка, офіс компанії, ресторан, розважальний центр, банк, культурний центр та інше.

Приміщення розміщене у дуже вдалій локації з розвиненою інфрастуктурою:
- до центру міста -15хв.,
- до метро Лук'янівська - 10 хвилин.
- поруч добудовується великий ЖК.
- зручна транспортна розв'язка

В приміщенні виконані демонтажні роботи, тож все готово для початку ремонту.
Сама будівля має дуже відмінне планування. Будівля двоповерхова з підвалом, який використовувався для розміщення технічного обладнання та вузлів комунікацій. Також є горище .
З будівлі є 5 виходів , що дозволяє зонувати приміщення та розділяти будівлю .

Ділянка 27 соток - землі житлової та громадської забудови. Форма п'ятикутна з двома заїздами та огорожена кам'яним парканом.
Парковка на 20 автомобілів, на території є багаторічні насадження та дорослі дерева

Внутрішній двір

Також в приміщенні є конференц-зала з встановленим проектором, де можна проводити тренінги та збори команди.


Комунікації:
- Електроенергія- 200 кВт ;
- Опалення - централізоване ( від міста);
- Вода, каналізація- централізоване
- Система вентиляції та кондиціювання;


ІНФРАСТРУКТУРА:
Розташування приміщення дуже зручне, що дозволяє комфортно дістатися до нього персоналу та потенційними клієнтам, всього 10 хвилин від метро Лук'янівська та 15 хв до центру міста. Поряд є магазини, кафе, ресторани, відділення банку та Нової Пошти.

Перегляд у будь-який зручний для Вас час!

#A14942
Деталі
Об'єкт комерційної нерухомості, Окремо стояча будівля, Готова будівля, Приміщення вільного призначення. Комісія за послуги 5 %
THE Capital
Верифікований профіль
Silver partner
9
Років досвіду
12
Верифікованих рекомендацій
6
Років на сайті
Активних оголошень 559
Ексклюзивних об'єктів 0
Рекламна активність 518471
Останній візит на сайт сьогодні
Рекомендувати
Історія зміни ціни
21.04.2026 + 500 000 $ 2 500 000 $
02.02.2026 + 400 000 $ 2 000 000 $
07.06.2025 1 600 000 $
Адреса
Вашу скаргу прийнято!
Оберіть спосіб підтвердження
Щоб вашу рекомендацію було зараховано, підтвердіть свою особистість
* Особисті дані не відображатимуться на сайті та слугуватимуть лише для підтвердження особистості.
Як верифікуватись через Дію?
Зчитайте QR-код сканером у застосунку Дія й підтвердьте авторизацію Дія.Підписом
QR-код буде дійсний ще 02:00
Як верифікуватись через Bankid?
Верифікація BankID відкриється у новому вікні. Якщо сторінка верифікації не відкрилася, вікно було заблоковане вашим браузером.
Щоб дозволити відкриття вікна, виконайте такі кроки:

1. Перевірте адресний рядок браузера на повідомлення про помилку або піктограму блокування. Натисніть на нього.
2. Якщо у вас встановлено блокувальник спливаючих вікон, тимчасово відключіть його для цього сайту.
3. Перевірте налаштування вашого браузера і переконайтеся, що блокування спливаючих вікон вимкнено або налаштовано на дозвіл відкриття цього вікна.

Якщо проблема залишається невирішеною, зверніться до нашої служби підтримки.
Як верифікуватись через Дію?
Верифікація Дія відкриється у новому вікні. Якщо сторінка верифікації не відкрилася, вікно було заблоковане вашим браузером.
Щоб дозволити відкриття вікна, виконайте такі кроки:

1. Перевірте адресний рядок браузера на повідомлення про помилку або піктограму блокування. Натисніть на нього.
2. Якщо у вас встановлено блокувальник спливаючих вікон, тимчасово відключіть його для цього сайту.
3. Перевірте налаштування вашого браузера і переконайтеся, що блокування спливаючих вікон вимкнено або налаштовано на дозвіл відкриття цього вікна.

Якщо проблема залишається невирішеною, зверніться до нашої служби підтримки.
Вітаємо!
Рекомендацію зараховано!
Незабаром рекомендація зʼявиться на сторінці рієлтора.
Рекомендацію не зараховано.
Ви вже залишали рекомендацію даному рієлтору.
В пропозиції є незбережені дані.