270 000 $
2 687
$/м²
приміщення вільного призначення
100.5 м²
2 дні тому
11 міс. тому
19 (сьогодні 0,
вчора 0)
Опис
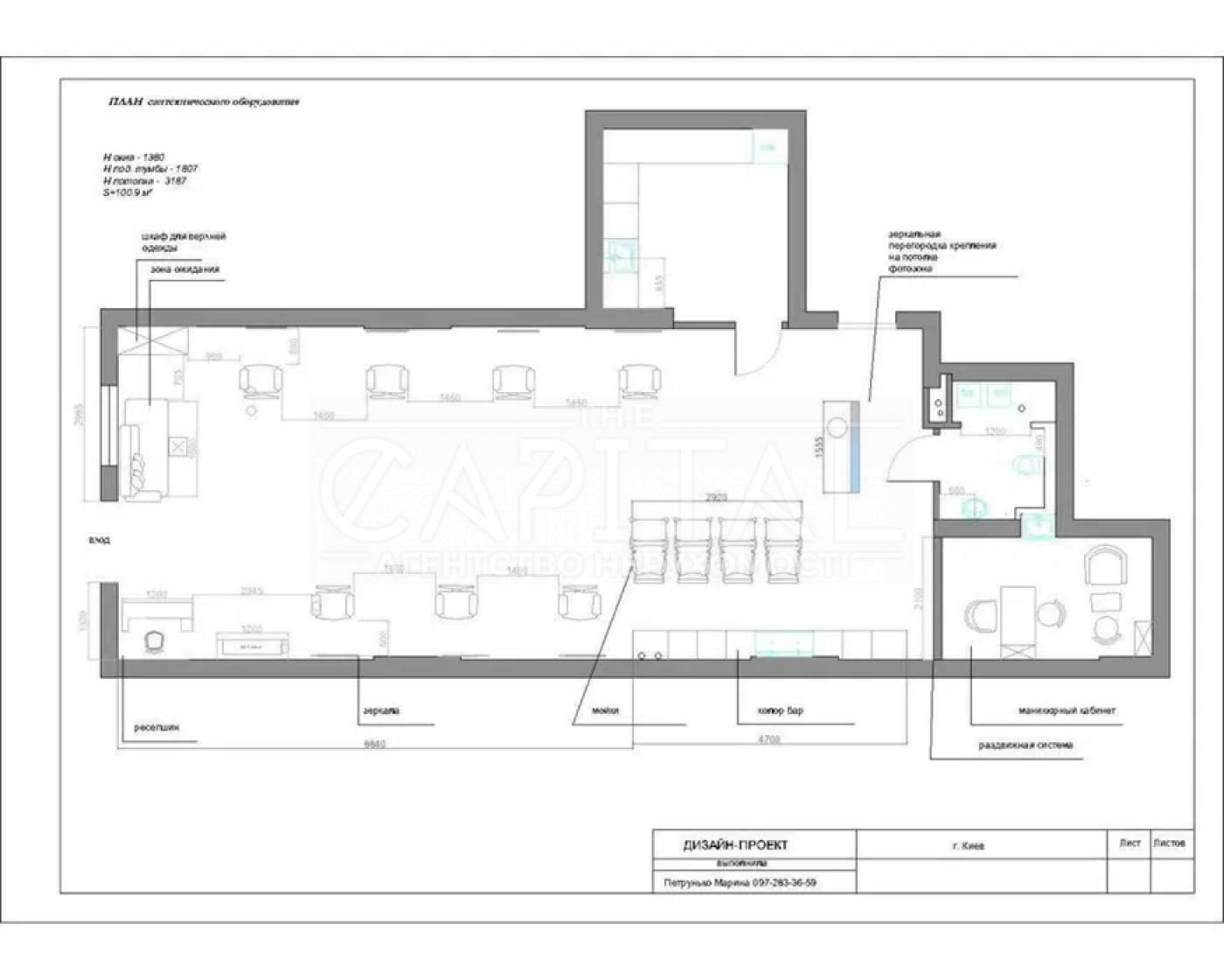
Пропонується до продажу новий, діючий салон краси (коворкінг) площею 100 квадратних метрів в ЖК Рів'єра. Дизайнерський ремонт, укомплектований усім необхідним: італійські мийки та крісла перукаря, колорбар, ресепшен, місце відпочинку для клієнтів, відеоспостереження, відмінна акустика. JBL .Тепла підлога, Опалення-тепловий насос, ємність на 500 літрів з автоматичною подачею води на випадок відключення, німецький дизель генератор, професійна система вентиляції, система водоочищення, сан. вузол. Кухня для персоналу обладнана пральною та сушильною машинами, мікрохвильовою піччю, кавомашиною, холодильником і т. д. Салон на 7 перукарських місць і кабінет косметології, робилося все для себе, не заради продажу, видно на фото. Стоянка для гостей в 20 метрах, зручна транспортна розв'язка, до станції метро Славутич 100 метрів.
Висота стелі 3,1 м.
#315917354971
Висота стелі 3,1 м.
#315917354971
Деталі
Об'єкт комерційної нерухомості, Приміщення вільного призначення. Комісія за послуги 5 %























