1
2 500 000 $
3 333  $/м²
торгівельне приміщення, приміщення вільного призначення, офісне приміщення
750 м²
1 тиж. тому
9 міс. тому
60 (сьогодні 0, вчора 0)
Опис
Продаж окремостоячої будівлі 750 м² — Печерськ, вул. Болсуновська, 4

Ціна: 2 500 000 $ (торг можливий)
Без комісії для покупця. Представник власника.

Пропонується до продажу сучасна окремо розташована будівля у престижній діловій локації Печерська. Формат ідеально підходить під клініку, офіс компанії, навчальний центр чи R&D-хаб. Будівля має повну автономність, 2 фасадні входи, власний підвал і приватні паркомісця — рідкість для району.


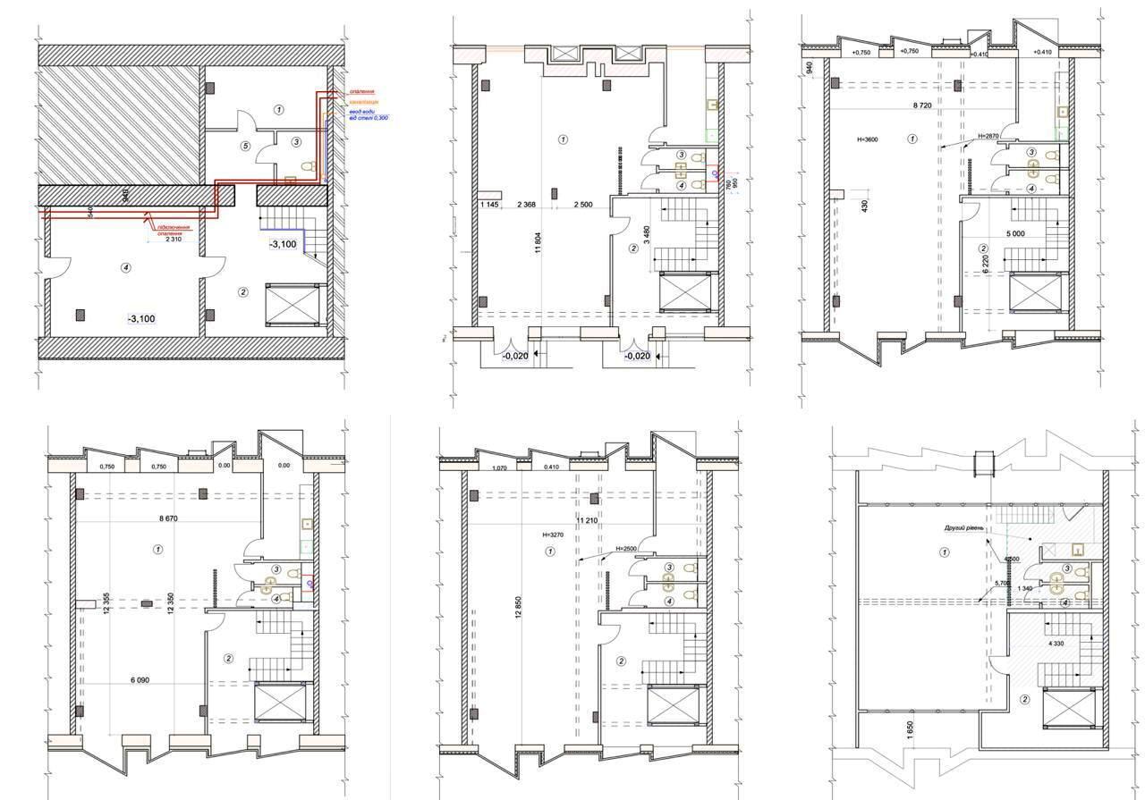
Основна інформація

• Площа: 750 м²
• Поверхи: 5 поверхів + повноцінний підвал/укрыття
• 2 окремі фасадні входи
• Закрита територія
• Ліфт, який спускається у підвал

2 фасадні входи дозволяють створити окремі зони для клієнтів і персоналу або виділити 1-й поверх як окремий офіс/рецепцію.


Стан будівлі та ремонт

✔ Виконані роботи по всій будівлі:

— повна інженерія
— електрика
— пожежна безпека
— вентиляція
— кондиціонування
— ліфт

✔ Готовий 3-й поверх
Повністю виконаний якісний ремонт — наочно демонструє стиль, рівень матеріалів та якість роботи.


Опції для покупця

1. Завершення ремонту під ключ (під зразок 3-го поверху)

Можемо завершити ремонт усієї будівлі у такому ж стилі:
• узгодження дизайну
• підбір матеріалів
• підлога, світло, стіни
• санвузли
• підвал (кабінет, спортзал або зона відпочинку)

Термін завершення: 1,5–2 місяці.

2. Продаж у поточному стані (як є)

Якщо покупець хоче завершити ремонт самостійно або під свій формат,
надається знижка, що компенсує вартість фінішних робіт.

Це дозволяє покупцю реалізувати власне планування та дизайн.



Підвал (повноцінний)

• сухий, утеплений
• евакуаційний вихід
• ліфт спускається прямо у підвал
• згідно з проєктом — спортзал із душовою, можливі складські зони, кабінет укриття або технічні приміщення



Функціональні можливості

Будівля ідеально підходить для:
• приватної клініки / медичного центру
• стоматології
• офісу компанії / штаб-квартири
• юридичної чи консалтингової компанії
• IT / R&D центру
• освітнього або аналітичного хабу



Паркінг
• 2 власні паркомісця
• можливість орендувати до 5 додаткових



Переваги локації

• серце Печерська
• близькість до бульвару Миколи Міхновського
• представницьке бізнес-оточення
• зручний під’їзд та хороша видимість
• топ-нагрузка для медичних і ділових форматів


Окремостояча будівля на Печерську з готовою інженерією, підвалом, двома входами та можливістю завершення ремонту під клієнта — винятково рідкісний об’єкт.
Підходить як для власного використання, так і як інвестиція (ринкова орендна ставка 25–30 $/м²).
Деталі
Об'єкт комерційної нерухомості, Клас A, Окремо стояча будівля, Готова будівля, Офісне приміщення, Приміщення вільного призначення, Торгівельне приміщення. Об'єкт на 1, 2, 3, 4, 5 поверхах, У будівлі 5 поверхів. Без комісії
Property Partners
Верифікований профіль
Gold partner
16
Років досвіду
4
Роки на сайті
Активних оголошень 21
Ексклюзивних об'єктів 1
Рекламна активність 343
Останній візит на сайт 4 дні тому
Рекомендувати
Адреса
Вашу скаргу прийнято!
Оберіть спосіб підтвердження
Щоб вашу рекомендацію було зараховано, підтвердіть свою особистість
* Особисті дані не відображатимуться на сайті та слугуватимуть лише для підтвердження особистості.
Як верифікуватись через Дію?
Зчитайте QR-код сканером у застосунку Дія й підтвердьте авторизацію Дія.Підписом
QR-код буде дійсний ще 02:00
Як верифікуватись через Bankid?
Верифікація BankID відкриється у новому вікні. Якщо сторінка верифікації не відкрилася, вікно було заблоковане вашим браузером.
Щоб дозволити відкриття вікна, виконайте такі кроки:

1. Перевірте адресний рядок браузера на повідомлення про помилку або піктограму блокування. Натисніть на нього.
2. Якщо у вас встановлено блокувальник спливаючих вікон, тимчасово відключіть його для цього сайту.
3. Перевірте налаштування вашого браузера і переконайтеся, що блокування спливаючих вікон вимкнено або налаштовано на дозвіл відкриття цього вікна.

Якщо проблема залишається невирішеною, зверніться до нашої служби підтримки.
Як верифікуватись через Дію?
Верифікація Дія відкриється у новому вікні. Якщо сторінка верифікації не відкрилася, вікно було заблоковане вашим браузером.
Щоб дозволити відкриття вікна, виконайте такі кроки:

1. Перевірте адресний рядок браузера на повідомлення про помилку або піктограму блокування. Натисніть на нього.
2. Якщо у вас встановлено блокувальник спливаючих вікон, тимчасово відключіть його для цього сайту.
3. Перевірте налаштування вашого браузера і переконайтеся, що блокування спливаючих вікон вимкнено або налаштовано на дозвіл відкриття цього вікна.

Якщо проблема залишається невирішеною, зверніться до нашої служби підтримки.
Вітаємо!
Рекомендацію зараховано!
Незабаром рекомендація зʼявиться на сторінці рієлтора.
Рекомендацію не зараховано.
Ви вже залишали рекомендацію даному рієлтору.
В пропозиції є незбережені дані.