376 500 $
1 500
$/м²
Антоновича вул. (Горького), 103-А
приміщення вільного призначення, офісне приміщення
251 м²
вчора
9 міс. тому
49 (сьогодні 0,
вчора 0)
Опис
Продаж офісних приміщень
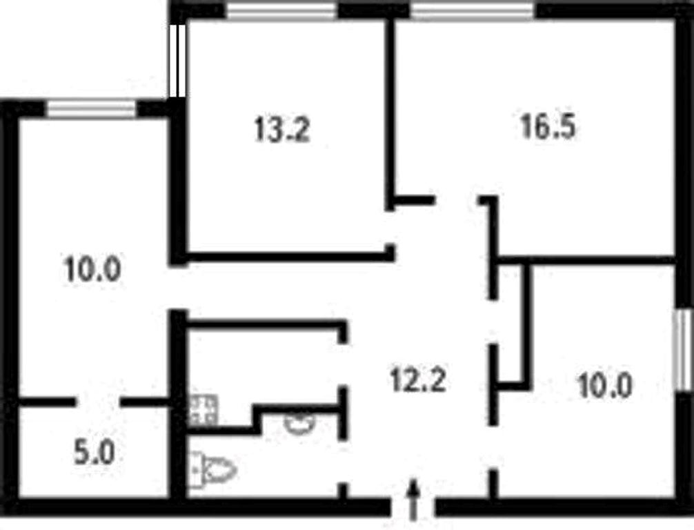
Антоновича 103-А, м. Палац Україна - 251м, \ 177,1 м' і 73.9 м'\ 19 поверх із 20
БЕЗ КОМІСІЇ для покупця
Без відключень \лінія метро\
Комунальні платежи та опалення ~ 19000грн\міс. плюс лічильники \ вода, елентрика\
Локація та характеристики:
станція метро Палац Україна 3хвл.пішки
нежитловий фонд
Переваги приміщення:
- центр міста, панорамний вид
- економне опалення\ автоматика на будинок, економія до 25 %\
- можливість встановити генератор на даху
- юридична адреса, повний пакет документів
-безпечна угода, ФОП, 2 група, розрахунок через банк
Оснащення та зручності
-кондиціонери, вбудовані шафи
-кухня, ел.плита, витяжка
-санвузел,\ без душу, з можливістю встановлення\
-оптоволоконний інтернет\ до 1000Мбіт\с\, серверна шафа
-пожежна та охоронна сигналізації
-відеодомофон до ліфта \ плюс можлива дод. камера\
-конс'єрж, контроль доступу.
Є можливість продажу окремо
Антоновича 103-А, м. Палац Україна - 251м, \ 177,1 м' і 73.9 м'\ 19 поверх із 20
БЕЗ КОМІСІЇ для покупця
Без відключень \лінія метро\
Комунальні платежи та опалення ~ 19000грн\міс. плюс лічильники \ вода, елентрика\
Локація та характеристики:
станція метро Палац Україна 3хвл.пішки
нежитловий фонд
Переваги приміщення:
- центр міста, панорамний вид
- економне опалення\ автоматика на будинок, економія до 25 %\
- можливість встановити генератор на даху
- юридична адреса, повний пакет документів
-безпечна угода, ФОП, 2 група, розрахунок через банк
Оснащення та зручності
-кондиціонери, вбудовані шафи
-кухня, ел.плита, витяжка
-санвузел,\ без душу, з можливістю встановлення\
-оптоволоконний інтернет\ до 1000Мбіт\с\, серверна шафа
-пожежна та охоронна сигналізації
-відеодомофон до ліфта \ плюс можлива дод. камера\
-конс'єрж, контроль доступу.
Є можливість продажу окремо
Деталі
Об'єкт комерційної нерухомості, Приміщення в житловому будинку, Готова будівля, Офісне приміщення, Приміщення вільного призначення. Об'єкт на 19 поверсі, У будівлі 20 поверхів. Без комісії
Історія зміни ціни
| 15.08.2025 | + 110 850 $ | 376 500 $ |
| 15.08.2025 | 265 650 $ |




































