1
245 000 $
2 290  $/м²
торгівельне приміщення, виробниче приміщення, приміщення для надання послуг, офісне приміщення
107 м²
1 міс. тому
8 міс. тому
46 (сьогодні 0, вчора 1)
Опис
#933

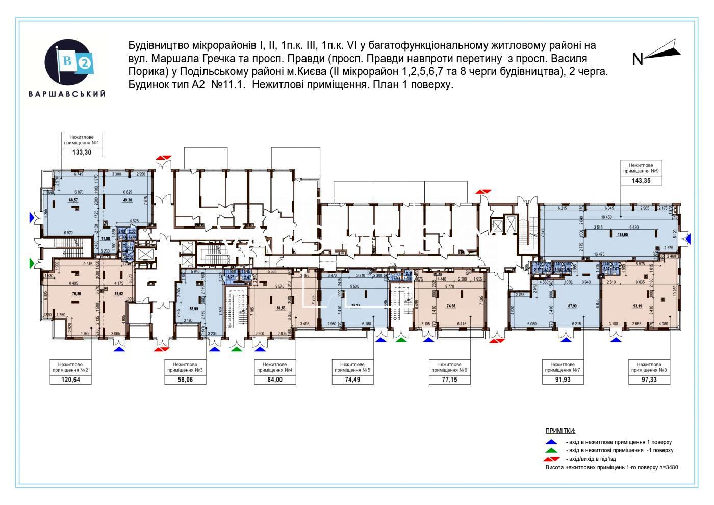
Продається комерційне приміщення в житловому комплексі — 107 м², перший поверх

Пропонується до продажу просторе комерційне приміщення загальною площею 107 м², розташоване на 1 поверсі нового сучасного ЖК. Ідеальний варіант для бізнесу з постійним клієнтським потоком — магазин, офіс, салон, кафе або медичний центр.

Основні характеристики:

Площа: 107 м² — вдале поєднання простору та функціональності

Поверх: 1-й — прямий вхід з вулиці, зручний доступ для клієнтів

Фасадне розташування — відмінна видимість, можливість розміщення вивіски

Вітринні вікна — ідеальні для демонстрації товару або створення привабливої атмосфери

Переваги:

Новий ЖК із високим рівнем заселення — стабільний потік потенційних клієнтів

Можливість вільного планування під потреби конкретного бізнесу

Підключення до всіх центральних комунікацій

Окремий вхід, високі стелі, зручне зонування

Територія комплексу охороняється, забезпечено паркування для клієнтів

Призначення:

Торгова точка

Кав’ярня, ресторан, пекарня

Медичний чи стоматологічний кабінет

Салон краси, барбершоп

Офіс, шоурум, сервісний центр
Деталі
Об'єкт комерційної нерухомості, Приміщення в житловому будинку, Готова будівля, Офісне приміщення, Приміщення для надання послуг, Виробниче приміщення, Торгівельне приміщення. Об'єкт на 1 поверсі, У будівлі 23 поверхи. Комісія за послуги 3 %
Varshavsky House
Верифікований профіль
3
Роки досвіду
1
Верифікована рекомендація
1
Рік на сайті
Активних оголошень 14
Ексклюзивних об'єктів 0
Рекламна активність 7118
Останній візит на сайт вчора
Рекомендувати
Адреса
будинків здано 164
рік заснування 2003
будинків в процесі 22
Вашу скаргу прийнято!
Оберіть спосіб підтвердження
Щоб вашу рекомендацію було зараховано, підтвердіть свою особистість
* Особисті дані не відображатимуться на сайті та слугуватимуть лише для підтвердження особистості.
Як верифікуватись через Дію?
Зчитайте QR-код сканером у застосунку Дія й підтвердьте авторизацію Дія.Підписом
QR-код буде дійсний ще 02:00
Як верифікуватись через Bankid?
Верифікація BankID відкриється у новому вікні. Якщо сторінка верифікації не відкрилася, вікно було заблоковане вашим браузером.
Щоб дозволити відкриття вікна, виконайте такі кроки:

1. Перевірте адресний рядок браузера на повідомлення про помилку або піктограму блокування. Натисніть на нього.
2. Якщо у вас встановлено блокувальник спливаючих вікон, тимчасово відключіть його для цього сайту.
3. Перевірте налаштування вашого браузера і переконайтеся, що блокування спливаючих вікон вимкнено або налаштовано на дозвіл відкриття цього вікна.

Якщо проблема залишається невирішеною, зверніться до нашої служби підтримки.
Як верифікуватись через Дію?
Верифікація Дія відкриється у новому вікні. Якщо сторінка верифікації не відкрилася, вікно було заблоковане вашим браузером.
Щоб дозволити відкриття вікна, виконайте такі кроки:

1. Перевірте адресний рядок браузера на повідомлення про помилку або піктограму блокування. Натисніть на нього.
2. Якщо у вас встановлено блокувальник спливаючих вікон, тимчасово відключіть його для цього сайту.
3. Перевірте налаштування вашого браузера і переконайтеся, що блокування спливаючих вікон вимкнено або налаштовано на дозвіл відкриття цього вікна.

Якщо проблема залишається невирішеною, зверніться до нашої служби підтримки.
Вітаємо!
Рекомендацію зараховано!
Незабаром рекомендація зʼявиться на сторінці рієлтора.
Рекомендацію не зараховано.
Ви вже залишали рекомендацію даному рієлтору.
В пропозиції є незбережені дані.