690 000 $
614  $/м²
приміщення вільного призначення, склад, приміщення для надання послуг, офісне приміщення
1123 м²
2015 рік побудови
2 дні тому
6 міс. тому
124 (сьогодні 0, вчора 1)
Опис
​Окрема офісна будівля загальною площею 1123 м² з земельною ділянкою 21 сотка. Розташована за адресою: вул. Кирилівська, 160, у діловій частині Подільського району.
​Це готове рішення для вашого бізнесу або стратегічна інвестиція з високим потенціалом капіталізації за вигідною ціною.
​Ключові характеристики:
​Адреса: м. Київ, Подільський р-н, вул. Кирилівська, 160.
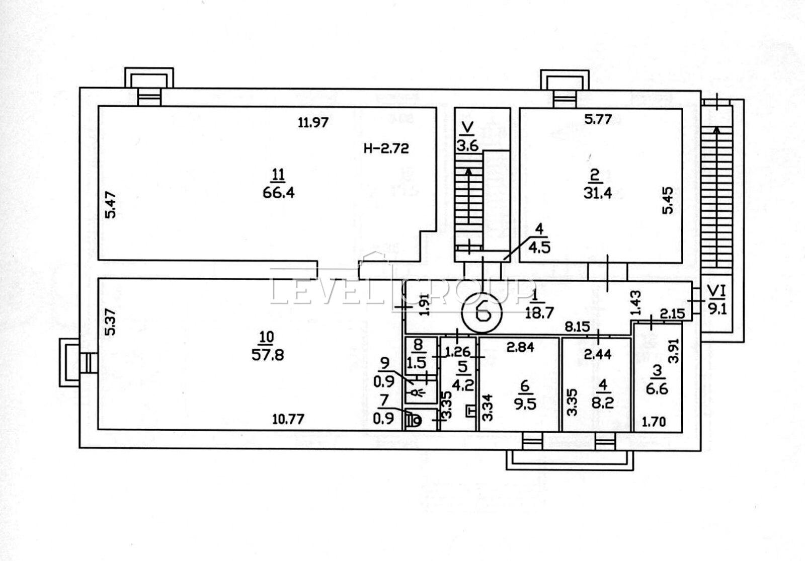
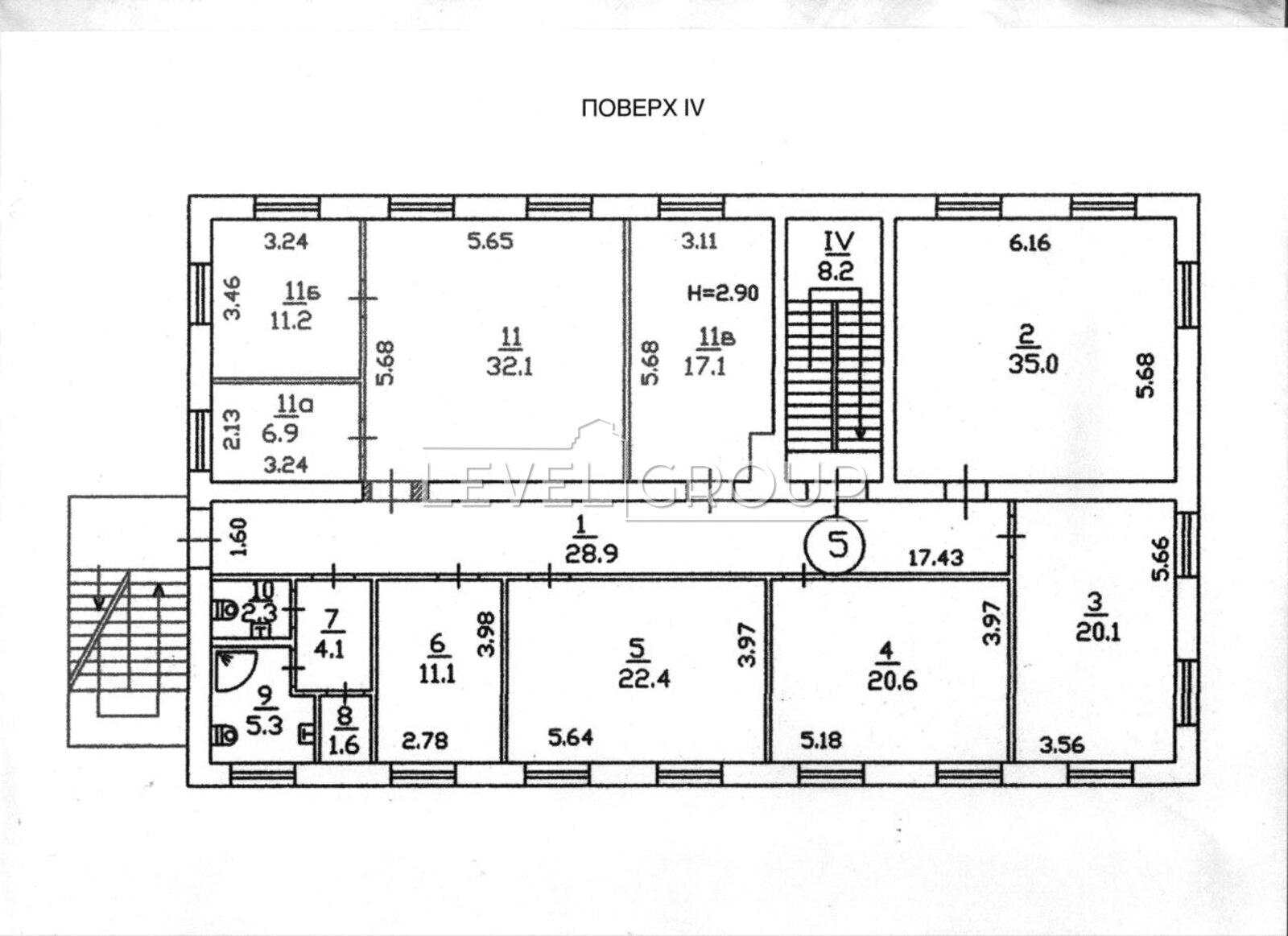
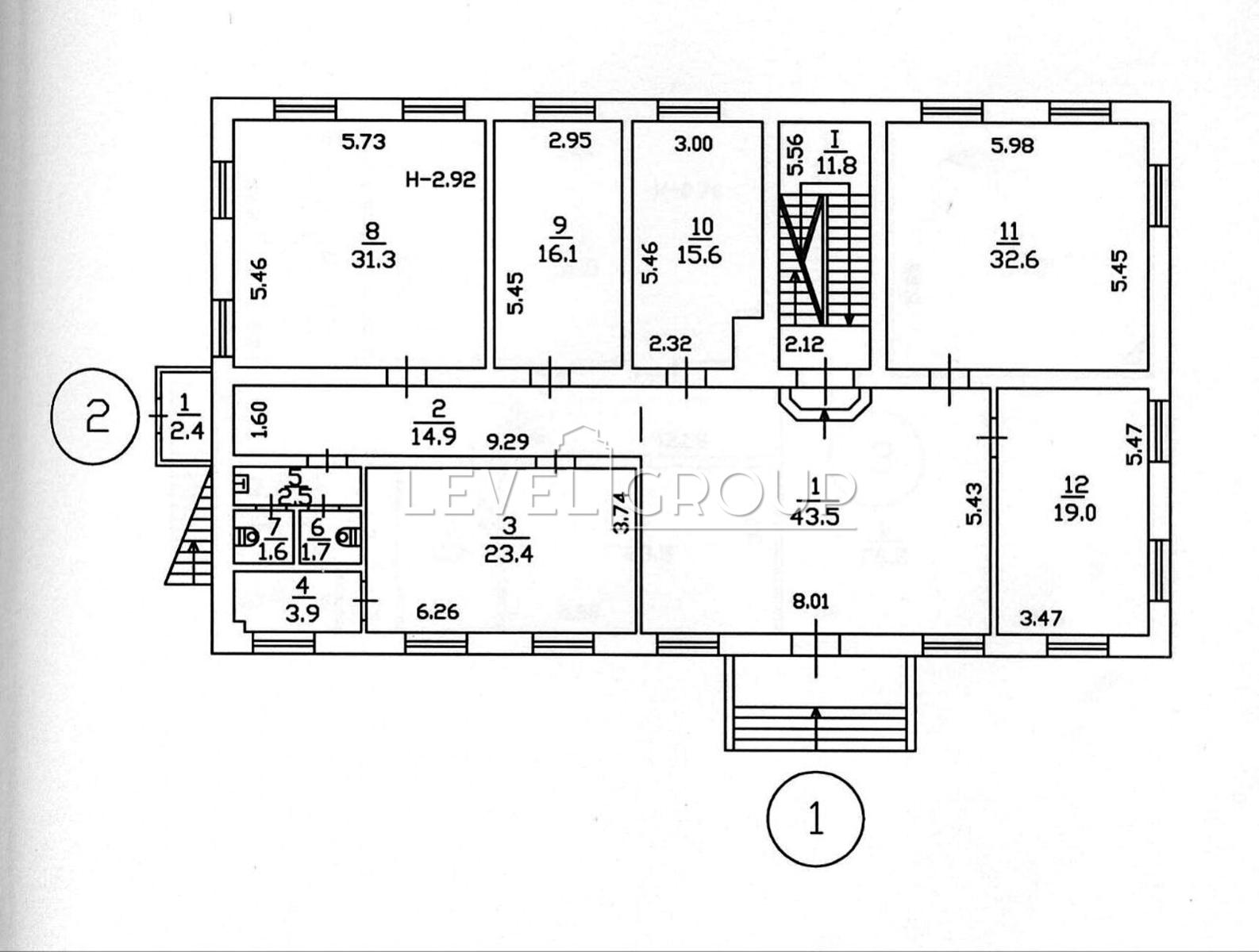
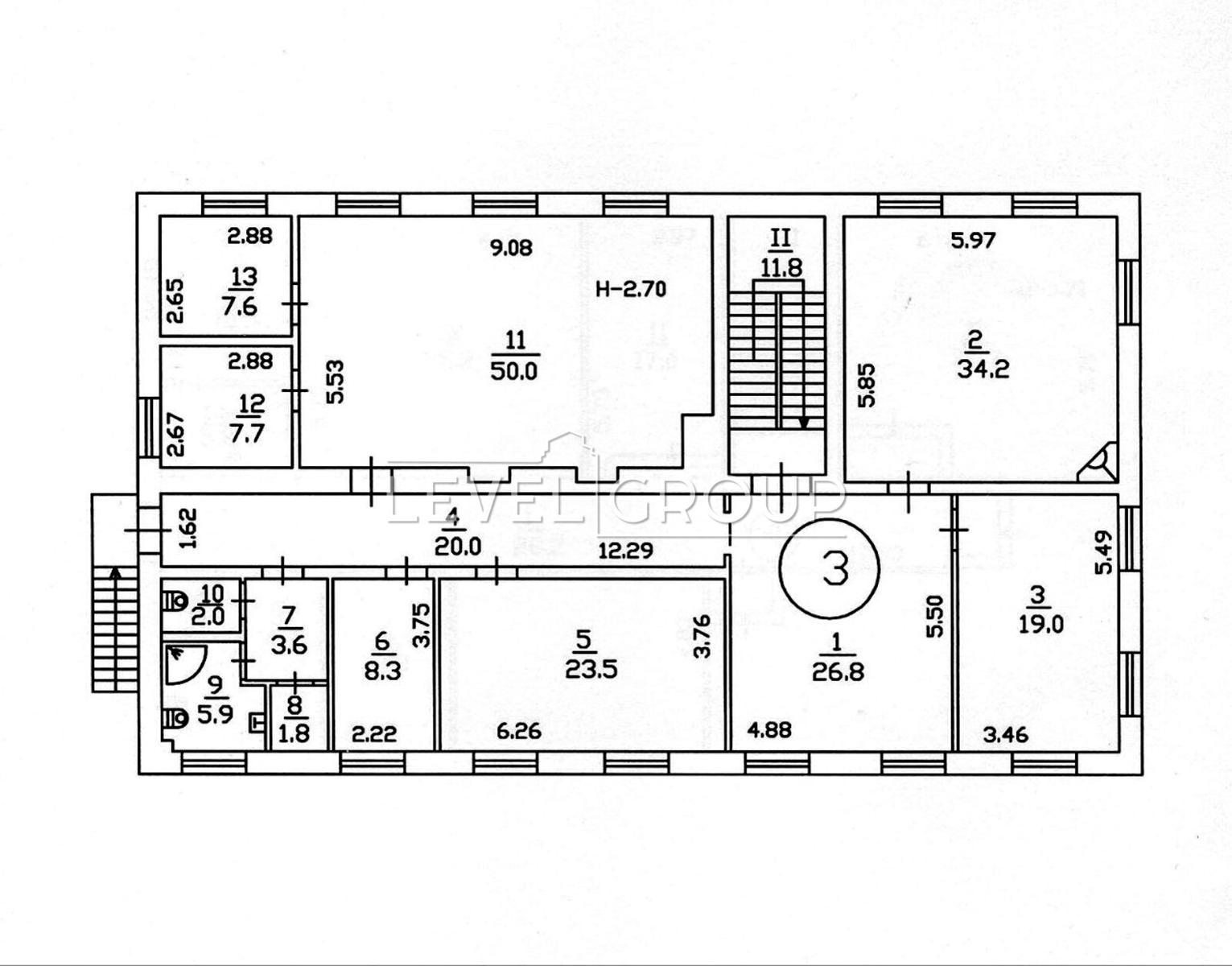
​Площа будівлі: 1123 м² (4 поверхи + повноцінний підвал з підйомником).
​Площа ділянки: 21 сотка
​Планування: 27 кабінетів, автономна кухня на кожному поверсі (поверхи автономні та за необхідності можуть здаватися в оренду окремо)
​Стан: Якісний офісний ремонт, об'єкт повністю готовий до експлуатації.

Переваги, що створюють цінність:
​Автономність та функціональність. Повністю незалежна будівля дозволяє організувати бізнес-процеси будь-якої складності. Кожен поверх може функціонувати як окремий офісний блок, що ідеально для великої компанії або для здачі в оренду кільком орендарям.
​Логістичний вузол. Обладнаний підвал з промисловим підйомним краном є готовим рішенням для організації складу, архіву чи дрібного виробництва. Це унікальна можливість поєднати офіс та логістику в одній локації.
​Ділянка 21 сотка у Києві — це рідкісний ресурс. Вона забезпечує велику кількість паркомісць та відкриває перспективи для додаткової забудови чи розширення інфраструктури в майбутньому.
​Вигідна інвестиція. Вартість квадратного метра значно нижча за ринкову для об'єктів такого класу. Це гарантує не лише збереження капіталу, а і його приріст у найближчій перспективі.
​Локація:
Зручне транспортне сполучення, близькість до метро "Дорогожичі", зупинок трамвая та автобусів. Поруч розташовані магазини, кафе, банки та Куренівський парк.
​Цей об'єкт — не просто нерухомість, а потужний актив для розвитку вашого бізнесу. Запрошуємо на перегляд, щоб особисто оцінити всі його переваги.
Деталі
Об'єкт комерційної нерухомості, Окремо стояча будівля, Готова будівля, Офісне приміщення, Приміщення для надання послуг, Склад, Приміщення вільного призначення. Будинок побудований в 2015 році. Без комісії
Level Group
Верифікований профіль
6
Років досвіду
5
Років на сайті
Активних оголошень 41
Ексклюзивних об'єктів 0
Рекламна активність 693
Останній візит на сайт вчора
Рекомендувати
Історія зміни ціни
16.02.2026 + 20 000 $ 690 000 $
10.02.2026 - 20 000 $ 670 000 $
02.02.2026 - 110 000 $ 690 000 $
29.09.2025 800 000 $
Адреса
Вашу скаргу прийнято!
Оберіть спосіб підтвердження
Щоб вашу рекомендацію було зараховано, підтвердіть свою особистість
* Особисті дані не відображатимуться на сайті та слугуватимуть лише для підтвердження особистості.
Як верифікуватись через Дію?
Зчитайте QR-код сканером у застосунку Дія й підтвердьте авторизацію Дія.Підписом
QR-код буде дійсний ще 02:00
Як верифікуватись через Bankid?
Верифікація BankID відкриється у новому вікні. Якщо сторінка верифікації не відкрилася, вікно було заблоковане вашим браузером.
Щоб дозволити відкриття вікна, виконайте такі кроки:

1. Перевірте адресний рядок браузера на повідомлення про помилку або піктограму блокування. Натисніть на нього.
2. Якщо у вас встановлено блокувальник спливаючих вікон, тимчасово відключіть його для цього сайту.
3. Перевірте налаштування вашого браузера і переконайтеся, що блокування спливаючих вікон вимкнено або налаштовано на дозвіл відкриття цього вікна.

Якщо проблема залишається невирішеною, зверніться до нашої служби підтримки.
Як верифікуватись через Дію?
Верифікація Дія відкриється у новому вікні. Якщо сторінка верифікації не відкрилася, вікно було заблоковане вашим браузером.
Щоб дозволити відкриття вікна, виконайте такі кроки:

1. Перевірте адресний рядок браузера на повідомлення про помилку або піктограму блокування. Натисніть на нього.
2. Якщо у вас встановлено блокувальник спливаючих вікон, тимчасово відключіть його для цього сайту.
3. Перевірте налаштування вашого браузера і переконайтеся, що блокування спливаючих вікон вимкнено або налаштовано на дозвіл відкриття цього вікна.

Якщо проблема залишається невирішеною, зверніться до нашої служби підтримки.
Вітаємо!
Рекомендацію зараховано!
Незабаром рекомендація зʼявиться на сторінці рієлтора.
Рекомендацію не зараховано.
Ви вже залишали рекомендацію даному рієлтору.
В пропозиції є незбережені дані.