246 000 $
2 939  $/м²
торгівельне приміщення
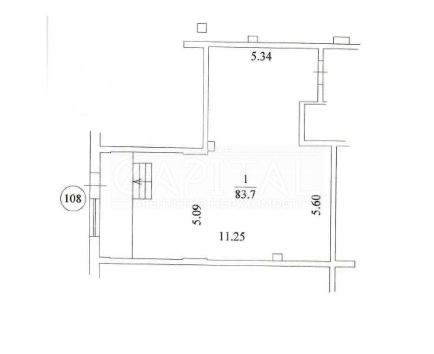
83.7 м²
3 дні тому
7 міс. тому
3 (сьогодні 0, вчора 0)
Опис
Продається комерційне приміщення в Liberty Residence

Основні характеристики приміщення:

Загальна площа: 83.7 м².
Розташування: 1-й поверх 5-поверхової фасадної будівлі.
Тип приміщення: офісне приміщення №108 (підходить для різних видів бізнесу).

Переваги приміщення:
- Фасадне розташування, яке забезпечує чудову видимість і постійний потік клієнтів.
- Великі панорамні вікна, що роблять приміщення світлим і комфортним.
- Підходить для різних видів бізнесу: стоматологічної клініки, салону краси, пекарні, кав’ярні, офісу, шоуруму, медичного центру та інших проєктів.
- Просторе планування, яке дозволяє організувати зону ресепшн, робочі місця, кабінети та зони для клієнтів.

Про комплекс Liberty Residence:
- Знаходиться у престижній та зручній локації.
- Забезпечений охороною та відеоспостереженням, що гарантує безпеку.
- Сучасний житловий комплекс, який поєднує комфортне проживання та комерційну інфраструктуру.
- Наявність паркувальних місць для клієнтів та співробітників.

Додаткова інформація:
- Розвинена інфраструктура навколо комплексу: ресторани, магазини, банки, зручна транспортна розв’язка.
- Можливість зробити ремонт і перепланування під конкретні потреби бізнесу.
- Комплекс виконаний у сучасному архітектурному стилі, що підкреслює його престижність.
- Ідеальний вибір для тих, хто шукає готове комерційне приміщення в активно розвиваючому районі.

Звертайтеся до нас для отримання додаткової інформації або організації перегляду!

# A 2 1 9 7 7
Деталі
Об'єкт комерційної нерухомості, Приміщення в житловому будинку, Готова будівля, Торгівельне приміщення. Об'єкт на 1 поверсі, У будівлі 5 поверхів. Під'їзд до будівлі - асфальт. Є електрика. Є холодна вода, є гаряча вода. Є опалення. Є санвузол. Є під охороною автопарковка. Охорона. Поруч є зупинки, супермаркет, кафе, банкомат, відділення банку. Комісія за послуги 4 %
THE Capital
Верифікований профіль
6
Років досвіду
1
Рік на сайті
Активних оголошень 903
Ексклюзивних об'єктів 0
Рекламна активність 0
Останній візит на сайт 2 дні тому
Рекомендувати
Адреса
Вашу скаргу прийнято!
Оберіть спосіб підтвердження
Щоб вашу рекомендацію було зараховано, підтвердіть свою особистість
* Особисті дані не відображатимуться на сайті та слугуватимуть лише для підтвердження особистості.
Як верифікуватись через Дію?
Зчитайте QR-код сканером у застосунку Дія й підтвердьте авторизацію Дія.Підписом
QR-код буде дійсний ще 02:00
Як верифікуватись через Bankid?
Верифікація BankID відкриється у новому вікні. Якщо сторінка верифікації не відкрилася, вікно було заблоковане вашим браузером.
Щоб дозволити відкриття вікна, виконайте такі кроки:

1. Перевірте адресний рядок браузера на повідомлення про помилку або піктограму блокування. Натисніть на нього.
2. Якщо у вас встановлено блокувальник спливаючих вікон, тимчасово відключіть його для цього сайту.
3. Перевірте налаштування вашого браузера і переконайтеся, що блокування спливаючих вікон вимкнено або налаштовано на дозвіл відкриття цього вікна.

Якщо проблема залишається невирішеною, зверніться до нашої служби підтримки.
Як верифікуватись через Дію?
Верифікація Дія відкриється у новому вікні. Якщо сторінка верифікації не відкрилася, вікно було заблоковане вашим браузером.
Щоб дозволити відкриття вікна, виконайте такі кроки:

1. Перевірте адресний рядок браузера на повідомлення про помилку або піктограму блокування. Натисніть на нього.
2. Якщо у вас встановлено блокувальник спливаючих вікон, тимчасово відключіть його для цього сайту.
3. Перевірте налаштування вашого браузера і переконайтеся, що блокування спливаючих вікон вимкнено або налаштовано на дозвіл відкриття цього вікна.

Якщо проблема залишається невирішеною, зверніться до нашої служби підтримки.
Вітаємо!
Рекомендацію зараховано!
Незабаром рекомендація зʼявиться на сторінці рієлтора.
Рекомендацію не зараховано.
Ви вже залишали рекомендацію даному рієлтору.
В пропозиції є незбережені дані.