4 250 000 $
3 001
$/м²
Комісія 3%
Площа Українських Героїв
Нова забудова
Парк ім. Шевченка
Бессарабка
Бессарабський ринок
Ботанічний сад ім. акад. О. В. Фоміна
приміщення вільного призначення, офісне приміщення, банківське приміщення
1416 м²
2 міс. тому
6 міс. тому
12 (сьогодні 0,
вчора 0)
Опис
Продаж офісної будівлі в центрі Києва, вул. Євгена Чикаленка 34, Шевченківський район.
Рік будівництва – до 1917 року
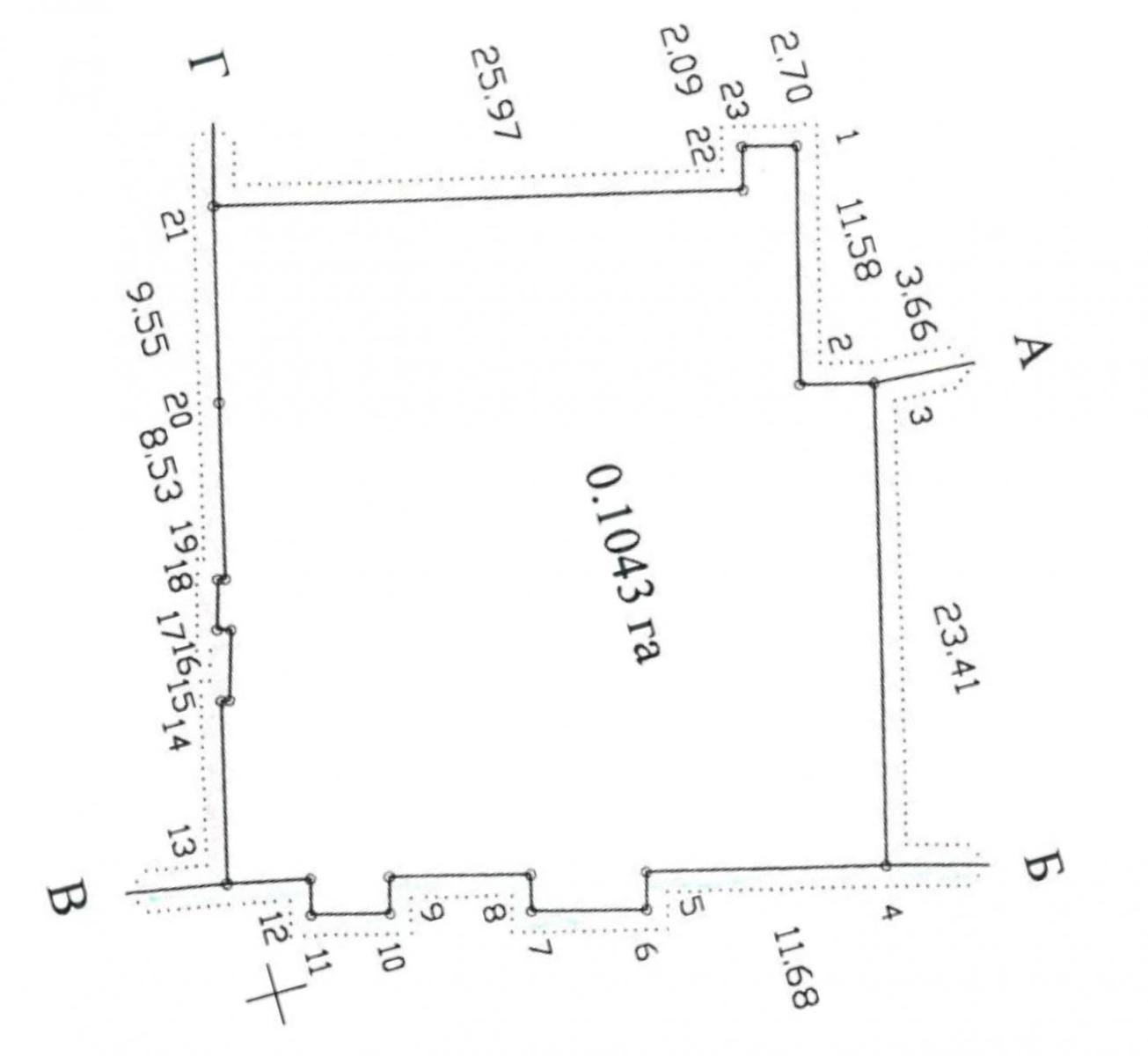
Земельна ділянка – 10,43 соток в оренді до 2050 року
Загальна площа будівлі – 1 416,3 м2
Кількість поверхів – 3 + цокольний
Енергозабезпечення – станом на зараз 40 кВт, 3-я категорія
Центральне опалення, водопостачання, каналізація.
Міжповерхові перекриття – дерев’яні, підсилені металевими балками.
A19670
Рік будівництва – до 1917 року
Земельна ділянка – 10,43 соток в оренді до 2050 року
Загальна площа будівлі – 1 416,3 м2
Кількість поверхів – 3 + цокольний
Енергозабезпечення – станом на зараз 40 кВт, 3-я категорія
Центральне опалення, водопостачання, каналізація.
Міжповерхові перекриття – дерев’яні, підсилені металевими балками.
A19670
Деталі
Об'єкт комерційної нерухомості, Окремо стояча будівля, Готова будівля, Банківське приміщення, Офісне приміщення, Приміщення вільного призначення. Об'єкт на 3 поверсі, У будівлі 3 поверхи. У приміщенні 6 кімнат або більше. Комісія за послуги 3 %




























