4 600 000 $
1 704  $/м²
приміщення вільного призначення
2700 м²
1 тиж. тому
6 міс. тому
21 (сьогодні 0, вчора 1)
Опис
БЕЗ КОМІСІЇ
RR3207

Продаж готового орендного бізнесу — офісно-торговельна будівля 2700 м², 5 поверхів, тераса з видом на Київ

Пропонується до продажу прибутковий орендний бізнес — сучасна окремо розташована офісно-торговельна будівля в перспективному діловому районі Києва. Об’єкт повністю функціонує, заповнений орендарями та приносить стабільний дохід.

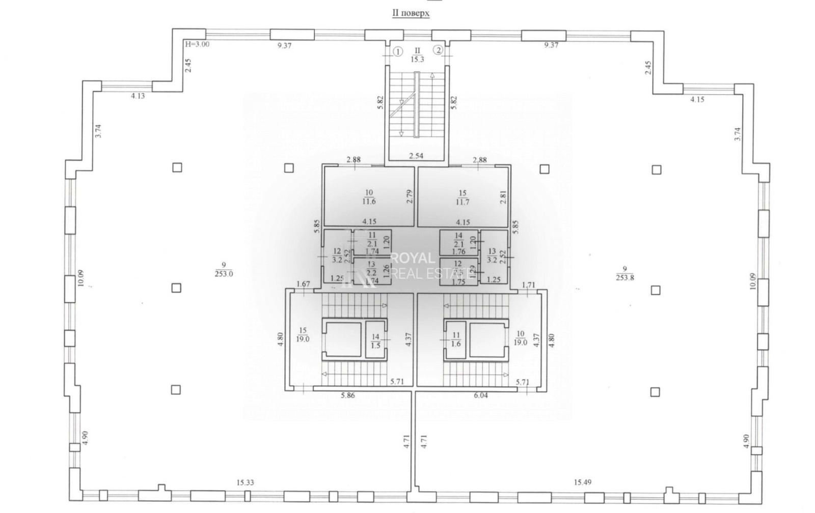
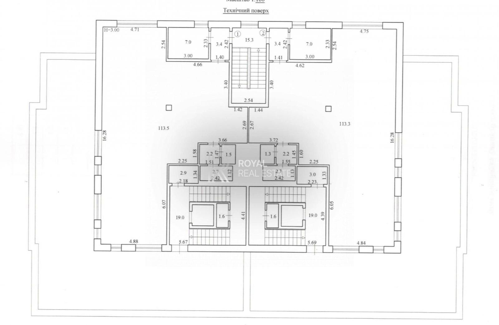
Характеристики будівлі

Загальна площа: 2700 м²

Поверховість: 5 поверхів + тераса на 5-му поверсі з панорамним видом на місто

Планування: open-space, можливість адаптації під офіси, шоуруми, торгові площі

Стан приміщень:

Повний ремонт та якісне оздоблення

Виконані всі зони загального користування, санвузли на кожному поверсі

Високі стелі: 3,3 м на першому поверсі, 3 м на інших

Підведені всі комунікації, офіси повністю готові до експлуатації

Інженерні системи та оснащення

2 незалежні газові котельні (4 котли)

2 ліфти OTIS

Система припливно-витяжної вентиляції та кондиціонування

Пожежна та охоронна сигналізації, відеоспостереження

Централізоване водопостачання

Підведено 90 кВт електрики з можливістю збільшення до 700 кВт (поруч підстанція)

Локація та транспорт

Відмінна транспортна доступність, 15 хвилин пішки до метро «Деміївська»

Поблизу бізнес-центри, магазини, кафе, банки, основні транспортні артерії

Переваги об’єкта

Готовий орендний бізнес з чинними орендарями

Висока ліквідність та стабільний дохід

Повністю введений в експлуатацію, не потребує додаткових вкладень

Панорамна тераса, сучасні комунікації, престижна локація
Деталі
Об'єкт комерційної нерухомості, Клас C, Окремо стояча будівля, Готова будівля, Приміщення вільного призначення. Об'єкт на 1, 2, 3, 4 поверхах, У будівлі 4 поверхи. У приміщенні 6 кімнат або більше. Безбар'єрність: пандус. Без комісії
Royal Real Estate
Верифікований профіль
Silver partner
2
Роки досвіду
29
Верифікованих рекомендацій
2
Роки на сайті
Активних оголошень 275
Ексклюзивних об'єктів 0
Рекламна активність 920
Останній візит на сайт вчора
Рекомендувати
Історія зміни ціни
22.03.2026 + 100 000 $ 4 600 000 $
08.11.2025 4 500 000 $
Адреса
Вашу скаргу прийнято!
Оберіть спосіб підтвердження
Щоб вашу рекомендацію було зараховано, підтвердіть свою особистість
* Особисті дані не відображатимуться на сайті та слугуватимуть лише для підтвердження особистості.
Як верифікуватись через Дію?
Зчитайте QR-код сканером у застосунку Дія й підтвердьте авторизацію Дія.Підписом
QR-код буде дійсний ще 02:00
Як верифікуватись через Bankid?
Верифікація BankID відкриється у новому вікні. Якщо сторінка верифікації не відкрилася, вікно було заблоковане вашим браузером.
Щоб дозволити відкриття вікна, виконайте такі кроки:

1. Перевірте адресний рядок браузера на повідомлення про помилку або піктограму блокування. Натисніть на нього.
2. Якщо у вас встановлено блокувальник спливаючих вікон, тимчасово відключіть його для цього сайту.
3. Перевірте налаштування вашого браузера і переконайтеся, що блокування спливаючих вікон вимкнено або налаштовано на дозвіл відкриття цього вікна.

Якщо проблема залишається невирішеною, зверніться до нашої служби підтримки.
Як верифікуватись через Дію?
Верифікація Дія відкриється у новому вікні. Якщо сторінка верифікації не відкрилася, вікно було заблоковане вашим браузером.
Щоб дозволити відкриття вікна, виконайте такі кроки:

1. Перевірте адресний рядок браузера на повідомлення про помилку або піктограму блокування. Натисніть на нього.
2. Якщо у вас встановлено блокувальник спливаючих вікон, тимчасово відключіть його для цього сайту.
3. Перевірте налаштування вашого браузера і переконайтеся, що блокування спливаючих вікон вимкнено або налаштовано на дозвіл відкриття цього вікна.

Якщо проблема залишається невирішеною, зверніться до нашої служби підтримки.
Вітаємо!
Рекомендацію зараховано!
Незабаром рекомендація зʼявиться на сторінці рієлтора.
Рекомендацію не зараховано.
Ви вже залишали рекомендацію даному рієлтору.
В пропозиції є незбережені дані.