180 000 $
2 609  $/м²
торгівельне приміщення, приміщення вільного призначення, виробниче приміщення, склад, приміщення для надання послуг, офісне приміщення, банківське приміщення
69 м²
1 міс. тому
5 міс. тому
30 (сьогодні 0, вчора 0)
Опис
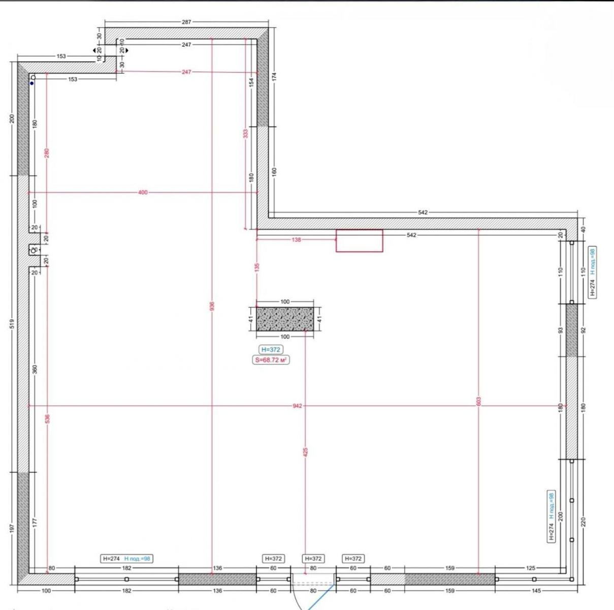
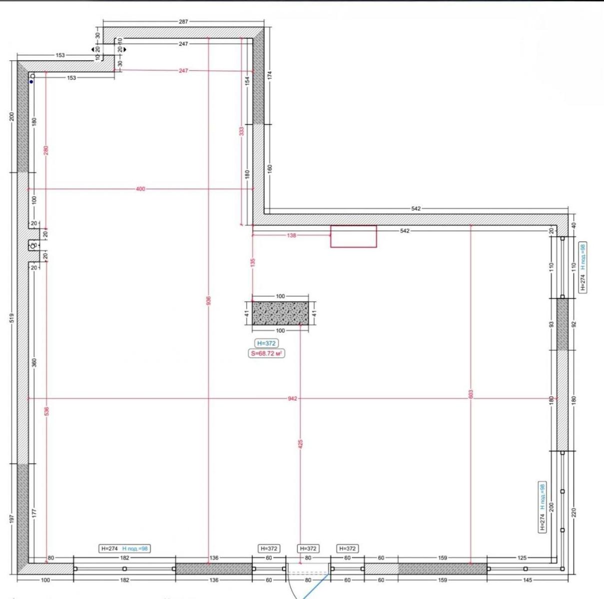
Фасадне комерційне приміщення у ЖК Теремки, вул. Академіка Заболотного, 15
Площа — 68.72 м²

Пропонується унікальне фасадне приміщення в одному з наймасштабніших і найперспективніших комплексів столиці — ЖК Теремки
Комплекс вводиться в експлуатацію вже у листопаді-грудні 2025 року, а локація активно розвивається та формує новий торгово-пішохідний трафік

Перевага саме цього приміщення — вільний загальний доступ, без огорожі та закритої території, що значно підсилює потік людей і робить об’єкт привабливим для будь-якого комерційного формату.

Локація
Приміщення розташоване у першій лінії з чудовою видимістю з головної дороги. Поруч знаходиться в’їзд у підземний паркінг, дитячий садок, клініка, продуктовий магазин, облаштований дитячий майданчик, а також зручний вихід до лісопаркової зони. За декілька хвилин — дорога до ВДНГ та кінного клубу.

Переваги приміщення
• Фасадний вхід з великими вітринами
• Статичний та приростаючий пішохідний трафік
• Висока концентрація сімейних мешканців та молодих спеціалістів
• Ідеально для мережевих орендарів та бізнесів, які шукають перспективну точку росту
• Оптимальна площа для кав’ярні, медичного кабінету, салону краси, магазину, шоуруму, приватної студії, освітнього проєкту чи офісу

Інфраструктура комплексу
ЖК Теремки — це сучасний закритий квартал із власною внутрішньою інфраструктурою. У комплексі передбачено комерційні поверхи, зони відпочинку, школи та садочки, спортивні майданчики і великий підземний паркінг. Район активно забудовується та розвивається, тому попит на комерційні площі в ньому стабільно зростає.

Це приміщення — інвестиційно вигідний актив, який зростатиме в ціні разом із розвитком комплексу та району. Формат “фасад + загальний доступ + правильна площа” зустрічається рідко й завжди має високий попит серед орендарів.
#A24042
Деталі
Об'єкт комерційної нерухомості, Клас A, Приміщення в житловому будинку, Готова будівля, Банківське приміщення, Офісне приміщення, Приміщення для надання послуг, Склад, Виробниче приміщення, Приміщення вільного призначення, Торгівельне приміщення. Об'єкт на 1 поверсі, У будівлі 1 поверх. Приміщення вільного планування. Комісія за послуги 5 %
Верифікований профіль
2
Роки досвіду
11
Місяців на сайті
Активних оголошень 55
Ексклюзивних об'єктів 0
Рекламна активність 0
Останній візит на сайт 5 днів тому
Рекомендувати
Адреса
Вашу скаргу прийнято!
Оберіть спосіб підтвердження
Щоб вашу рекомендацію було зараховано, підтвердіть свою особистість
* Особисті дані не відображатимуться на сайті та слугуватимуть лише для підтвердження особистості.
Як верифікуватись через Дію?
Зчитайте QR-код сканером у застосунку Дія й підтвердьте авторизацію Дія.Підписом
QR-код буде дійсний ще 02:00
Як верифікуватись через Bankid?
Верифікація BankID відкриється у новому вікні. Якщо сторінка верифікації не відкрилася, вікно було заблоковане вашим браузером.
Щоб дозволити відкриття вікна, виконайте такі кроки:

1. Перевірте адресний рядок браузера на повідомлення про помилку або піктограму блокування. Натисніть на нього.
2. Якщо у вас встановлено блокувальник спливаючих вікон, тимчасово відключіть його для цього сайту.
3. Перевірте налаштування вашого браузера і переконайтеся, що блокування спливаючих вікон вимкнено або налаштовано на дозвіл відкриття цього вікна.

Якщо проблема залишається невирішеною, зверніться до нашої служби підтримки.
Як верифікуватись через Дію?
Верифікація Дія відкриється у новому вікні. Якщо сторінка верифікації не відкрилася, вікно було заблоковане вашим браузером.
Щоб дозволити відкриття вікна, виконайте такі кроки:

1. Перевірте адресний рядок браузера на повідомлення про помилку або піктограму блокування. Натисніть на нього.
2. Якщо у вас встановлено блокувальник спливаючих вікон, тимчасово відключіть його для цього сайту.
3. Перевірте налаштування вашого браузера і переконайтеся, що блокування спливаючих вікон вимкнено або налаштовано на дозвіл відкриття цього вікна.

Якщо проблема залишається невирішеною, зверніться до нашої служби підтримки.
Вітаємо!
Рекомендацію зараховано!
Незабаром рекомендація зʼявиться на сторінці рієлтора.
Рекомендацію не зараховано.
Ви вже залишали рекомендацію даному рієлтору.
В пропозиції є незбережені дані.