580 000 $
1 933
$/м²
Севастопольська вул., 1/14
торгівельне приміщення
300 м²
1960 рік побудови
2 дні тому
5 міс. тому
16 (сьогодні 0,
вчора 0)
Опис
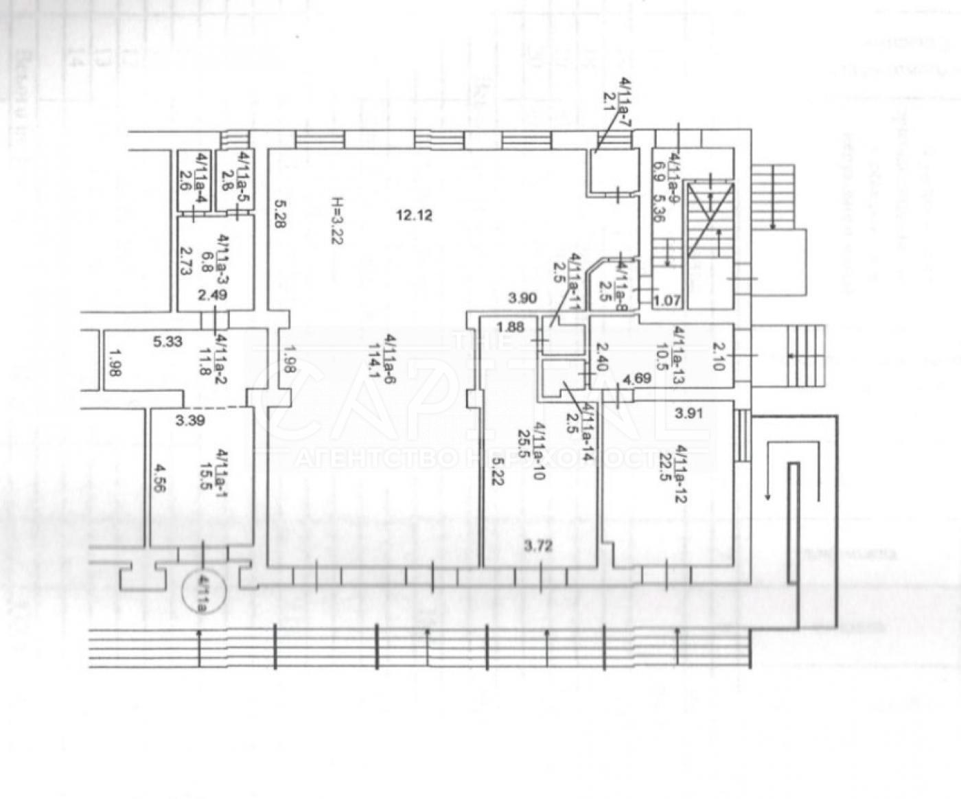
Продаж фасадного приміщення, 1-й поверх, 300 м²
Пропонується до продажу комерційне приміщення загальною площею 300 м² на першому поверсі фасадної будівлі.
Локація з активним пішохідним і автомобільним трафіком — ідеально підходить для інвестиції.
Основні характеристики:
• Площа: 300 м²
• Фасадний вхід і великі вітрини
• Перший поверх — зручний доступ для клієнтів
• Чотири надійні орендарі, стабільний орендний дохід
• Сучасний ремонт і всі необхідні комунікації
Приміщення ідеально підходить для інвестора, який шукає готовий дохідний актив із перевіреними орендарями.
Пропонується до продажу комерційне приміщення загальною площею 300 м² на першому поверсі фасадної будівлі.
Локація з активним пішохідним і автомобільним трафіком — ідеально підходить для інвестиції.
Основні характеристики:
• Площа: 300 м²
• Фасадний вхід і великі вітрини
• Перший поверх — зручний доступ для клієнтів
• Чотири надійні орендарі, стабільний орендний дохід
• Сучасний ремонт і всі необхідні комунікації
Приміщення ідеально підходить для інвестора, який шукає готовий дохідний актив із перевіреними орендарями.
Деталі
Об'єкт комерційної нерухомості, Приміщення в житловому будинку, Прибудова, Торгівельне приміщення. Об'єкт на 1 поверсі, У будівлі 5 поверхів. Будинок побудований в 1960 році. Комісія за послуги 3 %














