870 000 $
3 222  $/м²
офісне приміщення
270 м²
2012 рік побудови
1 міс. тому
3 міс. тому
6 (сьогодні 0, вчора 0)
Опис
Продаж інвестиційного офісу з орендарем | Кловський узвіз, 7

Центр Києва. Престижна адреса. Готовий орендний бізнес.

Пропонується до продажу сучасний офіс площею 269 м² у знаковій центральній локації — Кловський узвіз. Об’єкт уже працює та приносить стабільний дохід, що робить його ідеальним варіантом для інвестора, який цінує надійність і ліквідність.

Панорамний вид на Київ, презентабельна вхідна група та продумане планування формують статусний простір для міжнародної або української компанії.

Фінансові показники:
Ціна продажу: 870 000 $
Орендний дохід: 6 500 $ на місяць
Річний дохід: 78 000 $
ROI: 8,97% річних
Окупність: 11,15 року

Переваги об’єкта:
— чинний орендар, без простоїв
— стабільний валютний дохід
— одна з найбільш ліквідних офісних локацій Києва
— панорамні вікна та велика кількість природного світла
— автономність: встановлений генератор

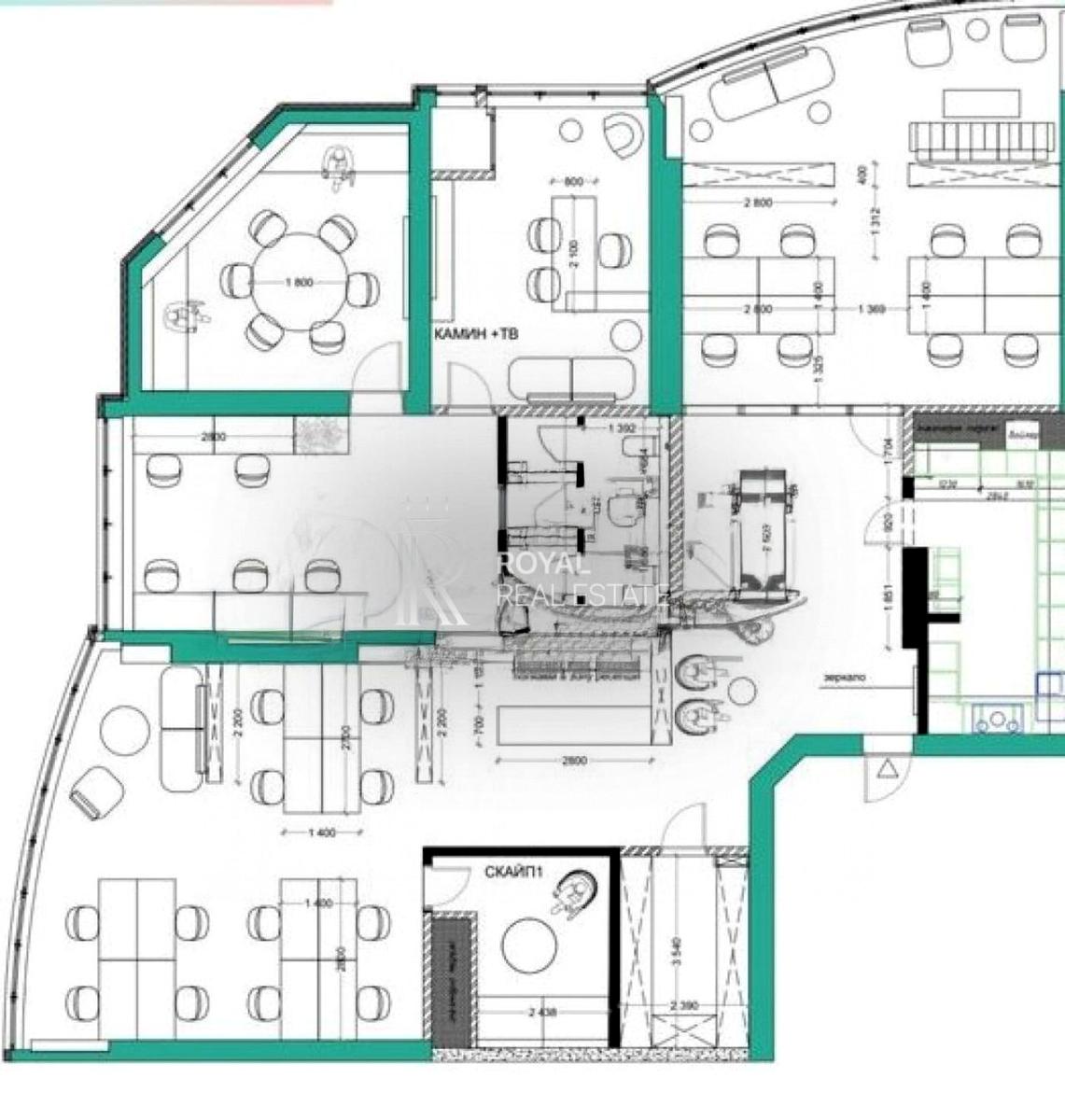
Планування та наповнення:
37 повноцінних робочих місць
Рецепція та представницька вхідна зона
Кабінет керівника
Переговорна кімната
Skype room
Велика кухня зі столовою зоною
2 санвузли
Гардеробна кімната

Об’єкти такого формату в центрі міста з чинним орендарем з’являються на ринку рідко.
Раціональна інвестиція з прогнозованим доходом та збереженням капіталу.

RR15726
Деталі
Об'єкт комерційної нерухомості, Клас B, Приміщення в офісному центрі, Готова будівля, Офісне приміщення. Об'єкт на 35 поверсі, У будівлі 36 поверхів. Будинок побудований в 2012 році. У приміщенні 4 кімнати. Безбар'єрність: пандус. Без комісії
Royal Real Estate
Верифікований профіль
3
Роки досвіду
4
Місяці на сайті
Активних оголошень 47
Ексклюзивних об'єктів 0
Рекламна активність 3295
Останній візит на сайт сьогодні
Рекомендувати
Адреса
Вашу скаргу прийнято!
Оберіть спосіб підтвердження
Щоб вашу рекомендацію було зараховано, підтвердіть свою особистість
* Особисті дані не відображатимуться на сайті та слугуватимуть лише для підтвердження особистості.
Як верифікуватись через Дію?
Зчитайте QR-код сканером у застосунку Дія й підтвердьте авторизацію Дія.Підписом
QR-код буде дійсний ще 02:00
Як верифікуватись через Bankid?
Верифікація BankID відкриється у новому вікні. Якщо сторінка верифікації не відкрилася, вікно було заблоковане вашим браузером.
Щоб дозволити відкриття вікна, виконайте такі кроки:

1. Перевірте адресний рядок браузера на повідомлення про помилку або піктограму блокування. Натисніть на нього.
2. Якщо у вас встановлено блокувальник спливаючих вікон, тимчасово відключіть його для цього сайту.
3. Перевірте налаштування вашого браузера і переконайтеся, що блокування спливаючих вікон вимкнено або налаштовано на дозвіл відкриття цього вікна.

Якщо проблема залишається невирішеною, зверніться до нашої служби підтримки.
Як верифікуватись через Дію?
Верифікація Дія відкриється у новому вікні. Якщо сторінка верифікації не відкрилася, вікно було заблоковане вашим браузером.
Щоб дозволити відкриття вікна, виконайте такі кроки:

1. Перевірте адресний рядок браузера на повідомлення про помилку або піктограму блокування. Натисніть на нього.
2. Якщо у вас встановлено блокувальник спливаючих вікон, тимчасово відключіть його для цього сайту.
3. Перевірте налаштування вашого браузера і переконайтеся, що блокування спливаючих вікон вимкнено або налаштовано на дозвіл відкриття цього вікна.

Якщо проблема залишається невирішеною, зверніться до нашої служби підтримки.
Вітаємо!
Рекомендацію зараховано!
Незабаром рекомендація зʼявиться на сторінці рієлтора.
Рекомендацію не зараховано.
Ви вже залишали рекомендацію даному рієлтору.
В пропозиції є незбережені дані.