120 000 $
1 437  $/м²
торгівельне приміщення, приміщення вільного призначення, виробниче приміщення, склад, приміщення для надання послуг
83.5 м²
1960 рік побудови
сьогодні
2 міс. тому
19 (сьогодні 0, вчора 0)
Опис
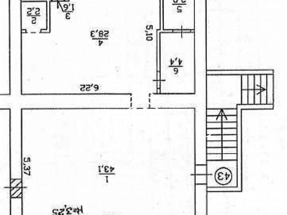
Продаж підвального приміщення з окремим входом, вул. Єреванська, 16, Солом’янський район

Пропонується до продажу комерційне приміщення з окремим фасадним входом у підвальному поверсі будівлі.
Наразі використовується як магазин дитячого одягу та магазин товарів для шиття та рукоділля, приміщення обладнане всіма необхідними комунікаціями.

Характеристики:

Площа: 83.5

Розташування: підвал

Вхід: окремий, з боку вулиці

Є санвузол та мокра точка

Стан — готове для ведення бізнесу

Переваги:

Універсальне призначення — магазин, шоурум, салон краси, стоматологія, офіс чи інший вид діяльності

Активний житловий масив із високим пішохідним трафіком

Можливий торг

Ціна: 120 000 $

Комісія АН - 5%

Адреса: м. Київ, Солом’янський район, вул. Єреванська, 16
Деталі
Об'єкт комерційної нерухомості, Приміщення в житловому будинку, Готова будівля, Приміщення для надання послуг, Склад, Виробниче приміщення, Приміщення вільного призначення, Торгівельне приміщення. Цокольне приміщення, У будівлі 5 поверхів. Будинок побудований в 1960 році. Поруч є зупинки, супермаркет, їдальня, кафе, ресторан, банкомат, відділення банку. У приміщенні 3 кімнати. Комісія за послуги 5 %
IMPERIAL
Верифікований профіль
1
Рік досвіду
2
Верифіковані рекомендації
9
Місяців на сайті
Активних оголошень 35
Ексклюзивних об'єктів 0
Рекламна активність 12
Останній візит на сайт сьогодні
Рекомендувати
Адреса
Вашу скаргу прийнято!
Оберіть спосіб підтвердження
Щоб вашу рекомендацію було зараховано, підтвердіть свою особистість
* Особисті дані не відображатимуться на сайті та слугуватимуть лише для підтвердження особистості.
Як верифікуватись через Дію?
Зчитайте QR-код сканером у застосунку Дія й підтвердьте авторизацію Дія.Підписом
QR-код буде дійсний ще 02:00
Як верифікуватись через Bankid?
Верифікація BankID відкриється у новому вікні. Якщо сторінка верифікації не відкрилася, вікно було заблоковане вашим браузером.
Щоб дозволити відкриття вікна, виконайте такі кроки:

1. Перевірте адресний рядок браузера на повідомлення про помилку або піктограму блокування. Натисніть на нього.
2. Якщо у вас встановлено блокувальник спливаючих вікон, тимчасово відключіть його для цього сайту.
3. Перевірте налаштування вашого браузера і переконайтеся, що блокування спливаючих вікон вимкнено або налаштовано на дозвіл відкриття цього вікна.

Якщо проблема залишається невирішеною, зверніться до нашої служби підтримки.
Як верифікуватись через Дію?
Верифікація Дія відкриється у новому вікні. Якщо сторінка верифікації не відкрилася, вікно було заблоковане вашим браузером.
Щоб дозволити відкриття вікна, виконайте такі кроки:

1. Перевірте адресний рядок браузера на повідомлення про помилку або піктограму блокування. Натисніть на нього.
2. Якщо у вас встановлено блокувальник спливаючих вікон, тимчасово відключіть його для цього сайту.
3. Перевірте налаштування вашого браузера і переконайтеся, що блокування спливаючих вікон вимкнено або налаштовано на дозвіл відкриття цього вікна.

Якщо проблема залишається невирішеною, зверніться до нашої служби підтримки.
Вітаємо!
Рекомендацію зараховано!
Незабаром рекомендація зʼявиться на сторінці рієлтора.
Рекомендацію не зараховано.
Ви вже залишали рекомендацію даному рієлтору.
В пропозиції є незбережені дані.