1 150 000 $
3 605  $/м²
приміщення вільного призначення
319 м²
1900 рік побудови
вчора
2 міс. тому
19 (сьогодні 0, вчора 1)
Опис
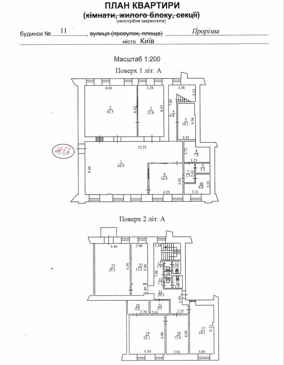
БЕЗ КОМІСІЇ продаж унікальної квартири, утвореної шляхом об’єднання трьох квартир (9 кімнат), розташованих на 1 та 2 поверхах історичної будівлі у центрі Києва — на вулиці Прорізна, 11 Шевченківського району.

Загальна площа: 318,9 кв.м.
Висота стелі: 2,91 м.
Поверхи: 1-2 із 4.
Житловий фонд.
Стан: під ремонт.

Планування:
1 поверх:
три великі кімнати (64,9 м², 42,5 м², 16,8 м²) із вітринними вікнами на фасад, кілька підсобних кімнат, санвузол і технічна зона.

2 поверх:
шість кімнат (29,3 м², 22,1 м², 19,1 м², 16,1 м², 13,8 м², 13,3 м²),
два санвузли, коридор, сходи між поверхами.

Переваги:
Престижне розташування у самому серці міста — поруч Хрещатик, Майдан Незалежності, Золоті ворота.

Зручний доступ з першого поверху для відвідувачів.
Великі панорамні вікна з чудовою видимістю з вулиці.
Можливість гнучкого зонування простору або використання як єдиного open space.
Деталі
Об'єкт комерційної нерухомості, Приміщення в житловому будинку, Готова будівля, Приміщення вільного призначення. Об'єкт на 1, 2 поверхах, У будівлі 4 поверхи. Будинок побудований в 1900 році. Без комісії
Верифікований профіль
PRO аккаунт
Професійний акаунт
Platinum partner
Сертифікат
СФНУ
10
Років досвіду
4
Верифіковані рекомендації
1
Рік на сайті
Активних оголошень 29
Ексклюзивних об'єктів 0
Рекламна активність 76008
Останній візит на сайт сьогодні
Рекомендувати
Адреса
Вашу скаргу прийнято!
Оберіть спосіб підтвердження
Щоб вашу рекомендацію було зараховано, підтвердіть свою особистість
* Особисті дані не відображатимуться на сайті та слугуватимуть лише для підтвердження особистості.
Як верифікуватись через Дію?
Зчитайте QR-код сканером у застосунку Дія й підтвердьте авторизацію Дія.Підписом
QR-код буде дійсний ще 02:00
Як верифікуватись через Bankid?
Верифікація BankID відкриється у новому вікні. Якщо сторінка верифікації не відкрилася, вікно було заблоковане вашим браузером.
Щоб дозволити відкриття вікна, виконайте такі кроки:

1. Перевірте адресний рядок браузера на повідомлення про помилку або піктограму блокування. Натисніть на нього.
2. Якщо у вас встановлено блокувальник спливаючих вікон, тимчасово відключіть його для цього сайту.
3. Перевірте налаштування вашого браузера і переконайтеся, що блокування спливаючих вікон вимкнено або налаштовано на дозвіл відкриття цього вікна.

Якщо проблема залишається невирішеною, зверніться до нашої служби підтримки.
Як верифікуватись через Дію?
Верифікація Дія відкриється у новому вікні. Якщо сторінка верифікації не відкрилася, вікно було заблоковане вашим браузером.
Щоб дозволити відкриття вікна, виконайте такі кроки:

1. Перевірте адресний рядок браузера на повідомлення про помилку або піктограму блокування. Натисніть на нього.
2. Якщо у вас встановлено блокувальник спливаючих вікон, тимчасово відключіть його для цього сайту.
3. Перевірте налаштування вашого браузера і переконайтеся, що блокування спливаючих вікон вимкнено або налаштовано на дозвіл відкриття цього вікна.

Якщо проблема залишається невирішеною, зверніться до нашої служби підтримки.
Вітаємо!
Рекомендацію зараховано!
Незабаром рекомендація зʼявиться на сторінці рієлтора.
Рекомендацію не зараховано.
Ви вже залишали рекомендацію даному рієлтору.
В пропозиції є незбережені дані.