690 000 $
958  $/м²
торгівельне приміщення, приміщення вільного призначення, виробниче приміщення, склад, приміщення для надання послуг, офісне приміщення, банківське приміщення
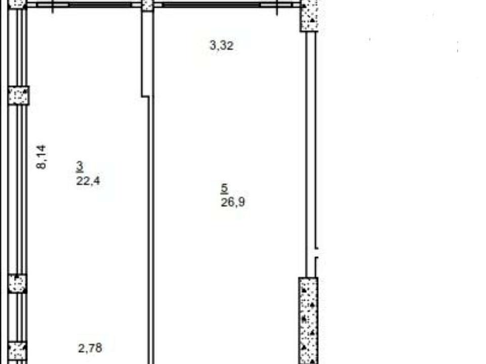
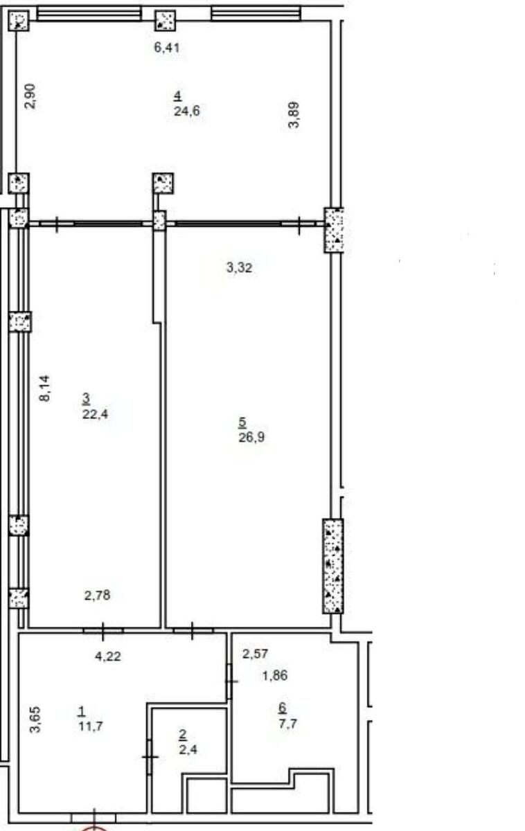
720 м²
2021 рік побудови
вчора
1 міс. тому
40 (сьогодні 0, вчора 0)
Опис
Продаж комерційного приміщення 720 м² у ЖК Henesi House, Київ — готовий бізнес під ключ

Локація: вул. Нагірна 18/16, Шевченківський район (Татарка)

Ключові характеристики:

• Площа: 720 м² (1 поверх, кілька входів + 1 окремий власний вхід)
• Електрика: 16 кВт
• Статус: готовий інвестиційний проєкт під 12 апартаментів площею від 29 м² до 95 м²
• Можливість гнучкого перепланування під будь-який формат

Паркомісця:
Додатково можна придбати 5 паркомісць у підземному паркінгу — 35 000 $/кожне

Готові сценарії використання:

Опція 1: Апарт-готель під ключ

• Проєкт вже розроблений під 12 апартаментів
• Високий попит на подобову/потужну оренду (поруч — лікарні, діловий район)
• Референс: зараз у будинку смарт-квартира 19 м² здається від 17 000 до 20 000 грн/міс.

Опція 2: Універсальний комерційний простір
• Клініка / медичний центр
• Коворкінг / офісний центр
• Шоурум / навчальний центр
• Сервісний бізнес

Переваги локації:

• Заселений ЖК бізнес-класу (316 квартир) — стабільний внутрішній трафік
• Вже працюють: міні-маркет, кав'ярня, шоуруми, коворкінг
• Інфраструктура: консьєрж 24/7, відеонагляд, тераса на даху
• Сусідні ЖК: Нагірний, Нагірний Хаус, Інтергал Буд — розширена клієнтська база

Транспортна доступність:

• 10 хв — до центру Києва (авто)
• 5 хв — до метро Тараса Шевченка (авто)
• 15 хв — до метро Лук'янівська (громадський транспорт)
• 10 хв пішки — ТРЦ Promenada

Інвестиційна привабливість:

• Готовий проєкт з прорахованою доходністю
• Великий попит на короткострокову оренду в районі
• Універсальність: можна запустити бізнес або здавати в оренду
• Паркомісця для орендарів/гостей
• Продаж апартаментів під ключ + 5 паркомісць за 35 000 $ кожне

Зв'яжіться зараз — підберу найкращу пропозицію під ваш бюджет та цілі. Проведу детальний аналіз ринку та прорахую реальну окупність!
Деталі
Об'єкт комерційної нерухомості, Клас A, Приміщення в житловому будинку, Готова будівля, Банківське приміщення, Офісне приміщення, Приміщення для надання послуг, Склад, Виробниче приміщення, Приміщення вільного призначення, Торгівельне приміщення. Будинок побудований в 2021 році. Безбар'єрність: паркувальні місця для осіб з інвалідністю. Без комісії
Верифікований профіль
Silver partner
11
Років досвіду
5
Років на сайті
Активних оголошень 37
Ексклюзивних об'єктів 0
Рекламна активність 20759
Останній візит на сайт сьогодні
Рекомендувати
Історія зміни ціни
17.04.2026 - 10 000 $ 690 000 $
08.04.2026 - 50 000 $ 700 000 $
13.03.2026 - 46 000 $ 750 000 $
06.03.2026 - 4 000 $ 796 000 $
23.02.2026 800 000 $
Адреса
Вашу скаргу прийнято!
Оберіть спосіб підтвердження
Щоб вашу рекомендацію було зараховано, підтвердіть свою особистість
* Особисті дані не відображатимуться на сайті та слугуватимуть лише для підтвердження особистості.
Як верифікуватись через Дію?
Зчитайте QR-код сканером у застосунку Дія й підтвердьте авторизацію Дія.Підписом
QR-код буде дійсний ще 02:00
Як верифікуватись через Bankid?
Верифікація BankID відкриється у новому вікні. Якщо сторінка верифікації не відкрилася, вікно було заблоковане вашим браузером.
Щоб дозволити відкриття вікна, виконайте такі кроки:

1. Перевірте адресний рядок браузера на повідомлення про помилку або піктограму блокування. Натисніть на нього.
2. Якщо у вас встановлено блокувальник спливаючих вікон, тимчасово відключіть його для цього сайту.
3. Перевірте налаштування вашого браузера і переконайтеся, що блокування спливаючих вікон вимкнено або налаштовано на дозвіл відкриття цього вікна.

Якщо проблема залишається невирішеною, зверніться до нашої служби підтримки.
Як верифікуватись через Дію?
Верифікація Дія відкриється у новому вікні. Якщо сторінка верифікації не відкрилася, вікно було заблоковане вашим браузером.
Щоб дозволити відкриття вікна, виконайте такі кроки:

1. Перевірте адресний рядок браузера на повідомлення про помилку або піктограму блокування. Натисніть на нього.
2. Якщо у вас встановлено блокувальник спливаючих вікон, тимчасово відключіть його для цього сайту.
3. Перевірте налаштування вашого браузера і переконайтеся, що блокування спливаючих вікон вимкнено або налаштовано на дозвіл відкриття цього вікна.

Якщо проблема залишається невирішеною, зверніться до нашої служби підтримки.
Вітаємо!
Рекомендацію зараховано!
Незабаром рекомендація зʼявиться на сторінці рієлтора.
Рекомендацію не зараховано.
Ви вже залишали рекомендацію даному рієлтору.
В пропозиції є незбережені дані.