1 137 000 $
3 250  $/м²
офісне приміщення
349.89 м²
2013 рік побудови
вчора
2 міс. тому
8 (сьогодні 0, вчора 0)
Опис
Комерційне приміщення в житловому комплексі бізнес-класу, який розташований в Печерському районі по вулиці Звіринецька, 72.
Офіс розташований на першому поверсі з окремим презентабельним фасадним
входом.
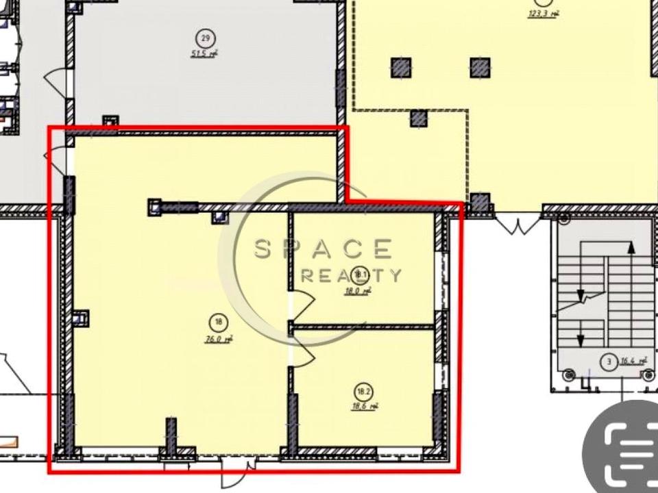
Загальна площа приміщення - 349,89 м2.
Європейський рівень якості будівництва.
ТЕХНІЧНІ ХАРАКТЕРИСТИКИ:

Загальна площа приміщення - 349,89 м2
Технологія будівництва:
монолітно-каркасна

Гри окремих вхідних групи
Стіни: керамічна цегла

Великі фасадні панорамні вікна
Утеплення: мінеральна вата та шумоізоляція

Гостьовий паркінг
Фасад: вентильований навісний

50,64 кВт в приміщенні
Алюмінієві віконні системи від

Висота стелі: 3,8 метри
бельгійського
ВДАЛЕ РОЗТАШУВАННЯ:
Зручний заїзд із основних транспортних магістралей міста
7 хв. від метро «Видубичі» та 25 хв. від метро «Звіринецька» пішим кроком
10 хв. на авто від вул. «Хрещатик»

5 3 2 2
Деталі
Об'єкт комерційної нерухомості, Приміщення в житловому будинку, Готова будівля, Офісне приміщення. Об'єкт на 1 поверсі, У будівлі 24 поверхи. Будинок побудований в 2013 році. Комісія за послуги 5 %
Space Realty
Верифікований профіль
Platinum partner
6
Років досвіду
3
Верифіковані рекомендації
3
Роки на сайті
Активних оголошень 52
Ексклюзивних об'єктів 0
Рекламна активність 0
Останній візит на сайт вчора
Рекомендувати
Адреса
Вашу скаргу прийнято!
Оберіть спосіб підтвердження
Щоб вашу рекомендацію було зараховано, підтвердіть свою особистість
* Особисті дані не відображатимуться на сайті та слугуватимуть лише для підтвердження особистості.
Як верифікуватись через Дію?
Зчитайте QR-код сканером у застосунку Дія й підтвердьте авторизацію Дія.Підписом
QR-код буде дійсний ще 02:00
Як верифікуватись через Bankid?
Верифікація BankID відкриється у новому вікні. Якщо сторінка верифікації не відкрилася, вікно було заблоковане вашим браузером.
Щоб дозволити відкриття вікна, виконайте такі кроки:

1. Перевірте адресний рядок браузера на повідомлення про помилку або піктограму блокування. Натисніть на нього.
2. Якщо у вас встановлено блокувальник спливаючих вікон, тимчасово відключіть його для цього сайту.
3. Перевірте налаштування вашого браузера і переконайтеся, що блокування спливаючих вікон вимкнено або налаштовано на дозвіл відкриття цього вікна.

Якщо проблема залишається невирішеною, зверніться до нашої служби підтримки.
Як верифікуватись через Дію?
Верифікація Дія відкриється у новому вікні. Якщо сторінка верифікації не відкрилася, вікно було заблоковане вашим браузером.
Щоб дозволити відкриття вікна, виконайте такі кроки:

1. Перевірте адресний рядок браузера на повідомлення про помилку або піктограму блокування. Натисніть на нього.
2. Якщо у вас встановлено блокувальник спливаючих вікон, тимчасово відключіть його для цього сайту.
3. Перевірте налаштування вашого браузера і переконайтеся, що блокування спливаючих вікон вимкнено або налаштовано на дозвіл відкриття цього вікна.

Якщо проблема залишається невирішеною, зверніться до нашої служби підтримки.
Вітаємо!
Рекомендацію зараховано!
Незабаром рекомендація зʼявиться на сторінці рієлтора.
Рекомендацію не зараховано.
Ви вже залишали рекомендацію даному рієлтору.
В пропозиції є незбережені дані.