67 000 $
1 523  $/м²
приміщення вільного призначення
44 м²
1939 рік побудови
1 тиж. тому
1 міс. тому
94 (сьогодні 1, вчора 0)
Опис
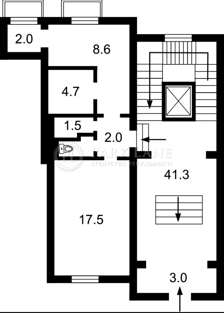
Пропонується продаж напівпідвальне приміщення площею 44м², розташоване на 1 поверсі будинку по вул. Михайла Коцюбинського 9. Сталінка! Ідеальне розміщення для офісу, шоуруму або студії.​

Метро: Університет 5хв

Не втрачайте можливість стати власником комерційне приміщення​ ! Телефонуйте – підберемо найкращий варіант для вас.
Деталі
Об'єкт комерційної нерухомості, Приміщення в житловому будинку, Готова будівля, Приміщення вільного призначення. Об'єкт на 1 поверсі, У будівлі 6 поверхів. Будинок побудований в 1939 році. Комісія за послуги 5 %
Park Lane
Верифікований профіль
1
Рік досвіду
1
Верифікована рекомендація
1
Рік на сайті
Активних оголошень 13
Ексклюзивних об'єктів 0
Рекламна активність 7644
Останній візит на сайт вчора
Рекомендувати
Адреса
Вашу скаргу прийнято!
Оберіть спосіб підтвердження
Щоб вашу рекомендацію було зараховано, підтвердіть свою особистість
* Особисті дані не відображатимуться на сайті та слугуватимуть лише для підтвердження особистості.
Як верифікуватись через Дію?
Зчитайте QR-код сканером у застосунку Дія й підтвердьте авторизацію Дія.Підписом
QR-код буде дійсний ще 02:00
Як верифікуватись через Bankid?
Верифікація BankID відкриється у новому вікні. Якщо сторінка верифікації не відкрилася, вікно було заблоковане вашим браузером.
Щоб дозволити відкриття вікна, виконайте такі кроки:

1. Перевірте адресний рядок браузера на повідомлення про помилку або піктограму блокування. Натисніть на нього.
2. Якщо у вас встановлено блокувальник спливаючих вікон, тимчасово відключіть його для цього сайту.
3. Перевірте налаштування вашого браузера і переконайтеся, що блокування спливаючих вікон вимкнено або налаштовано на дозвіл відкриття цього вікна.

Якщо проблема залишається невирішеною, зверніться до нашої служби підтримки.
Як верифікуватись через Дію?
Верифікація Дія відкриється у новому вікні. Якщо сторінка верифікації не відкрилася, вікно було заблоковане вашим браузером.
Щоб дозволити відкриття вікна, виконайте такі кроки:

1. Перевірте адресний рядок браузера на повідомлення про помилку або піктограму блокування. Натисніть на нього.
2. Якщо у вас встановлено блокувальник спливаючих вікон, тимчасово відключіть його для цього сайту.
3. Перевірте налаштування вашого браузера і переконайтеся, що блокування спливаючих вікон вимкнено або налаштовано на дозвіл відкриття цього вікна.

Якщо проблема залишається невирішеною, зверніться до нашої служби підтримки.
Вітаємо!
Рекомендацію зараховано!
Незабаром рекомендація зʼявиться на сторінці рієлтора.
Рекомендацію не зараховано.
Ви вже залишали рекомендацію даному рієлтору.
В пропозиції є незбережені дані.