1
4 500 000 $
1 667  $/м²
торгівельне приміщення, приміщення вільного призначення, приміщення для надання послуг, офісне приміщення
2700 м²
2020 рік побудови
1 тиж. тому
1 міс. тому
9 (сьогодні 1, вчора 0)
Опис
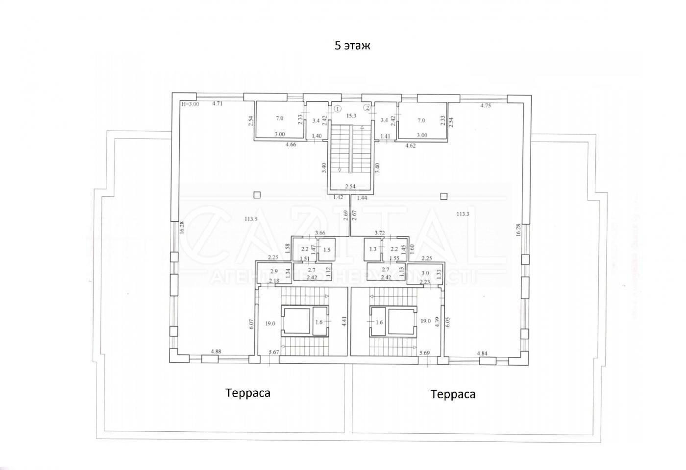
Офісно-торговельна окремо розташована будівля в 5 поверхів. Загальна площа будівлі 2700м2 + тераса на п'ятому поверху. Планування: - open - space. Стан - будивля з ремонтом і з оздобленням.
Повністю виконані зони загального користування, санвузли, підведені всі комунікації.
В офісах високі стелі (3,3 м на першому поверсі, і 3 м на інших поверхах). На 5 поверсі є тераси з чудовим видом на Київ.
Відмінна транспортна розв'язка, в пішій доступності станція метро Деміївська 15 хвилин пішки.

Будівля оснащена:
1. 2 газові котельні на дві частини будівлі та 4 газових котла.
2. 2 ліфти OTIS.
3. Система припливно-витяжної вентиляції та кондиціонування.
4. автоматична система пожежної сигналізації.
5. Відеоспостереження.
6. Охоронна сигналізація.
7. Централізоване водопостачання.
8. Заведено 90 кВт та можливість збільшення електромережі до 700 кВт - поруч підстанція.


315917343019
Деталі
Об'єкт комерційної нерухомості, Окремо стояча будівля, Готова будівля, Офісне приміщення, Приміщення для надання послуг, Приміщення вільного призначення, Торгівельне приміщення. Об'єкт на 1, 2, 3, 4, 5 поверхах, У будівлі 5 поверхів. Будинок побудований в 2020 році. У приміщенні 6 кімнат або більше. Комісія за послуги 3 %
THE Capital
Верифікований профіль
Platinum partner
3
Роки досвіду
2
Верифіковані рекомендації
3
Роки на сайті
Активних оголошень 71
Ексклюзивних об'єктів 2
Рекламна активність 29784
Останній візит на сайт вчора
Рекомендувати
Адреса
Вашу скаргу прийнято!
Оберіть спосіб підтвердження
Щоб вашу рекомендацію було зараховано, підтвердіть свою особистість
* Особисті дані не відображатимуться на сайті та слугуватимуть лише для підтвердження особистості.
Як верифікуватись через Дію?
Зчитайте QR-код сканером у застосунку Дія й підтвердьте авторизацію Дія.Підписом
QR-код буде дійсний ще 02:00
Як верифікуватись через Bankid?
Верифікація BankID відкриється у новому вікні. Якщо сторінка верифікації не відкрилася, вікно було заблоковане вашим браузером.
Щоб дозволити відкриття вікна, виконайте такі кроки:

1. Перевірте адресний рядок браузера на повідомлення про помилку або піктограму блокування. Натисніть на нього.
2. Якщо у вас встановлено блокувальник спливаючих вікон, тимчасово відключіть його для цього сайту.
3. Перевірте налаштування вашого браузера і переконайтеся, що блокування спливаючих вікон вимкнено або налаштовано на дозвіл відкриття цього вікна.

Якщо проблема залишається невирішеною, зверніться до нашої служби підтримки.
Як верифікуватись через Дію?
Верифікація Дія відкриється у новому вікні. Якщо сторінка верифікації не відкрилася, вікно було заблоковане вашим браузером.
Щоб дозволити відкриття вікна, виконайте такі кроки:

1. Перевірте адресний рядок браузера на повідомлення про помилку або піктограму блокування. Натисніть на нього.
2. Якщо у вас встановлено блокувальник спливаючих вікон, тимчасово відключіть його для цього сайту.
3. Перевірте налаштування вашого браузера і переконайтеся, що блокування спливаючих вікон вимкнено або налаштовано на дозвіл відкриття цього вікна.

Якщо проблема залишається невирішеною, зверніться до нашої служби підтримки.
Вітаємо!
Рекомендацію зараховано!
Незабаром рекомендація зʼявиться на сторінці рієлтора.
Рекомендацію не зараховано.
Ви вже залишали рекомендацію даному рієлтору.
В пропозиції є незбережені дані.