600 000 $
4 380  $/м²
офісне приміщення
137 м²
1899 рік побудови
1 міс. тому
1 міс. тому
2 (сьогодні 0, вчора 0)
Опис
Продаж стильного офісу в центрі Києва, вул. Чикаленка — повністю новий!

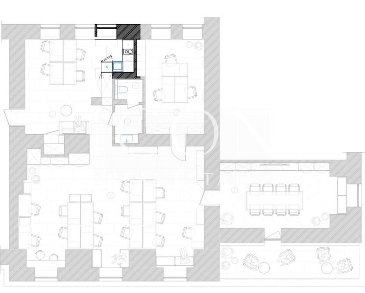
В продажу сучасний офіс площею 137 м² , поруч з метро Театральна. Ідеальне рішення для компаній, яким важлива репутація, комфорт та престижна локація.

Планування:
- просторий опенспейс
- окремий кабінет керівника
- повноцінна переговорна кімната
- кухня
- санвузол
- власна тераса — рідкість для центру міста, ідеальна для відпочинку команди або зустрічей на свіжому повітрі

Особливості офісу:
- Авторський дизайн-проєкт — сучасні рішення, продумана ергономіка
- Усе нове, у відмінному стані
Локація преміум-класу: поруч метро, офіси топ-компаній, ресторани, кав’ярні та вся інфраструктура

#2428
Деталі
Об'єкт комерційної нерухомості, Приміщення в офісному центрі, Готова будівля, Офісне приміщення. Об'єкт на 2 поверсі, У будівлі 5 поверхів. Будинок побудований в 1899 році. У приміщенні 3 кімнати. Без комісії
Icon Real Estate
Верифікований профіль
2
Роки досвіду
2
Роки на сайті
Активних оголошень 14
Ексклюзивних об'єктів 0
Рекламна активність 2905
Останній візит на сайт 2 дні тому
Рекомендувати
Адреса
Вашу скаргу прийнято!
Оберіть спосіб підтвердження
Щоб вашу рекомендацію було зараховано, підтвердіть свою особистість
* Особисті дані не відображатимуться на сайті та слугуватимуть лише для підтвердження особистості.
Як верифікуватись через Дію?
Зчитайте QR-код сканером у застосунку Дія й підтвердьте авторизацію Дія.Підписом
QR-код буде дійсний ще 02:00
Як верифікуватись через Bankid?
Верифікація BankID відкриється у новому вікні. Якщо сторінка верифікації не відкрилася, вікно було заблоковане вашим браузером.
Щоб дозволити відкриття вікна, виконайте такі кроки:

1. Перевірте адресний рядок браузера на повідомлення про помилку або піктограму блокування. Натисніть на нього.
2. Якщо у вас встановлено блокувальник спливаючих вікон, тимчасово відключіть його для цього сайту.
3. Перевірте налаштування вашого браузера і переконайтеся, що блокування спливаючих вікон вимкнено або налаштовано на дозвіл відкриття цього вікна.

Якщо проблема залишається невирішеною, зверніться до нашої служби підтримки.
Як верифікуватись через Дію?
Верифікація Дія відкриється у новому вікні. Якщо сторінка верифікації не відкрилася, вікно було заблоковане вашим браузером.
Щоб дозволити відкриття вікна, виконайте такі кроки:

1. Перевірте адресний рядок браузера на повідомлення про помилку або піктограму блокування. Натисніть на нього.
2. Якщо у вас встановлено блокувальник спливаючих вікон, тимчасово відключіть його для цього сайту.
3. Перевірте налаштування вашого браузера і переконайтеся, що блокування спливаючих вікон вимкнено або налаштовано на дозвіл відкриття цього вікна.

Якщо проблема залишається невирішеною, зверніться до нашої служби підтримки.
Вітаємо!
Рекомендацію зараховано!
Незабаром рекомендація зʼявиться на сторінці рієлтора.
Рекомендацію не зараховано.
Ви вже залишали рекомендацію даному рієлтору.
В пропозиції є незбережені дані.