4 300 000 $
2 688  $/м²
приміщення вільного призначення, приміщення для надання послуг, офісне приміщення, банківське приміщення
1600 м²
1 міс. тому
1 міс. тому
8 (сьогодні 0, вчора 1)
Опис
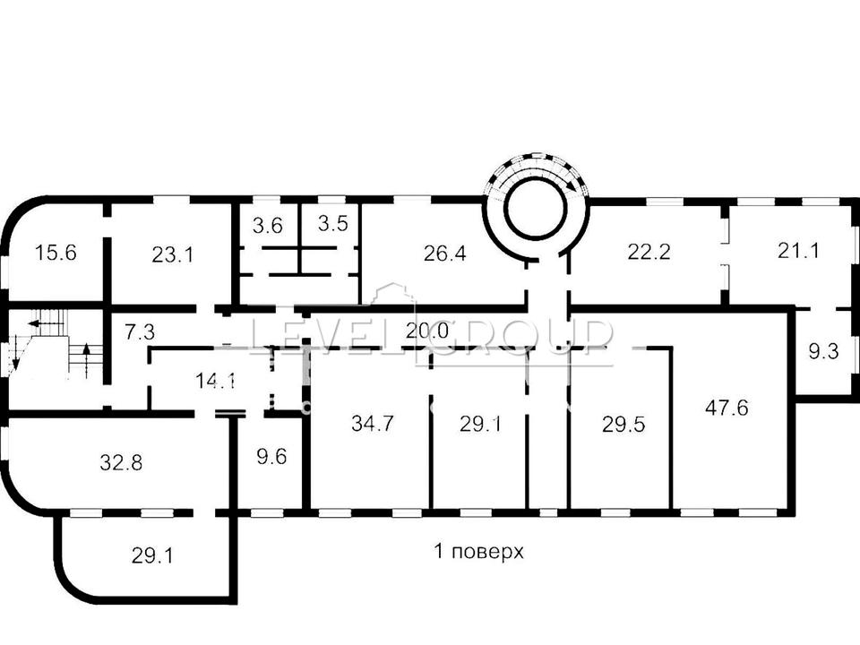
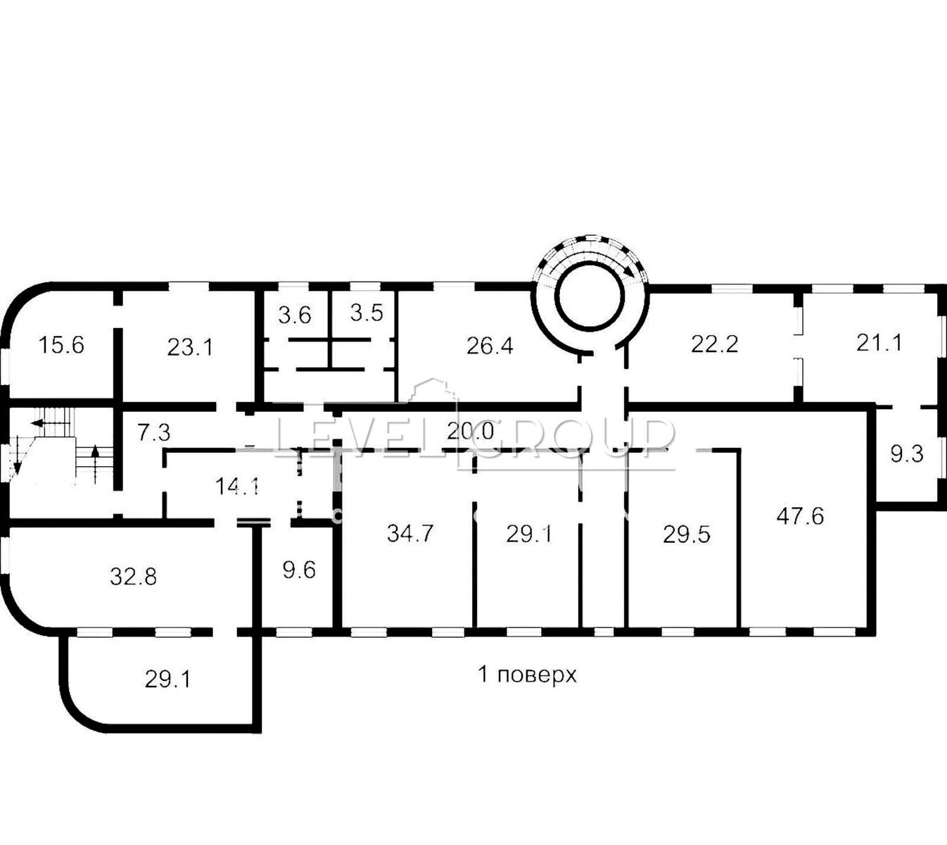
Продаж будівлі.
Продається 3-х поверхова окрема будівля в Голосіївському районі.
Є парко місця на території.
Площа 1600 м2.
Охорона, відеонагляд, система вентиляції, газове опалення.
Відстань до найближчого міста: У місті;
Розташування: Окрема будівля;
Тип обєкта: Адміністративна будівля;
Cанвузол: Так;
Опалення: Індивідуальне газове;
Ремонт: Так;
Комфорт: Ванна, Кондиціонер, Консерж, Балкон, лоджія, Відеоспостереження;
Комунікації: Вивіз відходів, Центральна каналізація, Газ, Електрика, Асфальтована дорога, Центральний водопровід;
Інфраструктура (до 500 метрів): Відділення пошти, Шосе, траса, Лікарня, поліклініка, Ресторан, кафе, бар, Житловий масив, Навчальні заклади, Ринок, Метро, Супермаркет, ТРЦ, Офіси, бізнес центр, Відділення банку, банкомат, Парк, зелена зона, Транспортна розвязка, Аптека, Стоянка, парковка, гараж;
Деталі
Об'єкт комерційної нерухомості, Офісний центр, Готова будівля, Банківське приміщення, Офісне приміщення, Приміщення для надання послуг, Приміщення вільного призначення. Об'єкт на 1, 2, 3 поверхах, У будівлі 3 поверхи. Без комісії
Level Group
Верифікований профіль
Silver partner
9
Років досвіду
9
Років на сайті
Активних оголошень 32
Ексклюзивних об'єктів 2
Рекламна активність 24648
Останній візит на сайт сьогодні
Рекомендувати
Адреса
Вашу скаргу прийнято!
Оберіть спосіб підтвердження
Щоб вашу рекомендацію було зараховано, підтвердіть свою особистість
* Особисті дані не відображатимуться на сайті та слугуватимуть лише для підтвердження особистості.
Як верифікуватись через Дію?
Зчитайте QR-код сканером у застосунку Дія й підтвердьте авторизацію Дія.Підписом
QR-код буде дійсний ще 02:00
Як верифікуватись через Bankid?
Верифікація BankID відкриється у новому вікні. Якщо сторінка верифікації не відкрилася, вікно було заблоковане вашим браузером.
Щоб дозволити відкриття вікна, виконайте такі кроки:

1. Перевірте адресний рядок браузера на повідомлення про помилку або піктограму блокування. Натисніть на нього.
2. Якщо у вас встановлено блокувальник спливаючих вікон, тимчасово відключіть його для цього сайту.
3. Перевірте налаштування вашого браузера і переконайтеся, що блокування спливаючих вікон вимкнено або налаштовано на дозвіл відкриття цього вікна.

Якщо проблема залишається невирішеною, зверніться до нашої служби підтримки.
Як верифікуватись через Дію?
Верифікація Дія відкриється у новому вікні. Якщо сторінка верифікації не відкрилася, вікно було заблоковане вашим браузером.
Щоб дозволити відкриття вікна, виконайте такі кроки:

1. Перевірте адресний рядок браузера на повідомлення про помилку або піктограму блокування. Натисніть на нього.
2. Якщо у вас встановлено блокувальник спливаючих вікон, тимчасово відключіть його для цього сайту.
3. Перевірте налаштування вашого браузера і переконайтеся, що блокування спливаючих вікон вимкнено або налаштовано на дозвіл відкриття цього вікна.

Якщо проблема залишається невирішеною, зверніться до нашої служби підтримки.
Вітаємо!
Рекомендацію зараховано!
Незабаром рекомендація зʼявиться на сторінці рієлтора.
Рекомендацію не зараховано.
Ви вже залишали рекомендацію даному рієлтору.
В пропозиції є незбережені дані.