88 060 $
1 206  $/м²
торгівельне приміщення
73 м²
2018 рік побудови
2 тиж. тому
2 тиж. тому
0 (сьогодні 0, вчора 0)
Опис
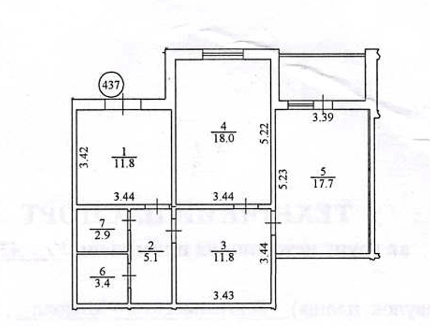
Пропонується на продаж комерційне приміщення площею 73 м2 в ЖК Вудсторія. Приміщення знаходиться на першому поверсі і має фасадний вхід. Є два однакових приміщення. Чудово підійде для магазину, кав'ярні, салону краси. ЖК Вудсторія - це 15 хвилин пішки до станції метро Червоний Хутір, 100 метрів до лісу та парку "Партизанська слава", 400 метрів до транспортної розв'язки!

Артикул: #A26678
Деталі
Об'єкт комерційної нерухомості, Приміщення в житловому будинку, Готова будівля, Торгівельне приміщення. Об'єкт на 1 поверсі, У будівлі 14 поверхів. Є електрика. Будинок побудований в 2018 році. Поруч є супермаркет, кафе, ресторан. Комісія за послуги 3 %
THE Capital
Верифікований профіль
3
Роки досвіду
2
Роки на сайті
Активних оголошень 616
Ексклюзивних об'єктів 0
Рекламна активність 406
Останній візит на сайт сьогодні
Рекомендувати
Адреса
Київ, Миколи Хвильового вул., 3, Дарницький р-н
Кадастровий номер 3222055100:01:015:****
Вашу скаргу прийнято!
Оберіть спосіб підтвердження
Щоб вашу рекомендацію було зараховано, підтвердіть свою особистість
* Особисті дані не відображатимуться на сайті та слугуватимуть лише для підтвердження особистості.
Як верифікуватись через Дію?
Зчитайте QR-код сканером у застосунку Дія й підтвердьте авторизацію Дія.Підписом
QR-код буде дійсний ще 02:00
Як верифікуватись через Bankid?
Верифікація BankID відкриється у новому вікні. Якщо сторінка верифікації не відкрилася, вікно було заблоковане вашим браузером.
Щоб дозволити відкриття вікна, виконайте такі кроки:

1. Перевірте адресний рядок браузера на повідомлення про помилку або піктограму блокування. Натисніть на нього.
2. Якщо у вас встановлено блокувальник спливаючих вікон, тимчасово відключіть його для цього сайту.
3. Перевірте налаштування вашого браузера і переконайтеся, що блокування спливаючих вікон вимкнено або налаштовано на дозвіл відкриття цього вікна.

Якщо проблема залишається невирішеною, зверніться до нашої служби підтримки.
Як верифікуватись через Дію?
Верифікація Дія відкриється у новому вікні. Якщо сторінка верифікації не відкрилася, вікно було заблоковане вашим браузером.
Щоб дозволити відкриття вікна, виконайте такі кроки:

1. Перевірте адресний рядок браузера на повідомлення про помилку або піктограму блокування. Натисніть на нього.
2. Якщо у вас встановлено блокувальник спливаючих вікон, тимчасово відключіть його для цього сайту.
3. Перевірте налаштування вашого браузера і переконайтеся, що блокування спливаючих вікон вимкнено або налаштовано на дозвіл відкриття цього вікна.

Якщо проблема залишається невирішеною, зверніться до нашої служби підтримки.
Вітаємо!
Рекомендацію зараховано!
Незабаром рекомендація зʼявиться на сторінці рієлтора.
Рекомендацію не зараховано.
Ви вже залишали рекомендацію даному рієлтору.
В пропозиції є незбережені дані.