1 169 999 $
5 000  $/м²
офісне приміщення
234 м²
сьогодні
1 тиж. тому
1 (сьогодні 0, вчора 0)
Опис
Комісія для Покупця =0%(Послуги ріелтора сплачує Власник)

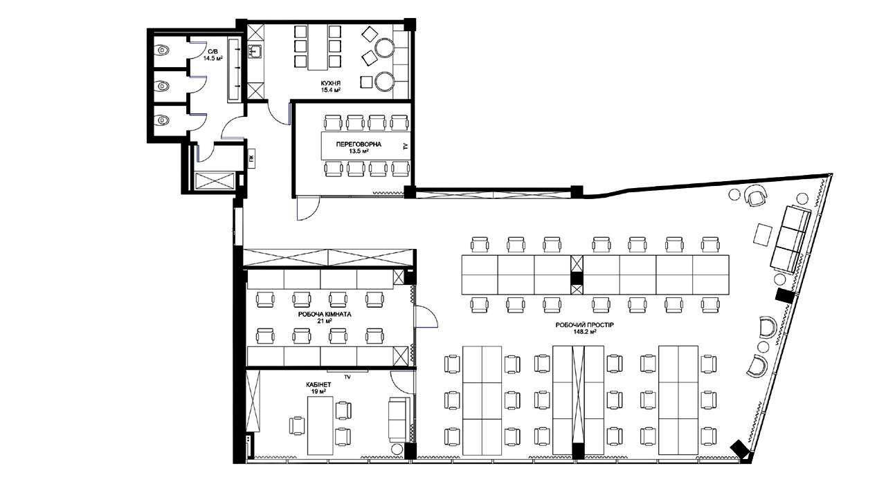
•Продаж сучасного new дизайнерського офісу у Бізнес-Центрі з гарною локацією в Печерському районі та зручною транспортною доступністю.
•Підійде як для власного бізнесу, так і для інвестиції з подальшою здачею в оренду.

•Адреса: вул. Князів Острозьких, 31/33
•БЦ: Зоряний
-Офіс: 6:1
-Поверх: 2
-Площа: 234м²

-Ціна продажу: 1 169 999 $
*Без комісії для Покупця
•Потенційний орендний дохід: 13 000 $ / місяць

•Інвестиційні показники:
— Річний дохід: 156 000 $
— Рентабельність (ROI): ≈ 13,33 % річних
— Термін окупності: ≈ 7,5 року
— Формат інвестиції: орендний бізнес / пасивний дохід

•Ліквідний офіс з хорошим балансом площі та доходності у діловій частині міста.

•Поруч центр міста, гарна транспортна розв'язка, БЦ оточений розвиненою інфраструктурою та зупинками громадського транспорту. Поруч SportLife, безліч ресторанів, кафе, магазинів та все що необхідно для ведення успішного бізнесу.
-Метро: У кроковій доступності станції метро Печерська (15 хвилин пішки).

*Звертаю увагу шо офіс знаходиться на етапі ремонту та меблювання, що є великим плюсом і на даному етапі є можливість вносити зміни та адаптувати простір виключно під Вас з урахуванням вашої концепції та потреб.
•Завершення ремонту офісного простору з ремонтом та меблями - ІІІ квартал 2026 року.

•Так само є інші варіанти приміщень різних площ з ремонтом та без ремонту-досить просто зателефонувати і я вам запропоную варіанти та організую перегляд.
Деталі
Об'єкт комерційної нерухомості, Приміщення в офісному центрі, Готова будівля, Офісне приміщення. Об'єкт на 2 поверсі, У будівлі 5 поверхів. Без комісії
Верифікований профіль
Platinum partner
Сертифікат
АФНУ
11
Років досвіду
50
Верифікованих рекомендацій
6
Років на сайті
Активних оголошень 37
Ексклюзивних об'єктів 0
Рекламна активність 8518
Останній візит на сайт сьогодні
Рекомендувати
Адреса
Вашу скаргу прийнято!
Оберіть спосіб підтвердження
Щоб вашу рекомендацію було зараховано, підтвердіть свою особистість
* Особисті дані не відображатимуться на сайті та слугуватимуть лише для підтвердження особистості.
Як верифікуватись через Дію?
Зчитайте QR-код сканером у застосунку Дія й підтвердьте авторизацію Дія.Підписом
QR-код буде дійсний ще 02:00
Як верифікуватись через Bankid?
Верифікація BankID відкриється у новому вікні. Якщо сторінка верифікації не відкрилася, вікно було заблоковане вашим браузером.
Щоб дозволити відкриття вікна, виконайте такі кроки:

1. Перевірте адресний рядок браузера на повідомлення про помилку або піктограму блокування. Натисніть на нього.
2. Якщо у вас встановлено блокувальник спливаючих вікон, тимчасово відключіть його для цього сайту.
3. Перевірте налаштування вашого браузера і переконайтеся, що блокування спливаючих вікон вимкнено або налаштовано на дозвіл відкриття цього вікна.

Якщо проблема залишається невирішеною, зверніться до нашої служби підтримки.
Як верифікуватись через Дію?
Верифікація Дія відкриється у новому вікні. Якщо сторінка верифікації не відкрилася, вікно було заблоковане вашим браузером.
Щоб дозволити відкриття вікна, виконайте такі кроки:

1. Перевірте адресний рядок браузера на повідомлення про помилку або піктограму блокування. Натисніть на нього.
2. Якщо у вас встановлено блокувальник спливаючих вікон, тимчасово відключіть його для цього сайту.
3. Перевірте налаштування вашого браузера і переконайтеся, що блокування спливаючих вікон вимкнено або налаштовано на дозвіл відкриття цього вікна.

Якщо проблема залишається невирішеною, зверніться до нашої служби підтримки.
Вітаємо!
Рекомендацію зараховано!
Незабаром рекомендація зʼявиться на сторінці рієлтора.
Рекомендацію не зараховано.
Ви вже залишали рекомендацію даному рієлтору.
В пропозиції є незбережені дані.