215 000 $
3 028  $/м²
торгівельне приміщення, приміщення вільного призначення, приміщення для надання послуг
71 м²
1960 рік побудови
3 дні тому
6 днів тому
5 (сьогодні 0, вчора 0)
Опис
Пропонується приміщення з ремонтом 2025р на Печерську!
З довгостроковим орендарем! 1 поверх по документах.
Відмінна локація з високим рівнем пішохідного та автомобільного трафіку.
вул. Князів Острозьких 41/8 Печерськ

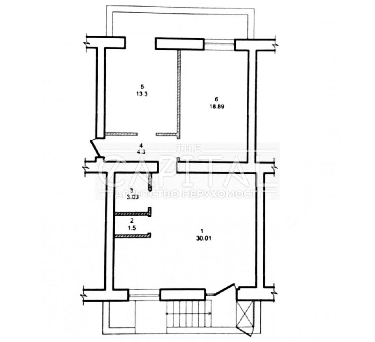
Загальна площа 71 м² та додатково 20 м² ( 2 балкони по 10 м² ) для використання під особисті потреби.
Функціональне для бізнесу, з 3 приміщеннями та 1 кімнатою для персоналу, коридором.
-Фасад
-Гарне планування
-Сучасний світлий ремонт
-Підійде під багато видів діяльності
-Всі необхідні комунікації
-Другий вхід/вихід у двір
-Виведення під інвертор, під генератор
-Централізоване опалення
Висота стелі 2.70 (3м), кондиціонери, вивід під генератор, під інвертор, відеоспостереження, охорона.

Локація:
Вулиця Князів Острозьких є однією із центральних вулиць Печерська. У кроковій доступності знаходиться сучасний бізнес-центр БЦ «Сенатор» (клас А), Києво-Печерська лавра. Район з розвиненою інфраструктурою — офіси, житлові будинки, магазини, ресторани, служби. Дуже зручна транспортна доступність – близько станції метро, ​​основні магістралі міста.

#A24388
Деталі
Об'єкт комерційної нерухомості, Приміщення в житловому будинку, Готова будівля, Приміщення для надання послуг, Приміщення вільного призначення, Торгівельне приміщення. Об'єкт на 0, 1 поверхах, У будівлі 5 поверхів. Будинок побудований в 1960 році. Комісія за послуги 4 %
THE Capital
Верифікований профіль
Silver partner
7
Років досвіду
3
Верифіковані рекомендації
6
Років на сайті
Активних оголошень 1
Ексклюзивних об'єктів 0
Рекламна активність 14
Останній візит на сайт 2 дні тому
Рекомендувати
Історія зміни ціни
23.04.2026 - 25 000 $ 215 000 $
20.04.2026 240 000 $
Адреса
Вашу скаргу прийнято!
Оберіть спосіб підтвердження
Щоб вашу рекомендацію було зараховано, підтвердіть свою особистість
* Особисті дані не відображатимуться на сайті та слугуватимуть лише для підтвердження особистості.
Як верифікуватись через Дію?
Зчитайте QR-код сканером у застосунку Дія й підтвердьте авторизацію Дія.Підписом
QR-код буде дійсний ще 02:00
Як верифікуватись через Bankid?
Верифікація BankID відкриється у новому вікні. Якщо сторінка верифікації не відкрилася, вікно було заблоковане вашим браузером.
Щоб дозволити відкриття вікна, виконайте такі кроки:

1. Перевірте адресний рядок браузера на повідомлення про помилку або піктограму блокування. Натисніть на нього.
2. Якщо у вас встановлено блокувальник спливаючих вікон, тимчасово відключіть його для цього сайту.
3. Перевірте налаштування вашого браузера і переконайтеся, що блокування спливаючих вікон вимкнено або налаштовано на дозвіл відкриття цього вікна.

Якщо проблема залишається невирішеною, зверніться до нашої служби підтримки.
Як верифікуватись через Дію?
Верифікація Дія відкриється у новому вікні. Якщо сторінка верифікації не відкрилася, вікно було заблоковане вашим браузером.
Щоб дозволити відкриття вікна, виконайте такі кроки:

1. Перевірте адресний рядок браузера на повідомлення про помилку або піктограму блокування. Натисніть на нього.
2. Якщо у вас встановлено блокувальник спливаючих вікон, тимчасово відключіть його для цього сайту.
3. Перевірте налаштування вашого браузера і переконайтеся, що блокування спливаючих вікон вимкнено або налаштовано на дозвіл відкриття цього вікна.

Якщо проблема залишається невирішеною, зверніться до нашої служби підтримки.
Вітаємо!
Рекомендацію зараховано!
Незабаром рекомендація зʼявиться на сторінці рієлтора.
Рекомендацію не зараховано.
Ви вже залишали рекомендацію даному рієлтору.
В пропозиції є незбережені дані.