252 000 $
4 200  $/м²
торгівельне приміщення
60 м²
1975 рік побудови
вчора
вчора
1 (сьогодні 0, вчора 1)
Опис
#26382 ПРОДАЖ КОМЕРЦІЙНОГО ПРИМІЩЕННЯ 60 м² НА ОБОЛОНСЬКОМУ ПРОСПЕКТІ, 15
Престижна локація з екстремально високим трафіком - ідеальний варіант для прибуткового бізнесу!

УНІКАЛЬНЕ РОЗТАШУВАННЯ:
Безпосередній вихід до метро (через ТРЦ "Дрім Таун 2")

Найбільший прохідний трафік у районі - тисячі потенційних клієнтів щодня

Офісний кластер житлова забудова - цільова аудиторія 24/7

ФІНАНСОВІ ПАРАМЕТРИ:
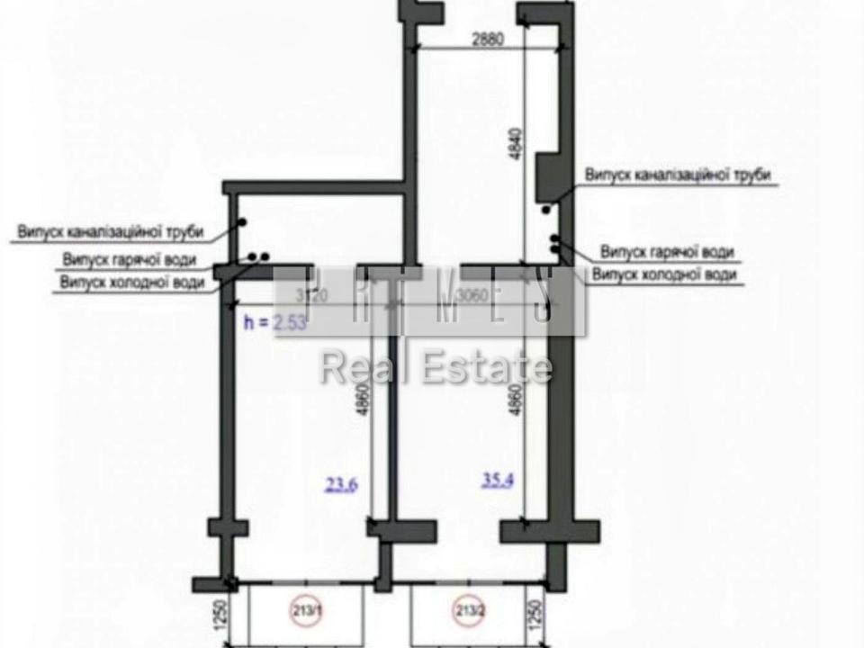
Площа: 60 ​​м²
Ціна продажі: 252 000 $
Поточна оренда: 88 000 грн/міс (офісний орендар)
Обмеження: не під продуктову групу

КЛЮЧОВІ ПЕРЕВАГИ:
Готовий бізнес із стабільним доходом

Преміальне оформлення приміщення

Можливість перепрофілювання під:

Офіс преміум-класу

Салон послуг (косметологія, медцентр)

Брендовий магазин

Чому варто купити?
Найвища прохідність у районі - гарантовані клієнти
Стабільний орендар (або потенціал для збільшення орендної ставки)
Стратегічна локація - пішак до метро ТРЦ

Це не просто приміщення – це готовий інструмент для пасивного доходу чи розвитку власного бізнесу в епіцентрі життя Оболоні!

[посилання приховано]. Можливість швидкого оформлення угоди. Документи готові до перевірки.
Деталі
Об'єкт комерційної нерухомості, Приміщення в житловому будинку, Готова будівля, Торгівельне приміщення. Об'єкт на 1 поверсі, У будівлі 9 поверхів. Будинок побудований в 1975 році. Комісія за послуги 3 %
PRIMES
Верифікований профіль
3
Роки досвіду
2
Місяці на сайті
Активних оголошень 676
Ексклюзивних об'єктів 0
Рекламна активність 0
Останній візит на сайт вчора
Рекомендувати
Адреса
Вашу скаргу прийнято!
Оберіть спосіб підтвердження
Щоб вашу рекомендацію було зараховано, підтвердіть свою особистість
* Особисті дані не відображатимуться на сайті та слугуватимуть лише для підтвердження особистості.
Як верифікуватись через Дію?
Зчитайте QR-код сканером у застосунку Дія й підтвердьте авторизацію Дія.Підписом
QR-код буде дійсний ще 02:00
Як верифікуватись через Bankid?
Верифікація BankID відкриється у новому вікні. Якщо сторінка верифікації не відкрилася, вікно було заблоковане вашим браузером.
Щоб дозволити відкриття вікна, виконайте такі кроки:

1. Перевірте адресний рядок браузера на повідомлення про помилку або піктограму блокування. Натисніть на нього.
2. Якщо у вас встановлено блокувальник спливаючих вікон, тимчасово відключіть його для цього сайту.
3. Перевірте налаштування вашого браузера і переконайтеся, що блокування спливаючих вікон вимкнено або налаштовано на дозвіл відкриття цього вікна.

Якщо проблема залишається невирішеною, зверніться до нашої служби підтримки.
Як верифікуватись через Дію?
Верифікація Дія відкриється у новому вікні. Якщо сторінка верифікації не відкрилася, вікно було заблоковане вашим браузером.
Щоб дозволити відкриття вікна, виконайте такі кроки:

1. Перевірте адресний рядок браузера на повідомлення про помилку або піктограму блокування. Натисніть на нього.
2. Якщо у вас встановлено блокувальник спливаючих вікон, тимчасово відключіть його для цього сайту.
3. Перевірте налаштування вашого браузера і переконайтеся, що блокування спливаючих вікон вимкнено або налаштовано на дозвіл відкриття цього вікна.

Якщо проблема залишається невирішеною, зверніться до нашої служби підтримки.
Вітаємо!
Рекомендацію зараховано!
Незабаром рекомендація зʼявиться на сторінці рієлтора.
Рекомендацію не зараховано.
Ви вже залишали рекомендацію даному рієлтору.
В пропозиції є незбережені дані.