3 500 000 $
1 967  $/м²
торгівельне приміщення, офісне приміщення
1779 м²
2005 рік побудови
вчора
вчора
0 (сьогодні 0, вчора 0)
Опис
#RR81 Продаж торгівельної площі 1779 м² | вул. Василя Тютюнника, центр Києва

Пропонується до продажу масштабне комерційне приміщення у центральній частині Києва — на вул. Василя Тютюнника, навпроти ЖК «Tetris Hall». Об’єкт розташований у новому цегляному будинку та є готовим інвестиційним продуктом із діючими орендарями.

Приміщення ідеально підходить під ритейл, супермаркет, медичний центр, фітнес, шоурум, освітній простір або поділ на декілька незалежних бізнесів.

Характеристики приміщення
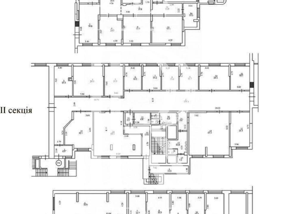
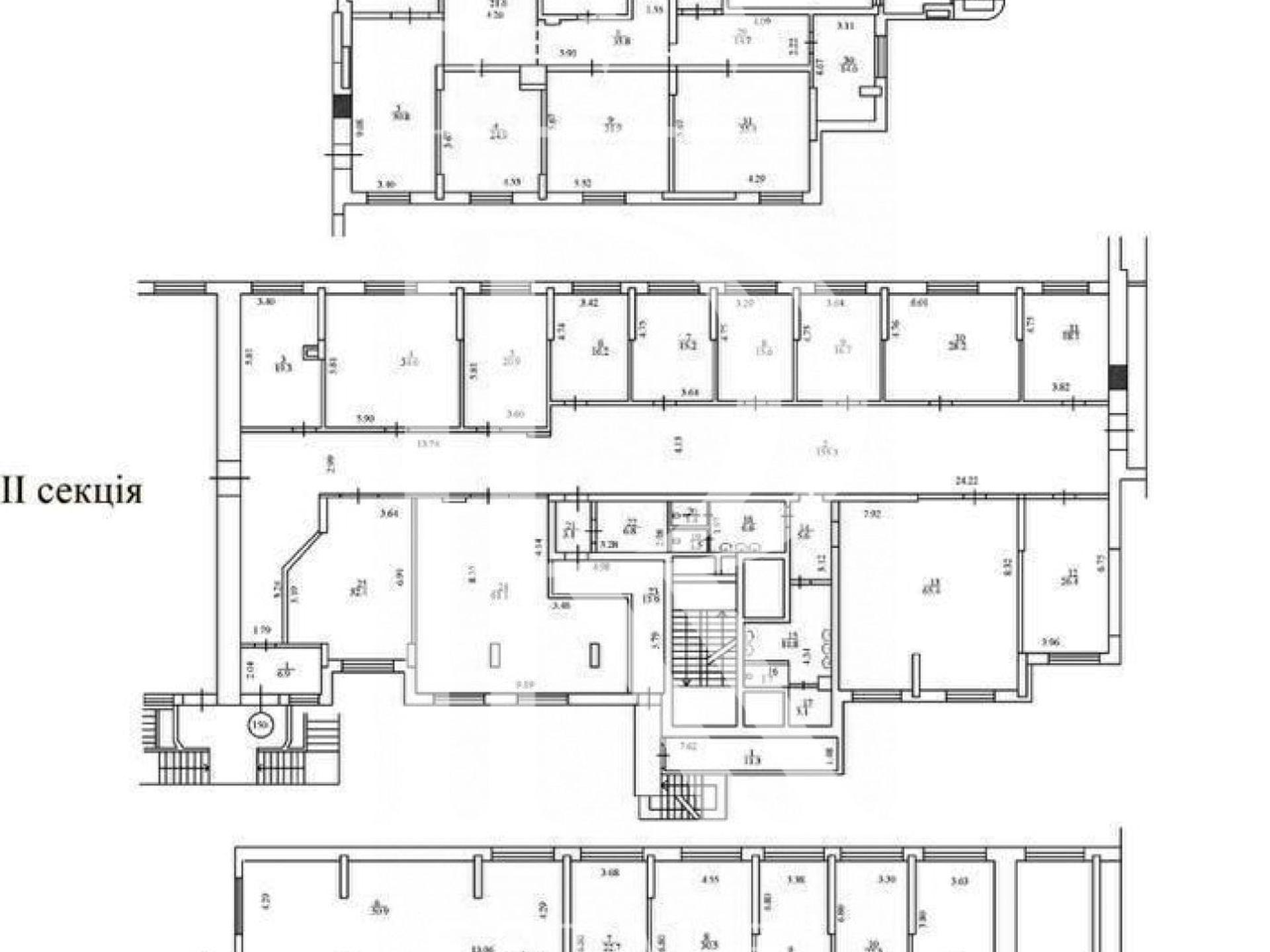
— Загальна площа: 1779 м²
— Поверхи: 1–2
— Поверховість будинку: 25
— Формат: торговельно-комерційний
— Планування: відкрите, з можливістю поділу
— Фонд: нежитловий

Планувальні можливості
— Можливість поділу на 3 автономні приміщення
— Окремий вхід у кожен блок
— Кожне приміщення може мати власну кухню та санвузли
— Гнучке зонування під різні бізнес-моделі

Інженерія та технічне оснащення
— Індивідуальні лічильники на воду та опалення
— Система кондиціонування
— Протипожежна система
— Сучасні інженерні комунікації нового будинку

Інвестиційна привабливість
— Все приміщення знаходиться в оренді
— Стабільний грошовий потік
— Центр міста з високим пішохідним та автомобільним трафіком
— Ліквідний об’єкт для портфельного інвестора

Інфраструктура та транспорт
— Центр Києва, Печерський район
— Навпроти ЖК «Tetris Hall»
— Пішохідна доступність до метро «Олімпійська» та «Палац Україна»
— Поруч житлові комплекси, бізнес-центри, ресторани, банки
— Активне комерційне оточення

Зацікавлені? Звертайтесь в Royal Real Estate для отримання детальної інформації та організації перегляду!
Код об’єкта: #RR81
Деталі
Об'єкт комерційної нерухомості, Приміщення в житловому будинку, Готова будівля, Офісне приміщення, Торгівельне приміщення. Об'єкт на 1, 2 поверхах, У будівлі 15 поверхів. Будинок побудований в 2005 році. У приміщенні 6 кімнат або більше. Комісія за послуги 3 %
Royal Real Estate
Верифікований профіль
Silver partner
3
Роки досвіду
1
Рік на сайті
Активних оголошень 50
Ексклюзивних об'єктів 0
Рекламна активність 4152
Останній візит на сайт вчора
Рекомендувати
Адреса
Вашу скаргу прийнято!
Оберіть спосіб підтвердження
Щоб вашу рекомендацію було зараховано, підтвердіть свою особистість
* Особисті дані не відображатимуться на сайті та слугуватимуть лише для підтвердження особистості.
Як верифікуватись через Дію?
Зчитайте QR-код сканером у застосунку Дія й підтвердьте авторизацію Дія.Підписом
QR-код буде дійсний ще 02:00
Як верифікуватись через Bankid?
Верифікація BankID відкриється у новому вікні. Якщо сторінка верифікації не відкрилася, вікно було заблоковане вашим браузером.
Щоб дозволити відкриття вікна, виконайте такі кроки:

1. Перевірте адресний рядок браузера на повідомлення про помилку або піктограму блокування. Натисніть на нього.
2. Якщо у вас встановлено блокувальник спливаючих вікон, тимчасово відключіть його для цього сайту.
3. Перевірте налаштування вашого браузера і переконайтеся, що блокування спливаючих вікон вимкнено або налаштовано на дозвіл відкриття цього вікна.

Якщо проблема залишається невирішеною, зверніться до нашої служби підтримки.
Як верифікуватись через Дію?
Верифікація Дія відкриється у новому вікні. Якщо сторінка верифікації не відкрилася, вікно було заблоковане вашим браузером.
Щоб дозволити відкриття вікна, виконайте такі кроки:

1. Перевірте адресний рядок браузера на повідомлення про помилку або піктограму блокування. Натисніть на нього.
2. Якщо у вас встановлено блокувальник спливаючих вікон, тимчасово відключіть його для цього сайту.
3. Перевірте налаштування вашого браузера і переконайтеся, що блокування спливаючих вікон вимкнено або налаштовано на дозвіл відкриття цього вікна.

Якщо проблема залишається невирішеною, зверніться до нашої служби підтримки.
Вітаємо!
Рекомендацію зараховано!
Незабаром рекомендація зʼявиться на сторінці рієлтора.
Рекомендацію не зараховано.
Ви вже залишали рекомендацію даному рієлтору.
В пропозиції є незбережені дані.