4
40 000 $
1 379  $/м²
БЕЗ КОМІСІЇ ПЕРЕУСТУПКА Берковець ТРЦ Lavina Mall ЖК LUCKY LAND
29 / 13 / 6 м²
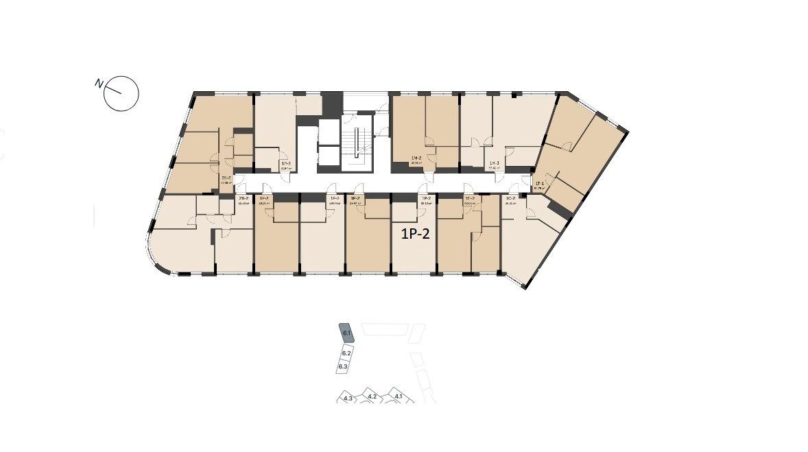
поверх 2 з 14
Монолітно-каркасна
Спец. проект
2025 рік побудови
сьогодні
6 міс. тому
644 (сьогодні 3, вчора 2)
Опис
Продаж однокімнатної квартири-студії в ЖК "Lucky Land" в будинку №6 , секція 1, на комфортному 2 поверсі.
Площа квартири 29,1 кв.м.
Здача будинку планується на 4 квартал 2026 року. Будівництво активно ведеться та підходть до завершення. Ключі видаватимуть на весні 2027 року.
Родзинкою ЖК є концепція міста в місті. Врахають вхідні групи, які можна подачити у вже зданих будинках.
Дуже зручна інфраструктура: на території ЖК власний дитячий садок, зони для активного та тихого відпочинку, планується власна школа.
ЖК розташований поруч із важливими транспортними артеріями міста: проспектом Академіка Палладіна, Великою Окружною дорогою, вулицею Сирецькою та Гостомельським шосе, що дозволяє обирати варіант маршруту до будь-якої точки міста.
Поруч із комплексом зупинки міського транспорту. Також ТРЦ Лавіна в пішій доступності 8 хв.

Ціна 40 000 у.е. Продаж без комісії для покупця!
Деталі
В квартирі 1 кімната, висота стелі 2.6 метра, Технологія будівництва - Монолітно-каркасна, Тип будинку - Спец. проект. Планування кімнат Студія. Немає газу. Немає балкона. Будинок побудований в 2025 році. Загальний стан квартири - Без ремонту. Гарячої води немає. Кількість санвузлів: 1. Інтернету немає. Працює без світла - вода, опалення. Без комісії
Верифікований профіль
Gold partner
15
Років досвіду
8
Років на сайті
Активних оголошень 5
Ексклюзивних об'єктів 0
Рекламна активність 5364
Останній візит на сайт сьогодні
Рекомендувати
Планування

Історія зміни ціни
06.03.2026 + 1 000 $ 40 000 $
24.10.2025 39 000 $
Адреса
Вашу скаргу прийнято!
Оберіть спосіб підтвердження
Щоб вашу рекомендацію було зараховано, підтвердіть свою особистість
* Особисті дані не відображатимуться на сайті та слугуватимуть лише для підтвердження особистості.
Як верифікуватись через Дію?
Зчитайте QR-код сканером у застосунку Дія й підтвердьте авторизацію Дія.Підписом
QR-код буде дійсний ще 02:00
Як верифікуватись через Bankid?
Верифікація BankID відкриється у новому вікні. Якщо сторінка верифікації не відкрилася, вікно було заблоковане вашим браузером.
Щоб дозволити відкриття вікна, виконайте такі кроки:

1. Перевірте адресний рядок браузера на повідомлення про помилку або піктограму блокування. Натисніть на нього.
2. Якщо у вас встановлено блокувальник спливаючих вікон, тимчасово відключіть його для цього сайту.
3. Перевірте налаштування вашого браузера і переконайтеся, що блокування спливаючих вікон вимкнено або налаштовано на дозвіл відкриття цього вікна.

Якщо проблема залишається невирішеною, зверніться до нашої служби підтримки.
Як верифікуватись через Дію?
Верифікація Дія відкриється у новому вікні. Якщо сторінка верифікації не відкрилася, вікно було заблоковане вашим браузером.
Щоб дозволити відкриття вікна, виконайте такі кроки:

1. Перевірте адресний рядок браузера на повідомлення про помилку або піктограму блокування. Натисніть на нього.
2. Якщо у вас встановлено блокувальник спливаючих вікон, тимчасово відключіть його для цього сайту.
3. Перевірте налаштування вашого браузера і переконайтеся, що блокування спливаючих вікон вимкнено або налаштовано на дозвіл відкриття цього вікна.

Якщо проблема залишається невирішеною, зверніться до нашої служби підтримки.
Вітаємо!
Рекомендацію зараховано!
Незабаром рекомендація зʼявиться на сторінці рієлтора.
Рекомендацію не зараховано.
Ви вже залишали рекомендацію даному рієлтору.
В пропозиції є незбережені дані.