ПРЕМІУМ БЕЗ КОМІСІЇ ПЕРЕУСТУПКА Васильківська Голосіїв ЖК Нова Англія
41 / 14 / 15 м²
поверх 21 з 21
Панельна
сьогодні
5 міс. тому
291 (сьогодні 0, вчора 4)
Опис
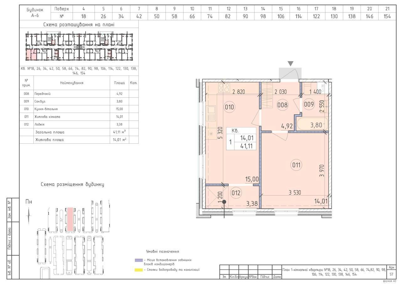
Сучасна 1-кімнатна квартира 41,11 м² | ЖК «Нова Англія», будинок Віндзор

Пропонується сучасна 1-кімнатна квартира на 21-му поверсі 21-поверхового нового будинку за адресою: вул. Максимовича 28, будинок Віндзор. Квартира має панорамний вид на центральні фонтани та відкриває неймовірні краєвиди міста.

Планування та характеристики:

4 великі вікна, світла та простора квартира

Окрема спальня 14 м²

Кухня-вітальня 15 м² з виходом на лоджію 3,38 м²

Продумане планування забезпечує комфорт та приватність

Інфраструктура ЖК «Нова Англія»:

Підземний паркінг та гостьова стоянка

Дитячі та спортивні майданчики, тенісний корт, футбольне поле

Фітнес-центр, SPA, лаунж-бари, кафе та ресторани

Високий рівень безпеки та обслуговування

Зручне розташування — метро Васильківська 10–15 хв пішки, поруч парк, ВДНГ, ТРЦ

💰 Без комісії.
📄 Квартира готова до швидкого переїзду. Ідеально підходить для комфортного проживання або інвестицій.
Деталі
В квартирі 1 кімната, Технологія будівництва - Панельна. У квартирі є Ванна. Загальний стан квартири - Без ремонту. Безбар'єрність: вхід у будинок на рівні землі, пандус, паркувальні місця для осіб з інвалідністю, дверні отвори в будинку шириною понад 0.9 м. Без комісії
У квартирі є
  • Ванна
BRAMA CAPITAL
Верифікований профіль
5
Місяців досвіду
5
Місяців на сайті
Активних оголошень 29
Ексклюзивних об'єктів 1
Рекламна активність 140850
Останній візит на сайт 2 дні тому
Рекомендувати
Адреса
Вашу скаргу прийнято!
Оберіть спосіб підтвердження
Щоб вашу рекомендацію було зараховано, підтвердіть свою особистість
* Особисті дані не відображатимуться на сайті та слугуватимуть лише для підтвердження особистості.
Як верифікуватись через Дію?
Зчитайте QR-код сканером у застосунку Дія й підтвердьте авторизацію Дія.Підписом
QR-код буде дійсний ще 02:00
Як верифікуватись через Bankid?
Верифікація BankID відкриється у новому вікні. Якщо сторінка верифікації не відкрилася, вікно було заблоковане вашим браузером.
Щоб дозволити відкриття вікна, виконайте такі кроки:

1. Перевірте адресний рядок браузера на повідомлення про помилку або піктограму блокування. Натисніть на нього.
2. Якщо у вас встановлено блокувальник спливаючих вікон, тимчасово відключіть його для цього сайту.
3. Перевірте налаштування вашого браузера і переконайтеся, що блокування спливаючих вікон вимкнено або налаштовано на дозвіл відкриття цього вікна.

Якщо проблема залишається невирішеною, зверніться до нашої служби підтримки.
Як верифікуватись через Дію?
Верифікація Дія відкриється у новому вікні. Якщо сторінка верифікації не відкрилася, вікно було заблоковане вашим браузером.
Щоб дозволити відкриття вікна, виконайте такі кроки:

1. Перевірте адресний рядок браузера на повідомлення про помилку або піктограму блокування. Натисніть на нього.
2. Якщо у вас встановлено блокувальник спливаючих вікон, тимчасово відключіть його для цього сайту.
3. Перевірте налаштування вашого браузера і переконайтеся, що блокування спливаючих вікон вимкнено або налаштовано на дозвіл відкриття цього вікна.

Якщо проблема залишається невирішеною, зверніться до нашої служби підтримки.
Вітаємо!
Рекомендацію зараховано!
Незабаром рекомендація зʼявиться на сторінці рієлтора.
Рекомендацію не зараховано.
Ви вже залишали рекомендацію даному рієлтору.
В пропозиції є незбережені дані.