100 000 $
885  $/м²
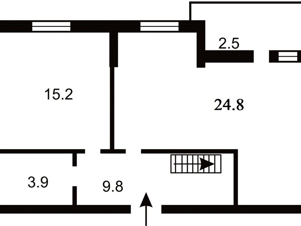
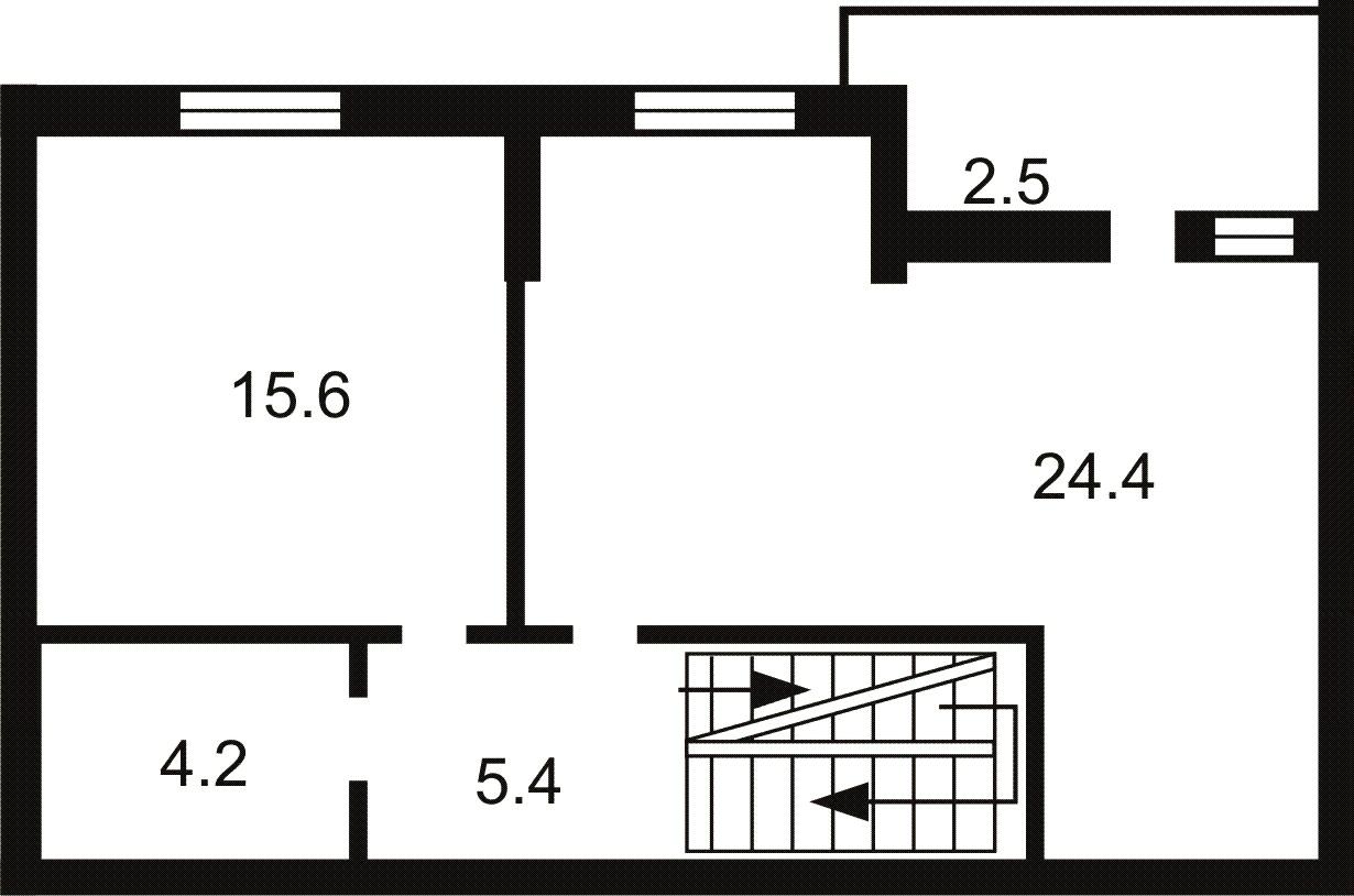
113 / 57 / 24.8 м²
поверх 25 з 26
Монолітно-каркасна
2025 рік побудови
вчора
3 міс. тому
89 (сьогодні 0, вчора 2)
Опис
Без комісії! Продаж з правом власності 3-к дворівневої видової квартири 113 м² в ЖК Дніпровська Мрія.

📍 25–26 поверхи — неймовірні панорамні краєвиди
📐 Площа — 113 м²
🏢 1 секція — ліфт вже працює

Планування:
✔ Два рівні — ідеально для комфортного зонування
✔ Санвузол на кожному поверсі
✔ Можливість реалізувати індивідуальний дизайн

Стан:
▪ Чорновий ремонт
▪ Штукатурка стін
▪ Лазерна стяжка підлоги
▪ Встановлені металеві двері

Переваги будинку:
✔ Автономне опалення (економія на комунальних)
✔ Підземний та гостьовий паркінг, закрита територія для машин.
✔ Новий сучасний комплекс

Інфраструктура:
Зручна транспортна розв’язка та розвинена інфраструктура: коледж, школи, дитячі садки, лікарні, торгові центри, кінотеатри, магазини, ресторани, ТРЦ Проспект, АШАН, Даринок та арт-завод Платформа, зупинки міського транспорту.
Метро Дарниця, Чернігівська – всього 7-10 хвилин, до центру 15-20 хвилин транспортом.
Ідеальний варіант як для життя, так і для інвестиції.

📞 Телефонуйте — відповім на всі питання та домовимось про перегляд!

Ціна 10000 у.о., без комісії для покупця. Податки сплачуємо.
Деталі
В квартирі 3 кімнати, висота стелі 2.7 метра, Технологія будівництва - Монолітно-каркасна. Планування кімнат Роздільне. Є 2 балкони. Будинок побудований в 2025 році. Загальний стан квартири - Без ремонту. Кількість санвузлів: 2. Власник погоджується продати по програмі єОселя. Власник погоджується продати по програмі єВідновлення. Без комісії
VALION
Верифікований профіль
Gold partner
7
Років досвіду
8
Верифікованих рекомендацій
7
Років на сайті
Активних оголошень 12
Ексклюзивних об'єктів 4
Рекламна активність 28581
Останній візит на сайт сьогодні
Рекомендувати
Адреса
Вашу скаргу прийнято!
Оберіть спосіб підтвердження
Щоб вашу рекомендацію було зараховано, підтвердіть свою особистість
* Особисті дані не відображатимуться на сайті та слугуватимуть лише для підтвердження особистості.
Як верифікуватись через Дію?
Зчитайте QR-код сканером у застосунку Дія й підтвердьте авторизацію Дія.Підписом
QR-код буде дійсний ще 02:00
Як верифікуватись через Bankid?
Верифікація BankID відкриється у новому вікні. Якщо сторінка верифікації не відкрилася, вікно було заблоковане вашим браузером.
Щоб дозволити відкриття вікна, виконайте такі кроки:

1. Перевірте адресний рядок браузера на повідомлення про помилку або піктограму блокування. Натисніть на нього.
2. Якщо у вас встановлено блокувальник спливаючих вікон, тимчасово відключіть його для цього сайту.
3. Перевірте налаштування вашого браузера і переконайтеся, що блокування спливаючих вікон вимкнено або налаштовано на дозвіл відкриття цього вікна.

Якщо проблема залишається невирішеною, зверніться до нашої служби підтримки.
Як верифікуватись через Дію?
Верифікація Дія відкриється у новому вікні. Якщо сторінка верифікації не відкрилася, вікно було заблоковане вашим браузером.
Щоб дозволити відкриття вікна, виконайте такі кроки:

1. Перевірте адресний рядок браузера на повідомлення про помилку або піктограму блокування. Натисніть на нього.
2. Якщо у вас встановлено блокувальник спливаючих вікон, тимчасово відключіть його для цього сайту.
3. Перевірте налаштування вашого браузера і переконайтеся, що блокування спливаючих вікон вимкнено або налаштовано на дозвіл відкриття цього вікна.

Якщо проблема залишається невирішеною, зверніться до нашої служби підтримки.
Вітаємо!
Рекомендацію зараховано!
Незабаром рекомендація зʼявиться на сторінці рієлтора.
Рекомендацію не зараховано.
Ви вже залишали рекомендацію даному рієлтору.
В пропозиції є незбережені дані.