ПРЕМІУМ БЕЗ КОМІСІЇ ПЕРЕУСТУПКА Відеотур Берковець ТРЦ Lavina Mall ЖК LUCKY LAND
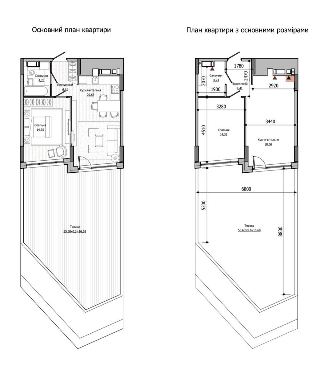
60.35 / 14.35 / 20.68 м²
поверх 3 з 13
Монолітно-каркасна
Спец. проект
2026 рік побудови
сьогодні
1 міс. тому
164 (сьогодні 1, вчора 1)
Опис
НАЙКРАЩА ПРОПОЗИЦІЯ!

Продаж 1-кімнатної квартири

м. Київ, вул. Берковецька, 6, проектний номер будинку 4.

Площа 60,35/ 14,35/20,68; Поверх 3/13

Унікальна квартира в ЖК «LUCKY LAND», світла, простора квартира на безпечному поверсі, з функціональним плануванням: кухня-вітальня, окремо спальня, особливість цієї квартири у великій терасі на якій можна облаштувати і лаундж-зону, і технічний куточок для повної автономності, без оздоблення, готова до втілення будь-яких дизайнерських ідей та рішень, якісні інженерні мережі та комунікації, встановлений сучасний електрокотел, презентабельне лоббі, нові ліфти, відеоспостереження, підземний паркінг, облаштоване бомбосховище, благоустрій прибудинкової території, у дворі передбачено дитячі і спортивні майданчики, поряд гостьовий паркінг, розвинена інфраструктура комплексу: школа, дитячий садок, заклади відпочинку, поряд із комплексом великі супермаркети на різні вподобання, ТРЦ Lavina Mall, відмінна транспортна розв'язка, ст.м. "Академмістечко" - 10 хвилин.

ВСІ ДЕТАЛІ ПРОДАЖУ ЗА ТЕЛЕФОНОМ ВКАЗАНОМУ В ОГОЛОШЕНІ! Розкрию ексклюзивні можливості.

ЖК LUCKY LAND вирізняється унікальним поєднанням інновацій з традиціями київської архитектури. Це справжній простір для кращого життя та натхнення.

Продаж відбувається по переуступці. Введення в експлуатацію заплановано на другий квартал 2026 року.
Деталі
В квартирі 1 кімната, висота стелі 2.8 метра, Технологія будівництва - Монолітно-каркасна, Тип будинку - Спец. проект. Немає газу, кухонна плита електрична. Будинок побудований в 2026 році. Загальний стан квартири - Без ремонту. Гаряча вода - електричний бойлер. Кількість санвузлів: 1. Працює без світла - вода, опалення, інтернет, ліфт. Тип кухні - окрема кухня. Кількість спален: 1. Без комісії
La Vida
Верифікований профіль
Silver partner
6
Років досвіду
2
Верифіковані рекомендації
5
Років на сайті
Активних оголошень 1
Ексклюзивних об'єктів 1
Рекламна активність 2779
Останній візит на сайт 2 тижні тому
Рекомендувати
Планування

Відеотур
Адреса
Вашу скаргу прийнято!
Оберіть спосіб підтвердження
Щоб вашу рекомендацію було зараховано, підтвердіть свою особистість
* Особисті дані не відображатимуться на сайті та слугуватимуть лише для підтвердження особистості.
Як верифікуватись через Дію?
Зчитайте QR-код сканером у застосунку Дія й підтвердьте авторизацію Дія.Підписом
QR-код буде дійсний ще 02:00
Як верифікуватись через Bankid?
Верифікація BankID відкриється у новому вікні. Якщо сторінка верифікації не відкрилася, вікно було заблоковане вашим браузером.
Щоб дозволити відкриття вікна, виконайте такі кроки:

1. Перевірте адресний рядок браузера на повідомлення про помилку або піктограму блокування. Натисніть на нього.
2. Якщо у вас встановлено блокувальник спливаючих вікон, тимчасово відключіть його для цього сайту.
3. Перевірте налаштування вашого браузера і переконайтеся, що блокування спливаючих вікон вимкнено або налаштовано на дозвіл відкриття цього вікна.

Якщо проблема залишається невирішеною, зверніться до нашої служби підтримки.
Як верифікуватись через Дію?
Верифікація Дія відкриється у новому вікні. Якщо сторінка верифікації не відкрилася, вікно було заблоковане вашим браузером.
Щоб дозволити відкриття вікна, виконайте такі кроки:

1. Перевірте адресний рядок браузера на повідомлення про помилку або піктограму блокування. Натисніть на нього.
2. Якщо у вас встановлено блокувальник спливаючих вікон, тимчасово відключіть його для цього сайту.
3. Перевірте налаштування вашого браузера і переконайтеся, що блокування спливаючих вікон вимкнено або налаштовано на дозвіл відкриття цього вікна.

Якщо проблема залишається невирішеною, зверніться до нашої служби підтримки.
Вітаємо!
Рекомендацію зараховано!
Незабаром рекомендація зʼявиться на сторінці рієлтора.
Рекомендацію не зараховано.
Ви вже залишали рекомендацію даному рієлтору.
В пропозиції є незбережені дані.