81 430 $
1 700  $/м²
Комісія 2% єОселя єВідновлення ТЦ Retroville
ЖК Варшавський-3
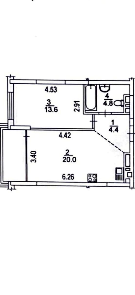
47.9 / 13.6 / 20 м²
поверх 22 з 25
Монолітно-каркасна
Спец. проект
2025 рік побудови
сьогодні
4 тиж. тому
130 (сьогодні 5, вчора 6)
Опис
Продаж 1 кімнатної квартири вул. Олександра Олеся буд. 17 А ЖК Варшавський 3. Квартира з роздільним плануванням загальною площею 47,9/13,6/20 кв.м. на 22/25 поверсі.
Сучасна новобудова з власною котельнею та високим рівнем автономності. Під час блекаутів працює ліфт, опалення та водопостачання . У будинку є вантажний і пасажирський ліфти, консʼєрж, система відеоспостереження та пожежна сигналізація.
Комплекс розташований у зручній і розвиненій локації. До ТРЦ Retroville 3 хвилини пішки. Поруч супермаркети, спортклуби, пошта, кафе, дитячі майданчики, зупинки транспорту та вся міська інфраструктура.
Деталі
В квартирі 1 кімната, висота стелі 3 метра, Технологія будівництва - Монолітно-каркасна, Тип будинку - Спец. проект. Немає газу. Є балкон. Будинок побудований в 2025 році. Загальний стан квартири - Без ремонту. Безбар'єрність: вхід у будинок на рівні землі, дверні отвори в будинку шириною понад 0.9 м, паркувальні місця для осіб з інвалідністю, ліфт, пристосований до крісла колісного. Гаряча вода - централізована. Кількість санвузлів: 1. Власник погоджується продати по програмі єОселя. Працює без світла - вода, опалення, інтернет, ліфт, резервне живлення квартири (акумулятори). Власник погоджується продати по програмі єВідновлення. Тип кухні - кухня-студія. Кількість спален: 1. Є підземний паркінг, доступний як укриття. Інфраструктура території: дитячий майданчик, спортивний майданчик, двір без авто. Комісія за послуги 2 %
VALION
Верифікований профіль
5
Років досвіду
9
Верифікованих рекомендацій
5
Років на сайті
Активних оголошень 11
Ексклюзивних об'єктів 8
Рекламна активність 24159
Останній візит на сайт сьогодні
Рекомендувати
Адреса
будинків здано 163
рік заснування 2003
будинків в процесі 23
Вашу скаргу прийнято!
Оберіть спосіб підтвердження
Щоб вашу рекомендацію було зараховано, підтвердіть свою особистість
* Особисті дані не відображатимуться на сайті та слугуватимуть лише для підтвердження особистості.
Як верифікуватись через Дію?
Зчитайте QR-код сканером у застосунку Дія й підтвердьте авторизацію Дія.Підписом
QR-код буде дійсний ще 02:00
Як верифікуватись через Bankid?
Верифікація BankID відкриється у новому вікні. Якщо сторінка верифікації не відкрилася, вікно було заблоковане вашим браузером.
Щоб дозволити відкриття вікна, виконайте такі кроки:

1. Перевірте адресний рядок браузера на повідомлення про помилку або піктограму блокування. Натисніть на нього.
2. Якщо у вас встановлено блокувальник спливаючих вікон, тимчасово відключіть його для цього сайту.
3. Перевірте налаштування вашого браузера і переконайтеся, що блокування спливаючих вікон вимкнено або налаштовано на дозвіл відкриття цього вікна.

Якщо проблема залишається невирішеною, зверніться до нашої служби підтримки.
Як верифікуватись через Дію?
Верифікація Дія відкриється у новому вікні. Якщо сторінка верифікації не відкрилася, вікно було заблоковане вашим браузером.
Щоб дозволити відкриття вікна, виконайте такі кроки:

1. Перевірте адресний рядок браузера на повідомлення про помилку або піктограму блокування. Натисніть на нього.
2. Якщо у вас встановлено блокувальник спливаючих вікон, тимчасово відключіть його для цього сайту.
3. Перевірте налаштування вашого браузера і переконайтеся, що блокування спливаючих вікон вимкнено або налаштовано на дозвіл відкриття цього вікна.

Якщо проблема залишається невирішеною, зверніться до нашої служби підтримки.
Вітаємо!
Рекомендацію зараховано!
Незабаром рекомендація зʼявиться на сторінці рієлтора.
Рекомендацію не зараховано.
Ви вже залишали рекомендацію даному рієлтору.
В пропозиції є незбережені дані.