Вашій увазі пропонується чудова однокімнатна квартира на продаж у справді кольоровому і комфортному ЖК Комфорт-Таун! Гарне рішення як для проживання 1-2 людей, так і для здачі в оренду. Хороше розташування Київ, вул. Юрія Липи, 6. Поряд метро Лівобережна.
Квартира знаходиться на 3 поверсі з 9. Працює ліфт.
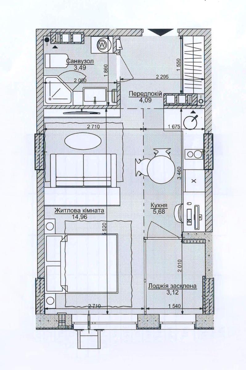
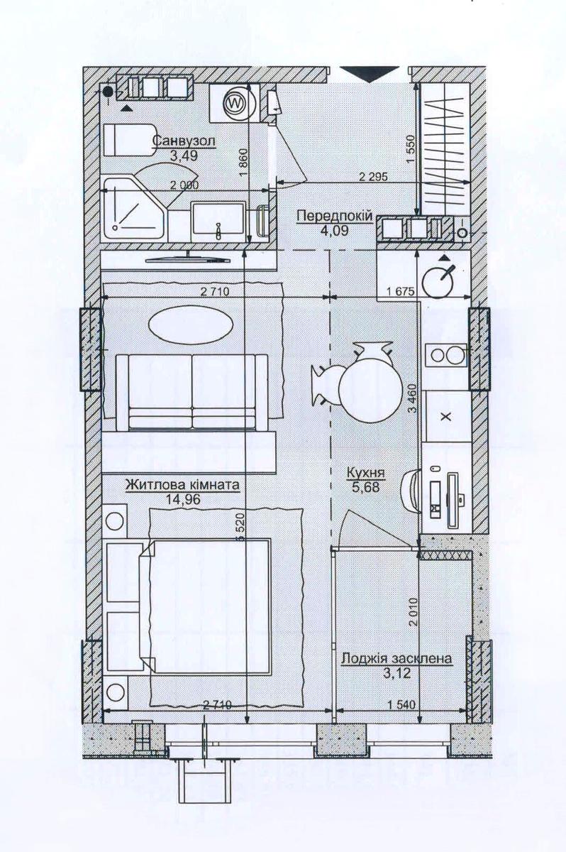
Загальна площа становить 31.3 кв.м. Житлова площа 14.9 кв.м. Площа кухні: 5.7 кв.м. Санвузол роздільний: 3.5 кв.м. У квартирі панорамні вікна.
Без ремонту, після будівельників, будівництво якісне, рівні стяжка на підлозі, стіни. Централізоване опалення, електрика та холодна вода за індивідуальними лічильниками. Тепла вода передбачена від бойлера.
Комунальні відносно невеликі, оскільки будинок збудовано з якісних сучасних матеріалів, добре утеплений, з якісними комунікаціями.
Вартість нерухомості 56000 $. Продається без комісії, від власника. Без посередників.
З документами все гаразд, готова до переоформлення.
Оперативний показ за попередньої домовленості.
---
ЖК Комфорт-Таун це - висока якість життєвого простору. Вся територія облаштована для людей з інвалідністю та маломобільних людей. Все необхідне для комфорту є поруч - магазини "Сільпо", "Новус" та маленькі, ресторани і кафе, аптеки і лабораторії, клініка "Добробут", сучасний дитсадок і школа та інші зручності. Територія повністю закрита і під цілодобовою охороною. Є вісім багаторівневих паркінгів та велика кількість гостьових парковок. Тут буде зручно і комфортно як молодим людям, так і старшим.
Деталі
В квартирі 1 кімната, висота стелі 2.7 метра, Технологія будівництва - Монолітно-каркасна, Тип будинку - Спец. проект. Немає газу, кухонна плита електрична. Немає балкона. Будинок побудований в 2019 році. Загальний стан квартири - Без ремонту. Безбар'єрність: пандус, вхід у будинок на рівні землі, дверні отвори в будинку шириною понад 0.9 м, паркувальні місця для осіб з інвалідністю, ліфт, пристосований до крісла колісного. Гаряча вода - електричний бойлер. Кількість санвузлів: 1. Інтернет оптоволоконний. Працює без світла - вода, опалення, інтернет. Тип кухні - кухня-студія. Кількість спален: 1. Інфраструктура території: дитячий майданчик, спортивний майданчик, виокремлена зона для вигулу тварин, двір без авто
Публікація оголошень доступна для зареєстрованих користувачів в ролі “Рієлтор” чи “Власник“.
Якщо на вашій сторінці АН залишились оголошення, які ви хочете опублікувати, будь ласка, напишіть нам за ким із рієлторів вашого агентства їх закріпити.
Зареєструйте рієлторів АН на RIELTOR.UA, та привʼяжіть їхні акаунти до акаунту АН, щоб:
бачити сукупну статистику та витрати по оголошенням ваших рієлторів,
поповнювати баланс вашим рієлторам,
бачити в кабінеті всі оголошення, створені вашими рієлторами,
оголошення рієлторів були брендовані логотипом вашого АН