Голосіївський р-н, Теремки, ВДНГ, Феофанія, Заболотного 148-В, ЖК Кришталеві Джерела.
"єОселя", "Житло для ВПО" єВідновлення.
Пропонується квартира у новобудові, закритий Житловий Комплекс .
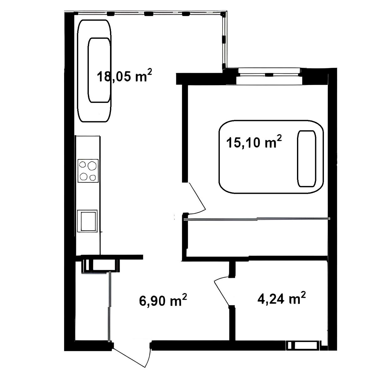
Ремонт 2025 року: 13/16 поверх, 45/18/15 м2.
Будинок 2021 року, не під усі программи.
- Італійський керамограніт,
- Ванна RAVAK 180",
- кондиціонер,
- замінені склопакети (REHAU),
- вбулована кухня MERX,
- холодильник, пральна машина,
- бойлер на 100л. ( вистачає наповнити ванну),
- підігрів підлоги,
- великий обідній стол з кріслами,
- матрац "ВЕНЕТО", 160",
- простора вбулована шафа 3.5м,
- висота стелі 2.7 м, (залишили в бетоні),
- обладнане робоче місце,
- швидкісний інтернет (оптоволокно),
- охорона території, відеоспостереження, скд-система доступа,
- парковка у дворі.
- є генератор для обслуговування місць загального користування та ліфтів, (під час вимкнень),
У пішій доступності: Нова Пошта, NOVUS, ФОРА, магазин біля дому, е кафе і піцерія.
Будинок введений в єксплуатацію 2021 року, вже багато сусідів поробили ремонти і живуть.
Відпочинок:
- Парк Феофанія для спорту і пронулянок у 10 хв,
- Через дорогу: ВДНГ – Національний комплекс «Експоцентр України» ( багато майданчиків, ресторанів, та прогулочних місць.
- музей Пирогово.
СПОРТ:
- спортивний майданчие біля дому,
- бігова тропа бяля дому,
- Спорт Лайф з бассейном 15 хв.
Чудова пропозиція для життя або орендний бізнес ( є потенційний орендар).
Вартість: за домовленістю, в залежності від форми оплати.
можливо в кредит/розстрочку.
Пропозиція без комісії для покупця.
+ оформлення.
Велике прохання до Ріалторів - не дублювати рекламу.
Деталі
В квартирі 1 кімната, висота стелі 2.7 метра, Технологія будівництва - Монолітно-каркасна, Тип будинку - Спец. проект. Немає газу, кухонна плита електрична. Є балкон. У квартирі є Підігрів підлоги, Кондиціонер, Пральна машина, Ванна, Холодильник. Будинок побудований в 2021 році. Загальний стан квартири - З ремонтом. Безбар'єрність: паркувальні місця для осіб з інвалідністю. Гаряча вода - електричний бойлер. Кількість санвузлів: 1. Інтернет оптоволоконний. Власник погоджується продати по програмі єОселя. Працює без світла - вода, опалення, інтернет. Власник погоджується продати по програмі єВідновлення. Тип кухні - кухня-студія. Кількість спален: 1. Немає підземного паркінгу, доступного як укриття. Інфраструктура території: дитячий майданчик
Публікація оголошень доступна для зареєстрованих користувачів в ролі “Рієлтор” чи “Власник“.
Якщо на вашій сторінці АН залишились оголошення, які ви хочете опублікувати, будь ласка, напишіть нам за ким із рієлторів вашого агентства їх закріпити.
Зареєструйте рієлторів АН на RIELTOR.UA, та привʼяжіть їхні акаунти до акаунту АН, щоб:
бачити сукупну статистику та витрати по оголошенням ваших рієлторів,
поповнювати баланс вашим рієлторам,
бачити в кабінеті всі оголошення, створені вашими рієлторами,
оголошення рієлторів були брендовані логотипом вашого АН