1
80 000 $
1 143  $/м²
70 / 40 / 9 м²
поверх 4 з 9
Утеплена панель
1976 рік побудови
сьогодні
3 дні тому
147 (сьогодні 12, вчора 27)
Опис
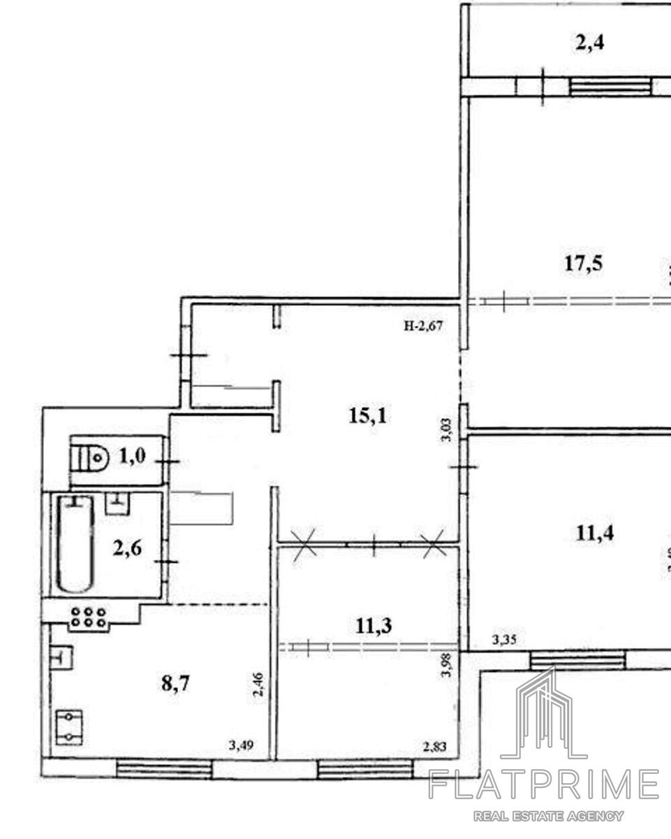
Продається простора 3-кімнатна квартира поруч із метро Оболонь на Оболонському проспекті, 2А.

Загальна площа становить 70 м², житлова — 42 м², кухня — 9 м². Квартира розташована на 4-му поверсі 9-поверхового будинку серії 134, який газифікований, з робочим опаленням та стабільним водопостачанням. Планування двостороннє, що забезпечує хорошу вентиляцію та природне освітлення протягом дня: три окремі кімнати, простора кухня, зручний хол, гардеробна зона, роздільний санвузол і балкон. Стан квартири під оновлення ремонту, що дозволяє реалізувати власний дизайн-проєкт.

У квартирі встановлена газова варильна поверхня, духовка, кондиціонер, металопластикові вікна та броньовані двері. З вікон відкривається приємний вид на тихий зелений двір та шкільне подвір’я, що додає відчуття спокою навіть у міській локації.

Будинок має охайне парадне та доглянуту прибудинкову територію. Локація дуже зручна для життя: поруч школа, дитячий садок, торговий центр Dream Town, набережна Дніпра та зони відпочинку біля озер із пляжами. У пішій доступності знаходиться метро Оболонь Kyiv Metro, що забезпечує швидке сполучення з іншими районами міста.

Квартира добре підійде для сімейного проживання або як інвестиція під оренду в одному з найзатребуваніших районів Києва.
Деталі
В квартирі 3 кімнати, висота стелі 2.6 метра, Технологія будівництва - Утеплена панель. Є газ. Будинок побудований в 1976 році. Загальний стан квартири - Без ремонту. Комісія за послуги 5 %
FLATPRIME
Верифікований профіль
1
Рік досвіду
11
Верифікованих рекомендацій
1
Рік на сайті
Активних оголошень 29
Ексклюзивних об'єктів 0
Рекламна активність 49785
Останній візит на сайт сьогодні
Рекомендувати
Адреса
Вашу скаргу прийнято!
Оберіть спосіб підтвердження
Щоб вашу рекомендацію було зараховано, підтвердіть свою особистість
* Особисті дані не відображатимуться на сайті та слугуватимуть лише для підтвердження особистості.
Як верифікуватись через Дію?
Зчитайте QR-код сканером у застосунку Дія й підтвердьте авторизацію Дія.Підписом
QR-код буде дійсний ще 02:00
Як верифікуватись через Bankid?
Верифікація BankID відкриється у новому вікні. Якщо сторінка верифікації не відкрилася, вікно було заблоковане вашим браузером.
Щоб дозволити відкриття вікна, виконайте такі кроки:

1. Перевірте адресний рядок браузера на повідомлення про помилку або піктограму блокування. Натисніть на нього.
2. Якщо у вас встановлено блокувальник спливаючих вікон, тимчасово відключіть його для цього сайту.
3. Перевірте налаштування вашого браузера і переконайтеся, що блокування спливаючих вікон вимкнено або налаштовано на дозвіл відкриття цього вікна.

Якщо проблема залишається невирішеною, зверніться до нашої служби підтримки.
Як верифікуватись через Дію?
Верифікація Дія відкриється у новому вікні. Якщо сторінка верифікації не відкрилася, вікно було заблоковане вашим браузером.
Щоб дозволити відкриття вікна, виконайте такі кроки:

1. Перевірте адресний рядок браузера на повідомлення про помилку або піктограму блокування. Натисніть на нього.
2. Якщо у вас встановлено блокувальник спливаючих вікон, тимчасово відключіть його для цього сайту.
3. Перевірте налаштування вашого браузера і переконайтеся, що блокування спливаючих вікон вимкнено або налаштовано на дозвіл відкриття цього вікна.

Якщо проблема залишається невирішеною, зверніться до нашої служби підтримки.
Вітаємо!
Рекомендацію зараховано!
Незабаром рекомендація зʼявиться на сторінці рієлтора.
Рекомендацію не зараховано.
Ви вже залишали рекомендацію даному рієлтору.
В пропозиції є незбережені дані.