2
300 000 $
844
$/м²
приміщення вільного призначення, приміщення для надання послуг, офісне приміщення
355.5 м²
5 днів тому
1 р. 8 міс. тому
277 (сьогодні 0,
вчора 0)
Опис
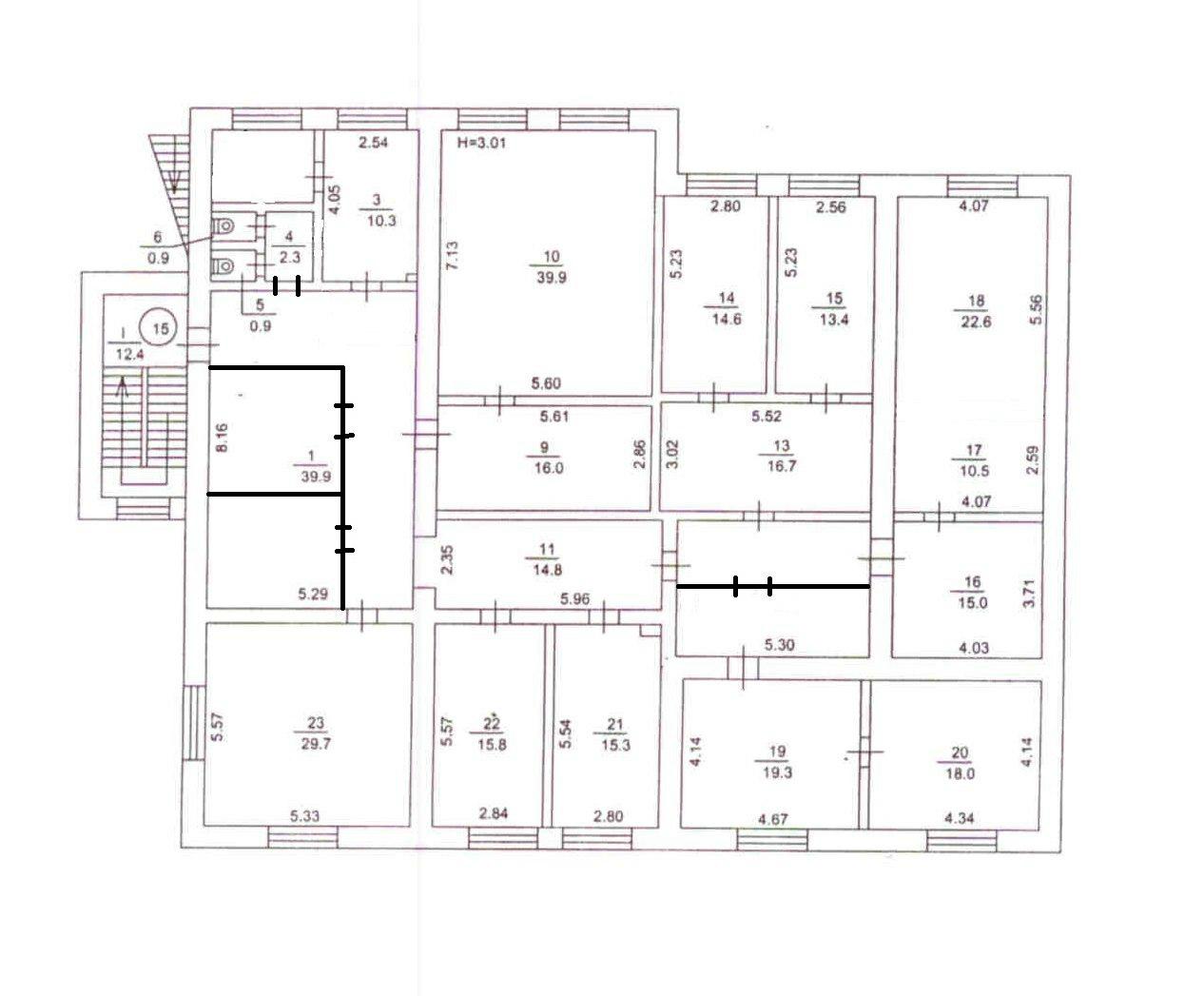
Продається офісне приміщення в діловому центрі столиці, по вул. Фортечний тупик 4!
Приміщення площею 355.5 м2, займає ввесь 4 поверх із 6-ти та складається з 12 окремих кабінетів, коридора та санвузла.
В приміщеннях виконано офісний ремонт, є система кондиціонування, проведено інтернет, а також відеоспостереження!
У дворі є місця для паркування авто!
До ст.м. Печерська або Палац Україна, всього 10 хв пішки!
Продаж без комісії для покупця!
Для отримання детальної інформації, телефонуйте за номером в оголошенні!
Приміщення площею 355.5 м2, займає ввесь 4 поверх із 6-ти та складається з 12 окремих кабінетів, коридора та санвузла.
В приміщеннях виконано офісний ремонт, є система кондиціонування, проведено інтернет, а також відеоспостереження!
У дворі є місця для паркування авто!
До ст.м. Печерська або Палац Україна, всього 10 хв пішки!
Продаж без комісії для покупця!
Для отримання детальної інформації, телефонуйте за номером в оголошенні!
Деталі
Об'єкт комерційної нерухомості, Приміщення в офісному центрі, Готова будівля, Офісне приміщення, Приміщення для надання послуг, Приміщення вільного призначення. Об'єкт на 4 поверсі, У будівлі 6 поверхів. Без комісії

Бащук Світлана
Рієлтор
| Активних оголошень | 29 |
| Ексклюзивних об'єктів | 0 |
| Рекламна активність | 36532 |
| Останній візит на сайт | сьогодні |
Рекомендувати















