2
300 000 $
2 190  $/м²
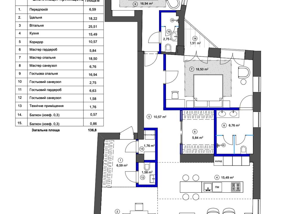
137 / 45 / 56.8 м²
поверх 6 з 7
Цегляна
Дореволюційний
вчора
8 міс. тому
510 (сьогодні 1, вчора 0)
Опис
Панорамний дуплекс у центрі Києва — вул. Антоновича

Пропонується простора 3-кімнатна квартира площею 137 м² у фасадному дореволюційному будинку навпроти парку Шевченка. Трьостороннє планування забезпечує максимум світла та простору. Стеля на — 3.4 м.

Стан квартири — після будівельників, що дає повну свободу для втілення дизайнерських ідей. Є можливість встановлення каміна.

Планування: велика кухня-вітальня з виходом на фасадний балкон, 2 окремі спальні кімнати, 3 санвузли, 2 гардеробні, хол. 2 балкона, з одного — краєвид на бульварну частину вул. Антоновича та парк Шевченка.

Будинок у доброму стані: залізобетонні перекриття, ліфт, парадне після ремонту.

Локація преміум-класу: поруч парк Тараса Шевченка, Ботанічний сад, метро Площа Українських Героїв, бізнес-центри, ресторани, бутіки та зручна інфраструктура.

Ідеальний варіант для тих, хто цінує архітектуру, простір, світло та центральне розташування.
Деталі
В квартирі 3 кімнати, Технологія будівництва - Цегляна, Тип будинку - Дореволюційний. Планування кімнат Пентхаус. У квартирі є Камін, Ванна. Загальний стан квартири - Без ремонту. Без комісії
У квартирі є
  • Камін
  • Ванна
Park Lane
Верифікований профіль
PRO аккаунт
Професійний акаунт
Platinum partner
14
Років досвіду
9
Років на сайті
Активних оголошень 19
Ексклюзивних об'єктів 4
Рекламна активність 39381
Останній візит на сайт вчора
Рекомендувати
Історія зміни ціни
20.12.2025 + 45 000 $ 300 000 $
24.09.2025 - 20 000 $ 255 000 $
18.09.2025 - 25 000 $ 275 000 $
06.08.2025 - 52 500 $ 300 000 $
06.08.2025 300 000 €
Адреса
Вашу скаргу прийнято!
Оберіть спосіб підтвердження
Щоб вашу рекомендацію було зараховано, підтвердіть свою особистість
* Особисті дані не відображатимуться на сайті та слугуватимуть лише для підтвердження особистості.
Як верифікуватись через Дію?
Зчитайте QR-код сканером у застосунку Дія й підтвердьте авторизацію Дія.Підписом
QR-код буде дійсний ще 02:00
Як верифікуватись через Bankid?
Верифікація BankID відкриється у новому вікні. Якщо сторінка верифікації не відкрилася, вікно було заблоковане вашим браузером.
Щоб дозволити відкриття вікна, виконайте такі кроки:

1. Перевірте адресний рядок браузера на повідомлення про помилку або піктограму блокування. Натисніть на нього.
2. Якщо у вас встановлено блокувальник спливаючих вікон, тимчасово відключіть його для цього сайту.
3. Перевірте налаштування вашого браузера і переконайтеся, що блокування спливаючих вікон вимкнено або налаштовано на дозвіл відкриття цього вікна.

Якщо проблема залишається невирішеною, зверніться до нашої служби підтримки.
Як верифікуватись через Дію?
Верифікація Дія відкриється у новому вікні. Якщо сторінка верифікації не відкрилася, вікно було заблоковане вашим браузером.
Щоб дозволити відкриття вікна, виконайте такі кроки:

1. Перевірте адресний рядок браузера на повідомлення про помилку або піктограму блокування. Натисніть на нього.
2. Якщо у вас встановлено блокувальник спливаючих вікон, тимчасово відключіть його для цього сайту.
3. Перевірте налаштування вашого браузера і переконайтеся, що блокування спливаючих вікон вимкнено або налаштовано на дозвіл відкриття цього вікна.

Якщо проблема залишається невирішеною, зверніться до нашої служби підтримки.
Вітаємо!
Рекомендацію зараховано!
Незабаром рекомендація зʼявиться на сторінці рієлтора.
Рекомендацію не зараховано.
Ви вже залишали рекомендацію даному рієлтору.
В пропозиції є незбережені дані.