4
79 000 $
1 574  $/м²
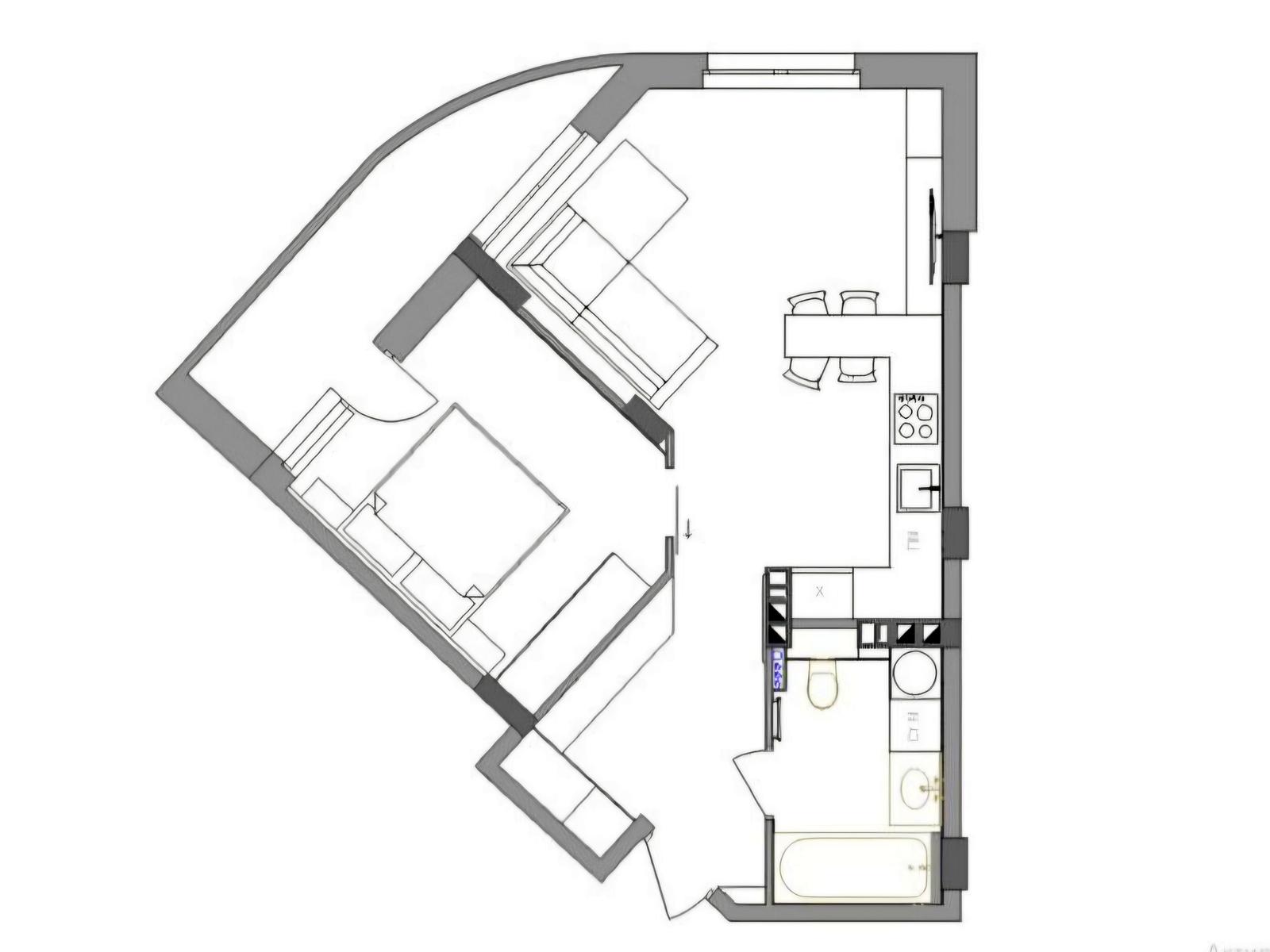
50.2 / 12.2 / 22.8 м²
поверх 3 з 12
Монолітно-каркасна
Спец. проект
2015 рік побудови
1 тиж. тому
3 міс. тому
391 (сьогодні 0, вчора 4)
Опис
Продається простора 1к квартира у сучасному будинку на вул. Вишгородська 45.

Основні характеристики:
*Загальна площа: 50,2 м²
*Поверх: 3 з 12
*Висота стель: 2,75 м

Планування та площі:
*Кімната: 12,2 м²
*Кухня-студія: 22,8 м²
*Коридор: 7,4 м²
*Лоджія

Стан квартири:
*Квартира з повністю виконаним чистовим оздобленням.
*Повністю готова, прокладена електрика.
*Індивідуальні лічильники на опалення.

Додаткові переваги:
*Невисокий 3-й поверх
*В квартирі вже закуплені та знаходяться плитка та ванна.
*Готовий професійний дизайн-проєкт з повним опрацюванням, з усією технічною документацією.

Будинок та територія:
*Доглянута внутрішня територія
*Двір без щільної парковки автомобілів
*Зручно для прогулянок з дітьми, вигулу домашніх улюбленців.
*На території та поруч кав’ярні,
магазини та вся необхідна інфраструктура.
Деталі
В квартирі 1 кімната, висота стелі 2.75 метра, Технологія будівництва - Монолітно-каркасна, Тип будинку - Спец. проект. Планування кімнат Роздільне. У квартирі є Ванна. Будинок побудований в 2015 році. Загальний стан квартири - Частковий ремонт. Без комісії
У квартирі є
  • Ванна
Верифікований профіль
Gold partner
5
Років на сайті
Активних оголошень 5
Ексклюзивних об'єктів 0
Рекламна активність 3025
Останній візит на сайт вчора
Рекомендувати
Історія зміни ціни
23.03.2026 + 1 000 $ 79 000 $
11.03.2026 - 1 000 $ 78 000 $
04.01.2026 79 000 $
Адреса
Вашу скаргу прийнято!
Оберіть спосіб підтвердження
Щоб вашу рекомендацію було зараховано, підтвердіть свою особистість
* Особисті дані не відображатимуться на сайті та слугуватимуть лише для підтвердження особистості.
Як верифікуватись через Дію?
Зчитайте QR-код сканером у застосунку Дія й підтвердьте авторизацію Дія.Підписом
QR-код буде дійсний ще 02:00
Як верифікуватись через Bankid?
Верифікація BankID відкриється у новому вікні. Якщо сторінка верифікації не відкрилася, вікно було заблоковане вашим браузером.
Щоб дозволити відкриття вікна, виконайте такі кроки:

1. Перевірте адресний рядок браузера на повідомлення про помилку або піктограму блокування. Натисніть на нього.
2. Якщо у вас встановлено блокувальник спливаючих вікон, тимчасово відключіть його для цього сайту.
3. Перевірте налаштування вашого браузера і переконайтеся, що блокування спливаючих вікон вимкнено або налаштовано на дозвіл відкриття цього вікна.

Якщо проблема залишається невирішеною, зверніться до нашої служби підтримки.
Як верифікуватись через Дію?
Верифікація Дія відкриється у новому вікні. Якщо сторінка верифікації не відкрилася, вікно було заблоковане вашим браузером.
Щоб дозволити відкриття вікна, виконайте такі кроки:

1. Перевірте адресний рядок браузера на повідомлення про помилку або піктограму блокування. Натисніть на нього.
2. Якщо у вас встановлено блокувальник спливаючих вікон, тимчасово відключіть його для цього сайту.
3. Перевірте налаштування вашого браузера і переконайтеся, що блокування спливаючих вікон вимкнено або налаштовано на дозвіл відкриття цього вікна.

Якщо проблема залишається невирішеною, зверніться до нашої служби підтримки.
Вітаємо!
Рекомендацію зараховано!
Незабаром рекомендація зʼявиться на сторінці рієлтора.
Рекомендацію не зараховано.
Ви вже залишали рекомендацію даному рієлтору.
В пропозиції є незбережені дані.