1
95 000 $
2 159  $/м²
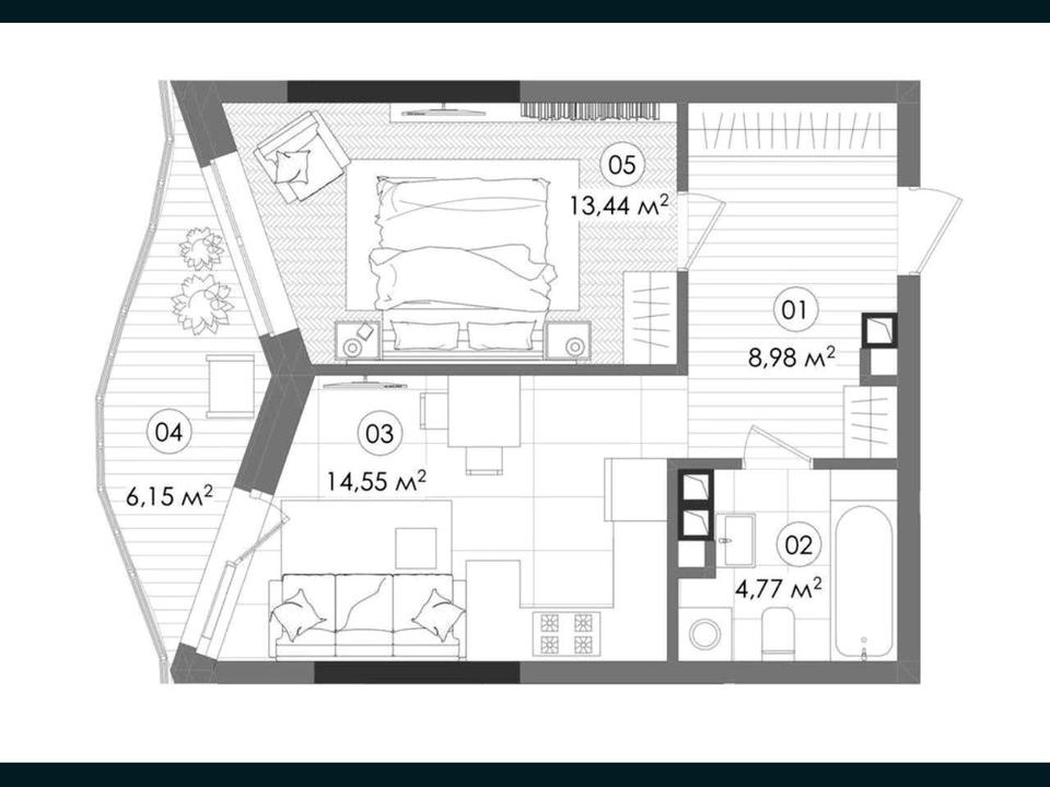
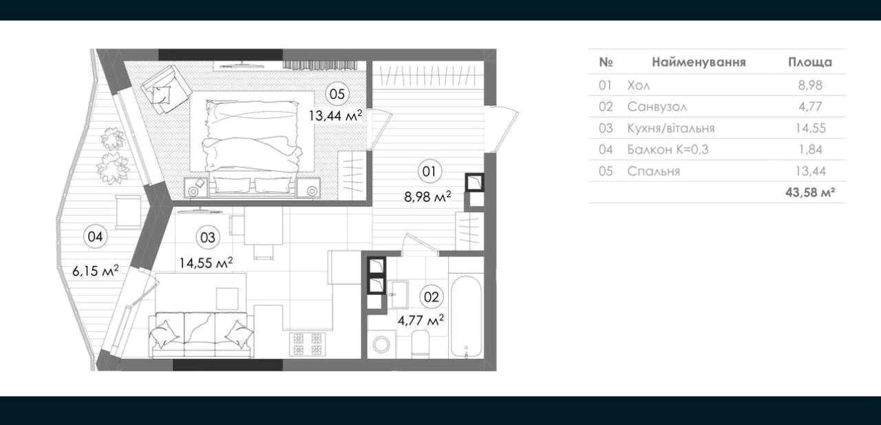
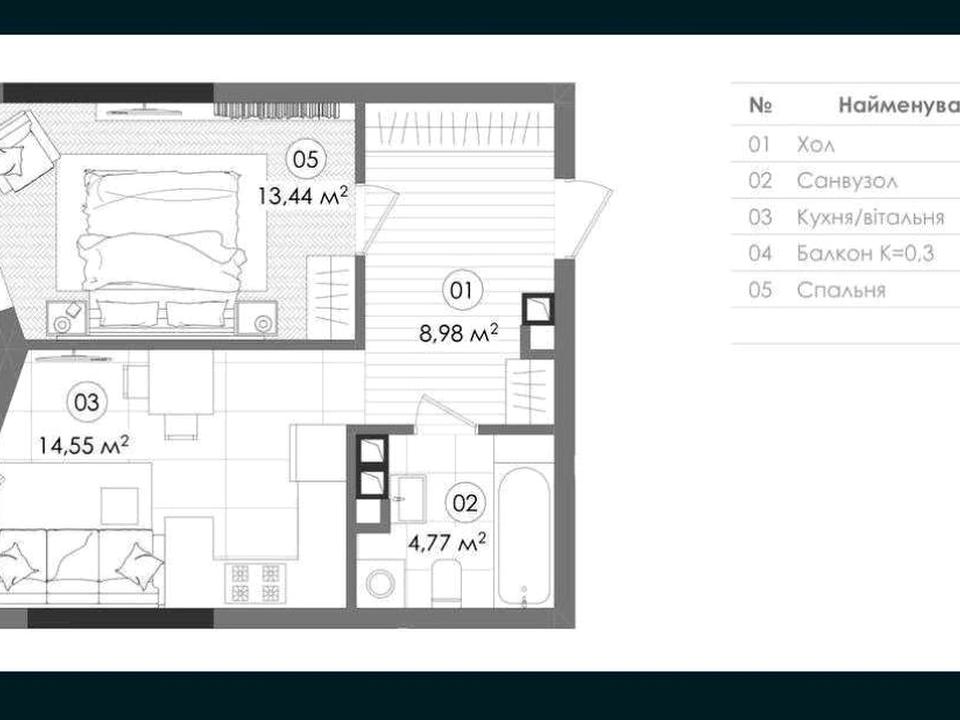
44 / 14 / 15 м²
поверх 12 з 23
Спец. проект
2021 рік побудови
вчора
2 міс. тому
189 (сьогодні 0, вчора 1)
Опис
Продаж 1-кімнатної квартири в ЖК «CREATOR CITY» з НАЙКРАЩИМ плануванням.
за адресою: Дегтярівська, 17.
Площа квартири: 43.58 м².

Житловий комплекс бізнес-класу розташований в історичній частині Шевченківського району.
ЖК "Креатор Сити" побудовано за монолітно-каркасною технологією.

1-й будинок вже введений в експлуатацію, 2-й вводиться в кінці поточного 2026 року.

В квартирі:
- велика кухня-вітальня 15 м2;
- окрема спальня 13.4 м2;
- лоджія-тераса 6 м2;
- с/у 5 м2;

Загальний стан квартири – від будівельників.
Сучасна архітектура – стильний монолітно-каркасний будинок із панорамними вікнами та високими стелями.
Висота стелі 3 метри.
Панорамні вікна з чудовими видами на місто!
Центральна система кондиціонування у кожній квартирі.
В ЖК є підземний паркінг з прямим ліфтом на свій поверх.
Є можливість установки зарядки для електромобілів.

Інфраструктура ЖК Креатор Сіті:
-Зручне розташування: поруч школи, дитячі садки, супермаркети, ресторани, спортзали, медичні центри.
-Облаштовані зони відпочинку та дитячі майданчики.
-Закрита територія з цілодобовою охороною. Сучасні системи безпеки, включаючи охорону та відеоспостереження.
-Чудова транспортна розв’язка – 10 хвилин на авто до метро Лук’янівська, Політехнічний інститут, Дорогожичі.
-підземний паркінг для вашої зручності.
Деталі
В квартирі 1 кімната, висота стелі 3 метра, Тип будинку - Спец. проект. Немає газу, кухонна плита електрична. Є балкон. Будинок побудований в 2021 році. Загальний стан квартири - Без ремонту. Кількість санвузлів: 1. Інтернет оптоволоконний. Працює без світла - вода, опалення, інтернет, ліфт. Тип кухні - окрема кухня. Кількість спален: 1. Без комісії
FLATPRIME
Верифікований профіль
6
Років досвіду
2
Верифіковані рекомендації
3
Роки на сайті
Активних оголошень 8
Ексклюзивних об'єктів 0
Рекламна активність 13086
Останній візит на сайт вчора
Рекомендувати
Планування

Адреса
будинків здано 48
рік заснування 2006
будинків в процесі 28
Вашу скаргу прийнято!
Оберіть спосіб підтвердження
Щоб вашу рекомендацію було зараховано, підтвердіть свою особистість
* Особисті дані не відображатимуться на сайті та слугуватимуть лише для підтвердження особистості.
Як верифікуватись через Дію?
Зчитайте QR-код сканером у застосунку Дія й підтвердьте авторизацію Дія.Підписом
QR-код буде дійсний ще 02:00
Як верифікуватись через Bankid?
Верифікація BankID відкриється у новому вікні. Якщо сторінка верифікації не відкрилася, вікно було заблоковане вашим браузером.
Щоб дозволити відкриття вікна, виконайте такі кроки:

1. Перевірте адресний рядок браузера на повідомлення про помилку або піктограму блокування. Натисніть на нього.
2. Якщо у вас встановлено блокувальник спливаючих вікон, тимчасово відключіть його для цього сайту.
3. Перевірте налаштування вашого браузера і переконайтеся, що блокування спливаючих вікон вимкнено або налаштовано на дозвіл відкриття цього вікна.

Якщо проблема залишається невирішеною, зверніться до нашої служби підтримки.
Як верифікуватись через Дію?
Верифікація Дія відкриється у новому вікні. Якщо сторінка верифікації не відкрилася, вікно було заблоковане вашим браузером.
Щоб дозволити відкриття вікна, виконайте такі кроки:

1. Перевірте адресний рядок браузера на повідомлення про помилку або піктограму блокування. Натисніть на нього.
2. Якщо у вас встановлено блокувальник спливаючих вікон, тимчасово відключіть його для цього сайту.
3. Перевірте налаштування вашого браузера і переконайтеся, що блокування спливаючих вікон вимкнено або налаштовано на дозвіл відкриття цього вікна.

Якщо проблема залишається невирішеною, зверніться до нашої служби підтримки.
Вітаємо!
Рекомендацію зараховано!
Незабаром рекомендація зʼявиться на сторінці рієлтора.
Рекомендацію не зараховано.
Ви вже залишали рекомендацію даному рієлтору.
В пропозиції є незбережені дані.