10
64 000 $
1 882  $/м²
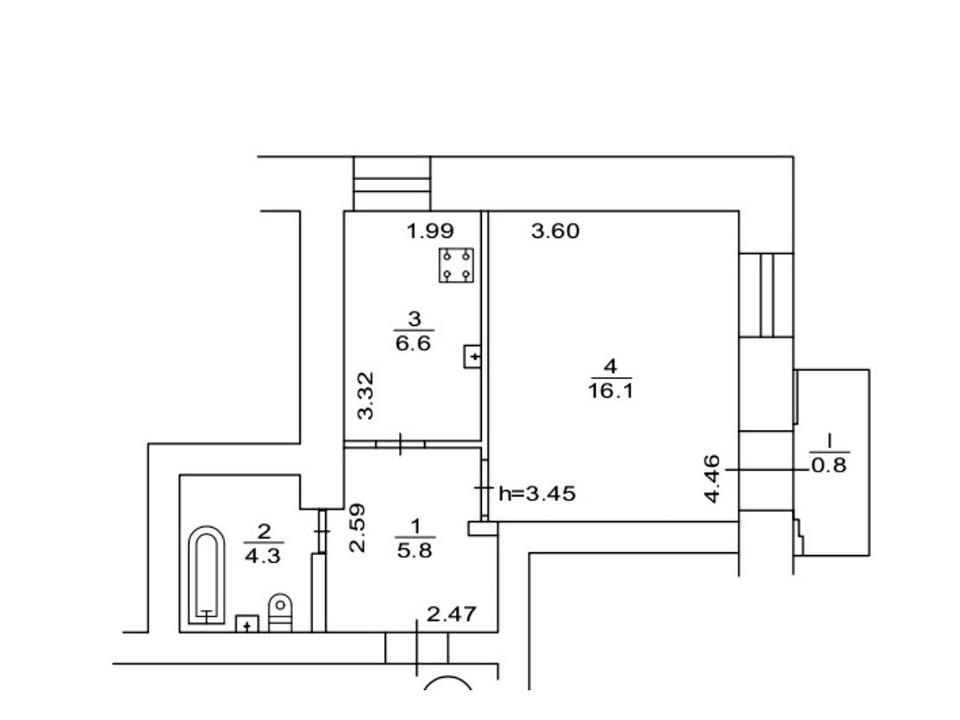
34 / 16 / 6.6 м²
поверх 4 з 4
Цегляна
Дореволюційний
1917 рік побудови
сьогодні
1 міс. тому
955 (сьогодні 7, вчора 16)
Опис
Продажа квартиры Антоновича 38Б, Метро Олимпийская 5 минут пешком. 1 комнатная квартира расположена на 4 этаже 4 этажного Царского дома 1917г. постройки, кирпичный дом, с ж/б перекрытиями, высота потолка 3.5м. Общая площадь 34 кв.м., комната 16 кв.м. с выходом на балкон ( не застеклён ), кухня 6.6 кв.м. Состояние квартиры: под ремонт, фото соответствует, видео по запросу. Дом расположен во дворе, вид с комнаты в сторону улицы Антоновича, на кухне окно выходит во двор. Рядом парк Шевченко и парк Фомина, Метро Университет, Метро Олимпийская, Метро Площадь Льва Толстого. Также быстрая транспортная доступность к Метро Лыбедская, ТРЦ Океан Плаза, Дворец Украина, Крещатик, и ТД. Также возле дома ТЦ Олимпийский, Мега маркет, множество кафе, ресторанов, клиник, банков, салонов красоты и другая инфраструктура. В собственности более 3х лет, собственник в Украине. Цена 64.000 у.е.
Деталі
В квартирі 1 кімната, висота стелі 3.5 метра, Технологія будівництва - Цегляна, Тип будинку - Дореволюційний. Є газ, кухонна плита газова. Є балкон. У квартирі є Пральна машина, Ванна, Холодильник. Будинок побудований в 1917 році. Загальний стан квартири - Без ремонту. Гаряча вода - централізована. Кількість санвузлів: 1. Інтернет дротовий (кабельний). Працює без світла - вода, газ, опалення. Тип кухні - окрема кухня. Кількість спален: 1. Комісія за послуги 3 %
У квартирі є
  • Пральна машина
  • Ванна
  • Холодильник
Верифікований профіль
Platinum partner
17
Років досвіду
13
Років на сайті
Активних оголошень 10
Ексклюзивних об'єктів 0
Рекламна активність 15193
Останній візит на сайт сьогодні
Рекомендувати
Планування

Історія зміни ціни
22.04.2026 - 1 000 $ 64 000 $
15.04.2026 - 1 000 $ 65 000 $
02.04.2026 - 1 000 $ 66 000 $
30.03.2026 - 1 000 $ 67 000 $
24.03.2026 - 1 000 $ 68 000 $
20.03.2026 - 1 000 $ 69 000 $
17.03.2026 - 2 000 $ 70 000 $
14.03.2026 72 000 $
Адреса
Вашу скаргу прийнято!
Оберіть спосіб підтвердження
Щоб вашу рекомендацію було зараховано, підтвердіть свою особистість
* Особисті дані не відображатимуться на сайті та слугуватимуть лише для підтвердження особистості.
Як верифікуватись через Дію?
Зчитайте QR-код сканером у застосунку Дія й підтвердьте авторизацію Дія.Підписом
QR-код буде дійсний ще 02:00
Як верифікуватись через Bankid?
Верифікація BankID відкриється у новому вікні. Якщо сторінка верифікації не відкрилася, вікно було заблоковане вашим браузером.
Щоб дозволити відкриття вікна, виконайте такі кроки:

1. Перевірте адресний рядок браузера на повідомлення про помилку або піктограму блокування. Натисніть на нього.
2. Якщо у вас встановлено блокувальник спливаючих вікон, тимчасово відключіть його для цього сайту.
3. Перевірте налаштування вашого браузера і переконайтеся, що блокування спливаючих вікон вимкнено або налаштовано на дозвіл відкриття цього вікна.

Якщо проблема залишається невирішеною, зверніться до нашої служби підтримки.
Як верифікуватись через Дію?
Верифікація Дія відкриється у новому вікні. Якщо сторінка верифікації не відкрилася, вікно було заблоковане вашим браузером.
Щоб дозволити відкриття вікна, виконайте такі кроки:

1. Перевірте адресний рядок браузера на повідомлення про помилку або піктограму блокування. Натисніть на нього.
2. Якщо у вас встановлено блокувальник спливаючих вікон, тимчасово відключіть його для цього сайту.
3. Перевірте налаштування вашого браузера і переконайтеся, що блокування спливаючих вікон вимкнено або налаштовано на дозвіл відкриття цього вікна.

Якщо проблема залишається невирішеною, зверніться до нашої служби підтримки.
Вітаємо!
Рекомендацію зараховано!
Незабаром рекомендація зʼявиться на сторінці рієлтора.
Рекомендацію не зараховано.
Ви вже залишали рекомендацію даному рієлтору.
В пропозиції є незбережені дані.